GutGut - Smaltovna Lučenec

Lučenecká smaltovňa dlhé roky chátrala. Jej príbeh bol dlho opomínaný. Budova vysokej stavebnej kvality a s bohatou históriou je v pomerne tesnej väzbe na centrum mesta, no predsa bola akosi vzdialená a zabudnutá. Nový majiteľ k sebe zavolal architektov a začal sa proces jej obnovy. Vzniklo otvorené a moderné pracovné prostredie, ktoré s pokorou a zachovaním stavebnej podstaty objektu, vkladá nové a pritom potvrdzuje pôvodnú kvalitu budovy a jej šarm. Areál Smaltovne sa otvára mestu a jej príbeh pokračuje ďalej.
- Autoři: Samuel Kadák, Barbara Rek, Ľuboš Dobóczi, Filip Hečko
- Ateliér: gutgut
- Země: Slovensko
- Město: Lučenec
- Ulice, číslo: Martina Rázusa 86/11
- Datum projektu: 2018
- Realizace: 2020
- Užitná plocha: 2 190.00m2
- Zastavěná plocha: 1 250.00m2
- Plocha pozemku: 3 070.00m2
- Investor: Milan Kovalančík
Související projekty
Související architekti
Související ateliéry a firmy
Mohlo by vás zajímat

1/44

Smaltovna Lučenec, GutGut/ Ing. arch. Štefan Polakovič, Ing. arch. Lukáš Kordík, Bc. Samuel Kadák, Bc. Barbara Rek, Ing. arch. Ľuboš Dobóczi, Ing. arch. Filip Hečko.
2/44

Smaltovna Lučenec, GutGut/ Ing. arch. Štefan Polakovič, Ing. arch. Lukáš Kordík, Bc. Samuel Kadák, Bc. Barbara Rek, Ing. arch. Ľuboš Dobóczi, Ing. arch. Filip Hečko.
3/44

Smaltovna Lučenec, GutGut/ Ing. arch. Štefan Polakovič, Ing. arch. Lukáš Kordík, Bc. Samuel Kadák, Bc. Barbara Rek, Ing. arch. Ľuboš Dobóczi, Ing. arch. Filip Hečko.
4/44

Smaltovna Lučenec, GutGut/ Ing. arch. Štefan Polakovič, Ing. arch. Lukáš Kordík, Bc. Samuel Kadák, Bc. Barbara Rek, Ing. arch. Ľuboš Dobóczi, Ing. arch. Filip Hečko.
5/44

Smaltovna Lučenec, GutGut/ Ing. arch. Štefan Polakovič, Ing. arch. Lukáš Kordík, Bc. Samuel Kadák, Bc. Barbara Rek, Ing. arch. Ľuboš Dobóczi, Ing. arch. Filip Hečko.
6/44

Smaltovna Lučenec, GutGut/ Ing. arch. Štefan Polakovič, Ing. arch. Lukáš Kordík, Bc. Samuel Kadák, Bc. Barbara Rek, Ing. arch. Ľuboš Dobóczi, Ing. arch. Filip Hečko.
7/44

Smaltovna Lučenec, GutGut/ Ing. arch. Štefan Polakovič, Ing. arch. Lukáš Kordík, Bc. Samuel Kadák, Bc. Barbara Rek, Ing. arch. Ľuboš Dobóczi, Ing. arch. Filip Hečko.
8/44

Smaltovna Lučenec, GutGut/ Ing. arch. Štefan Polakovič, Ing. arch. Lukáš Kordík, Bc. Samuel Kadák, Bc. Barbara Rek, Ing. arch. Ľuboš Dobóczi, Ing. arch. Filip Hečko.
9/44

Smaltovna Lučenec, GutGut/ Ing. arch. Štefan Polakovič, Ing. arch. Lukáš Kordík, Bc. Samuel Kadák, Bc. Barbara Rek, Ing. arch. Ľuboš Dobóczi, Ing. arch. Filip Hečko.
10/44

Smaltovna Lučenec, GutGut/ Ing. arch. Štefan Polakovič, Ing. arch. Lukáš Kordík, Bc. Samuel Kadák, Bc. Barbara Rek, Ing. arch. Ľuboš Dobóczi, Ing. arch. Filip Hečko.
11/44

Smaltovna Lučenec, GutGut/ Ing. arch. Štefan Polakovič, Ing. arch. Lukáš Kordík, Bc. Samuel Kadák, Bc. Barbara Rek, Ing. arch. Ľuboš Dobóczi, Ing. arch. Filip Hečko.
12/44

Smaltovna Lučenec, GutGut/ Ing. arch. Štefan Polakovič, Ing. arch. Lukáš Kordík, Bc. Samuel Kadák, Bc. Barbara Rek, Ing. arch. Ľuboš Dobóczi, Ing. arch. Filip Hečko.
13/44

Smaltovna Lučenec, GutGut/ Ing. arch. Štefan Polakovič, Ing. arch. Lukáš Kordík, Bc. Samuel Kadák, Bc. Barbara Rek, Ing. arch. Ľuboš Dobóczi, Ing. arch. Filip Hečko.
14/44

Smaltovna Lučenec, GutGut/ Ing. arch. Štefan Polakovič, Ing. arch. Lukáš Kordík, Bc. Samuel Kadák, Bc. Barbara Rek, Ing. arch. Ľuboš Dobóczi, Ing. arch. Filip Hečko.
15/44

Smaltovna Lučenec, GutGut/ Ing. arch. Štefan Polakovič, Ing. arch. Lukáš Kordík, Bc. Samuel Kadák, Bc. Barbara Rek, Ing. arch. Ľuboš Dobóczi, Ing. arch. Filip Hečko.
16/44

Smaltovna Lučenec, GutGut/ Ing. arch. Štefan Polakovič, Ing. arch. Lukáš Kordík, Bc. Samuel Kadák, Bc. Barbara Rek, Ing. arch. Ľuboš Dobóczi, Ing. arch. Filip Hečko.
17/44

Smaltovna Lučenec, GutGut/ Ing. arch. Štefan Polakovič, Ing. arch. Lukáš Kordík, Bc. Samuel Kadák, Bc. Barbara Rek, Ing. arch. Ľuboš Dobóczi, Ing. arch. Filip Hečko.
18/44

Smaltovna Lučenec, GutGut/ Ing. arch. Štefan Polakovič, Ing. arch. Lukáš Kordík, Bc. Samuel Kadák, Bc. Barbara Rek, Ing. arch. Ľuboš Dobóczi, Ing. arch. Filip Hečko.
19/44

Smaltovna Lučenec, GutGut/ Ing. arch. Štefan Polakovič, Ing. arch. Lukáš Kordík, Bc. Samuel Kadák, Bc. Barbara Rek, Ing. arch. Ľuboš Dobóczi, Ing. arch. Filip Hečko.
20/44

Smaltovna Lučenec, GutGut/ Ing. arch. Štefan Polakovič, Ing. arch. Lukáš Kordík, Bc. Samuel Kadák, Bc. Barbara Rek, Ing. arch. Ľuboš Dobóczi, Ing. arch. Filip Hečko.
21/44

Smaltovna Lučenec, GutGut/ Ing. arch. Štefan Polakovič, Ing. arch. Lukáš Kordík, Bc. Samuel Kadák, Bc. Barbara Rek, Ing. arch. Ľuboš Dobóczi, Ing. arch. Filip Hečko.
22/44

Smaltovna Lučenec, GutGut/ Ing. arch. Štefan Polakovič, Ing. arch. Lukáš Kordík, Bc. Samuel Kadák, Bc. Barbara Rek, Ing. arch. Ľuboš Dobóczi, Ing. arch. Filip Hečko.
23/44

Smaltovna Lučenec, GutGut/ Ing. arch. Štefan Polakovič, Ing. arch. Lukáš Kordík, Bc. Samuel Kadák, Bc. Barbara Rek, Ing. arch. Ľuboš Dobóczi, Ing. arch. Filip Hečko.
24/44

Smaltovna Lučenec - stav objektu před rekonstrukcí, GutGut.
25/44

Smaltovna Lučenec - stav objektu před rekonstrukcí, GutGut.
26/44

Smaltovna Lučenec - stav objektu před rekonstrukcí, GutGut.
27/44

Smaltovna Lučenec - stav objektu před rekonstrukcí, GutGut.
28/44

Smaltovna Lučenec - stav objektu před rekonstrukcí, GutGut.
29/44

Smaltovna Lučenec - stav objektu před rekonstrukcí, GutGut.
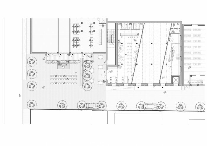
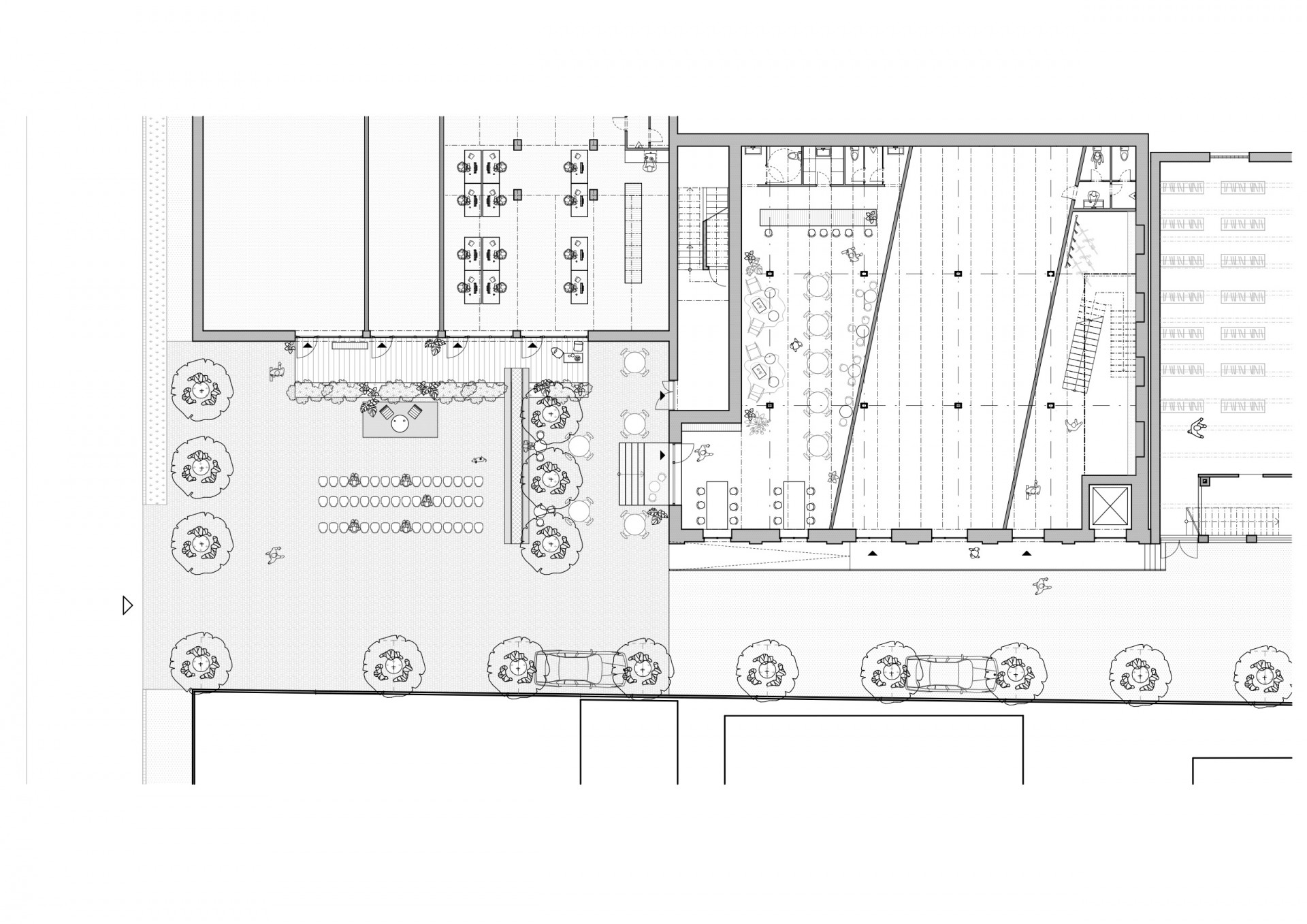
30/44

Smaltovna Lučenec, GutGut, 1NP návrh
31/44

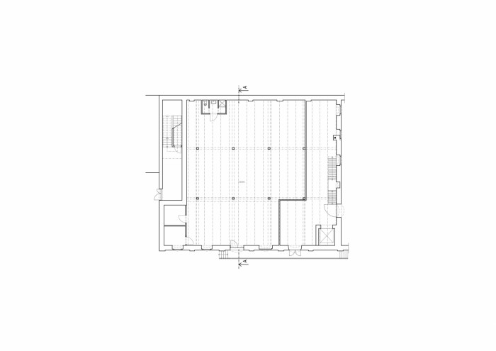
Smaltovna Lučenec, GutGut, 1NP původní
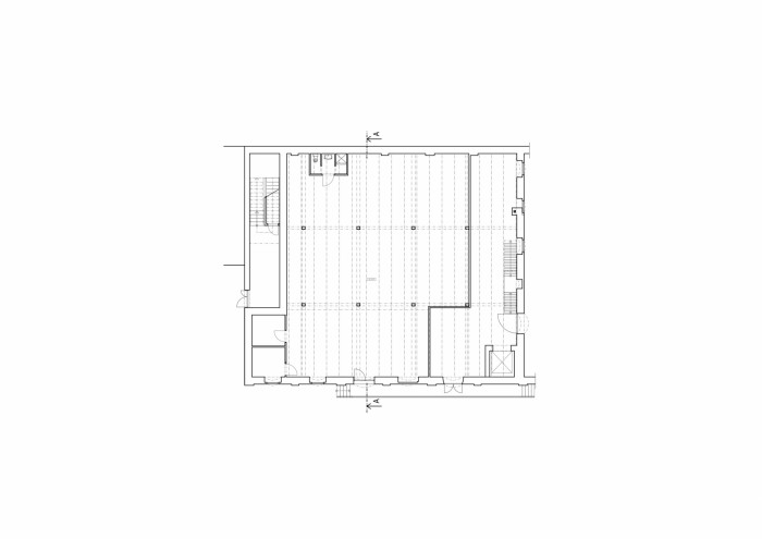
32/44

Smaltovna Lučenec, GutGut, 2NP návrh
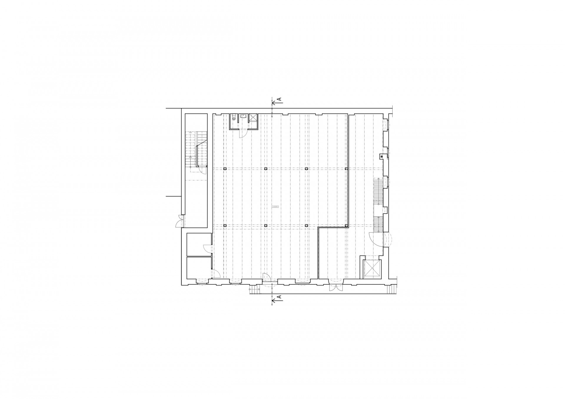
33/44

Smaltovna Lučenec, GutGut, 2NP původní
34/44

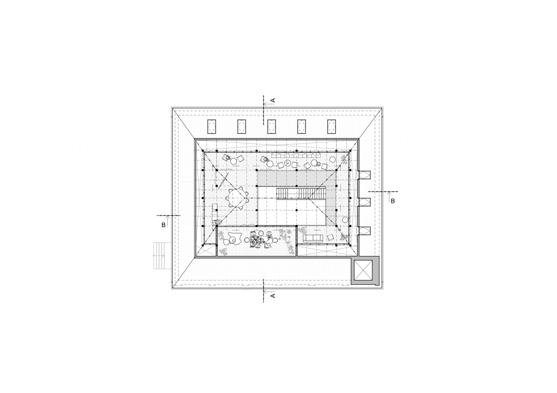
Smaltovna Lučenec, GutGut, 3NP návrh
35/44

Smaltovna Lučenec, GutGut, 3NP původní
36/44

Smaltovna Lučenec, GutGut, axonometrie
37/44

Smaltovna Lučenec, GutGut, podélný řez
38/44

Smaltovna Lučenec, GutGut, příčný řez
39/44

Smaltovna Lučenec, GutGut, řez původní
40/44

Smaltovna Lučenec, GutGut, řez všemi objekty
41/44

Smaltovna Lučenec, GutGut, schéma
42/44

Smaltovna Lučenec, GutGut, schéma
43/44

Smaltovna Lučenec, GutGut, schéma
44/44