GutGut - Dům Hexagon

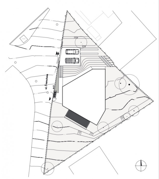
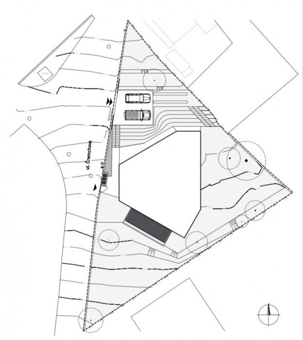
Dom pre päťčlennú rodinu sa nachádza na svahovitom pozemku v tvare trojuholníka. Jeho súčasťou je sad s ovocnými stromami a funkčná záhrada s posedením pod vysokou borovicou. V najvrchnejšom cípe pozemku je naplánovaný záhradný domček na hospodárske účely.
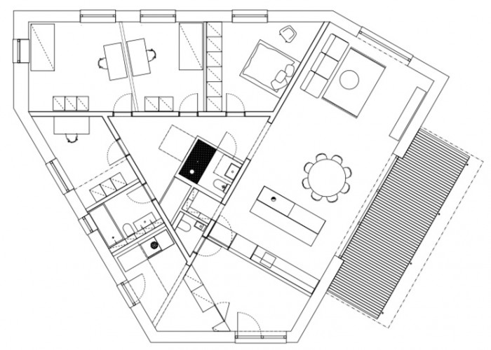
Dom má pôdorysný tvar nepravidelného šesťuholníka. Náhrdelník obytných miestností po obvode dispozície domu je vo vnútri prepojený trojuholníkovou halou so svetlíkom.
Materialita vnútorných konštrukcií je nosnou vrstvou interiéru domu. Presné betónové tvárnice, drevený trámový strop a drevené rámy okien dopĺňajú hladké omietané biele steny obvodových múrov.
- Ateliér: gutgut
- Spolupráce: Andrej Morávek, Alan Prekop, Tomáš Vrtek
- Země: Slovensko
- Město: Bratislava
- Datum projektu: 2017
- Realizace: 2019
- Užitná plocha: 150.00m2
- Zastavěná plocha: 190.00m2
- Plocha pozemku: 882.00m2
Související projekty
Související architekti
Související ateliéry a firmy
Mohlo by vás zajímat

1/21

Dům Hexagon, GutGut/ Štefan Polakovič, Lukáš Kordík. Foto: Nora a Jakub Čaprnkovci, výřez z fotografie
2/21

Dům Hexagon, GutGut/ Štefan Polakovič, Lukáš Kordík. Foto: Nora a Jakub Čaprnkovci
3/21

Dům Hexagon, GutGut/ Štefan Polakovič, Lukáš Kordík. Foto: Nora a Jakub Čaprnkovci
4/21

Dům Hexagon, GutGut/ Štefan Polakovič, Lukáš Kordík. Foto: Nora a Jakub Čaprnkovci
5/21

Dům Hexagon, GutGut/ Štefan Polakovič, Lukáš Kordík. Foto: Nora a Jakub Čaprnkovci
6/21

Dům Hexagon, GutGut/ Štefan Polakovič, Lukáš Kordík. Foto: Nora a Jakub Čaprnkovci
7/21

Dům Hexagon, GutGut/ Štefan Polakovič, Lukáš Kordík. Foto: Nora a Jakub Čaprnkovci
8/21

Dům Hexagon, GutGut/ Štefan Polakovič, Lukáš Kordík. Foto: Nora a Jakub Čaprnkovci
9/21

Dům Hexagon, GutGut/ Štefan Polakovič, Lukáš Kordík. Foto: Nora a Jakub Čaprnkovci
10/21

Dům Hexagon, GutGut/ Štefan Polakovič, Lukáš Kordík. Foto: Nora a Jakub Čaprnkovci
11/21

Dům Hexagon, GutGut/ Štefan Polakovič, Lukáš Kordík. Foto: Nora a Jakub Čaprnkovci
12/21

Dům Hexagon, GutGut/ Štefan Polakovič, Lukáš Kordík. Foto: Nora a Jakub Čaprnkovci
13/21

Dům Hexagon, GutGut/ Štefan Polakovič, Lukáš Kordík. Foto: Nora a Jakub Čaprnkovci
14/21

Dům Hexagon, GutGut, situace
15/21

Dům Hexagon, GutGut, půdorys
16/21

Dům Hexagon, GutGut, jihozápadní pohled
17/21

Dům Hexagon, GutGut, východní pohled
18/21

Dům Hexagon, GutGut, západní pohled
19/21

Dům Hexagon, GutGut, řez
20/21

Dům Hexagon, GutGut, řez
21/21