GutGut - Bytový dům Račianska

Bytový dom na Račianskej ulici je rekonštrukciou a nadstavbou pôvodného domu s bytmi pre zamestnancov susednej tlačiarne Svornosť. V pôvodnom dome sa nachádzali len malometrážne byty, ktoré boli preusporiadané na nový pestrý mix bytov.
Nový raster okien vizuálne spojil pôvodný dom s nadstavbou do jedného objemu. V dvorovej časti sme doplnili dlhé, priebežné loggie. Na najvyššom podlaží sú dva veľké byty s rekreačnými patiami. Nový výťah a úpravy v spodnej hale umožnili bezbariérový prístup zo strany ulice. Dom je prvou etapou pripravovanej rekonštrukcie areálu bývalých tlaciarní Svornosť, ktoré sa premenia na objekt s loftovými bytmi.
- Autoři: Matej Honč, Barbara Borščová
- Ateliér: gutgut
- Země: Slovensko
- Město: Bratislava
- Realizace: 2019
- Zastavěná plocha: 372.00m2
- Plocha pozemku: 1 611.00m2
- Obstavaný priestor: 8912 m³
- Hrubé podlažné plochy: 2986 m²
Související projekty
Související architekti
Související ateliéry a firmy
Mohlo by vás zajímat

1/23

Bytový dům Račianska, GutGut
Foto: Lukáš Kordík, Luboš Dobóczi
2/23

Bytový dům Račianska, GutGut
Foto: Lukáš Kordík, Luboš Dobóczi
3/23

Bytový dům Račianska, GutGut
Foto: Lukáš Kordík, Luboš Dobóczi
4/23

Bytový dům Račianska, GutGut
Foto: Lukáš Kordík, Luboš Dobóczi
5/23

Bytový dům Račianska, GutGut
Foto: Lukáš Kordík, Luboš Dobóczi
6/23

Bytový dům Račianska, GutGut
Foto: Lukáš Kordík, Luboš Dobóczi
7/23

Bytový dům Račianska, GutGut
Foto: Lukáš Kordík, Luboš Dobóczi
8/23

Bytový dům Račianska, GutGut, původní stav
9/23

Bytový dům Račianska, GutGut, původní stav
10/23

Bytový dům Račianska, GutGut, situace
11/23

Bytový dům Račianska, GutGut, situace
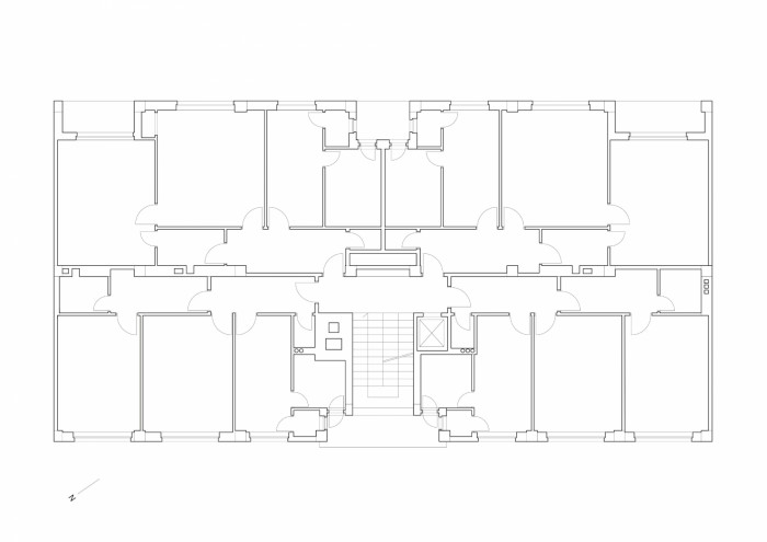
12/23

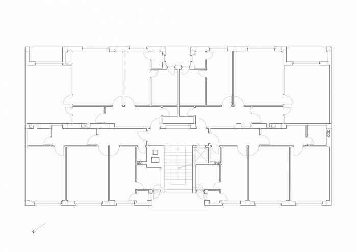
Bytový dům Račianska, GutGut, půdorys 1NP
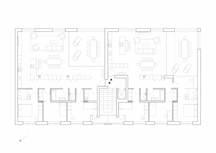
13/23

Bytový dům Račianska, GutGut, půdorys 2NP
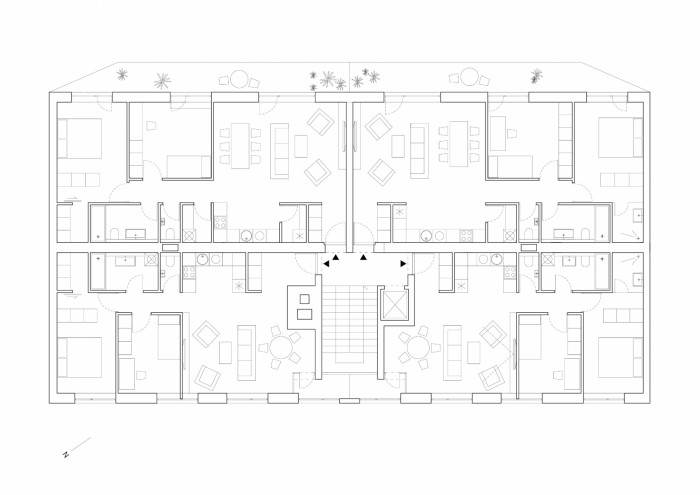
14/23

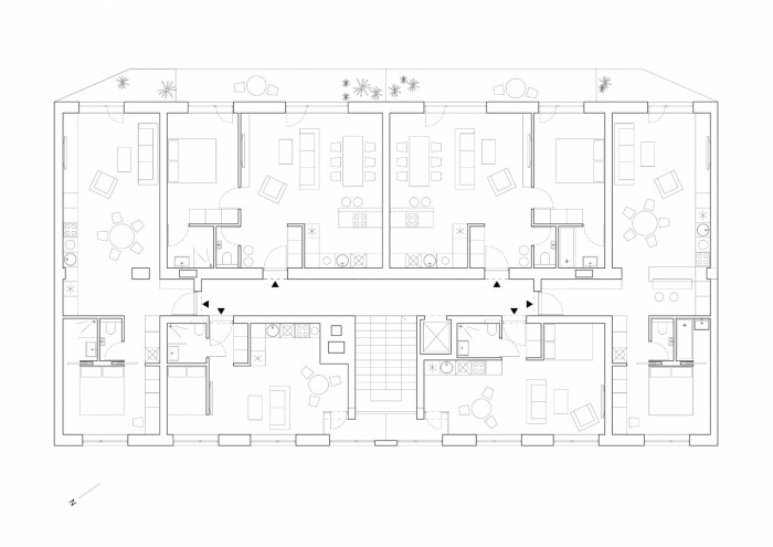
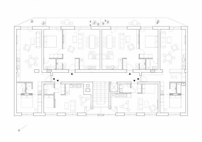
Bytový dům Račianska, GutGut, půdorys 3-7NP
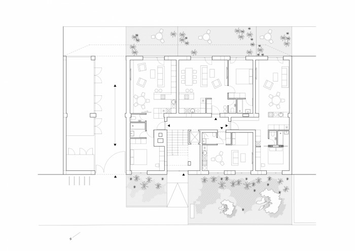
15/23

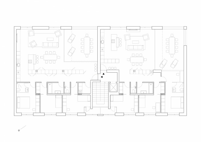
Bytový dům Račianska, GutGut, půdorys 8NP
16/23

Bytový dům Račianska, GutGut, půdorys původní stav
17/23

Bytový dům Račianska, GutGut, původní pohled
18/23

Bytový dům Račianska, GutGut, finální pohled
19/23

Bytový dům Račianska, GutGut, původní pohled
20/23

Bytový dům Račianska, GutGut, finální pohled
21/23

Bytový dům Račianska, GutGut, řez
22/23

Bytový dům Račianska, GutGut, řez
23/23