Východoněmecká silbermode 5. díl: Polygonální krystaly v Drážďanech
V posledním díle seriálu o východoněmecké silbermode se zaměříme na jednoho z nejvýznamnějších představitelů tohoto poválečného stylu. Obchodní dům Centrum byl postaven jako součást nově vzniklé Prager Strasse v Drážďanech, která je řazena k největším poválečným obchodním ulicím. Tento, do detailu promyšlený chrám konzumu s jedinečným obvodovým pláštěm tvořeným polygonálními hliníkovými krystaly a vysunutými kukaněmi, se však dnešních dní nedožil. Byl kompletně zdemolován a v roce 2009 nahrazen novým obchodním centrem, který na slávu svého předchůdce odkazuje nárožím s kopií původních krystalů.
Jiří Moos , 27. 7. 2018
Poslední část cyklu o východoněmecké silbermode bude věnována obchodnímu domu Centrum na Prager Strasse v Drážďanech. Svým řešením obvodového pláště se právě drážďanský obchodní dům řadí k nejvýznamnějším příkladům silbermode. Dům, otevřený na podzim rok 1978, navrhla maďarská projektová společnost AETV Budapešť v čele s architektem Ferencem Simonem.
Drážďany postihlo drtivým způsobem bombardování během druhé světové války. Téměř celé město bylo v podstatě znovu vystavěno ze suti, včetně historických budov. Novou městskou osou se stala Prager Strasse, jež patří k největším poválečným obchodním ulicím. A právě obchodní dům Centrum byl součástí generálního plánu této významné osy, který nakupujícím nabídl téměř 10 330 m2 prodejní plochy.

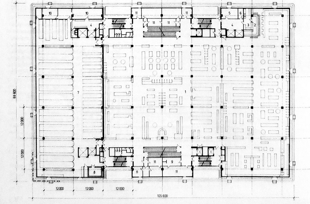
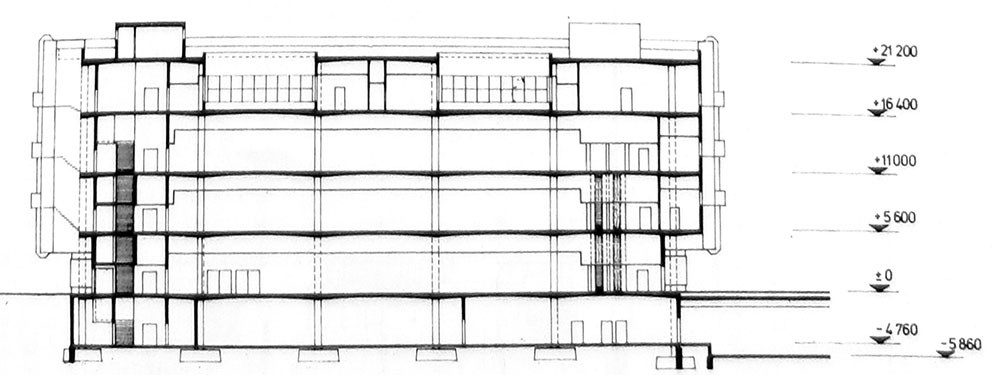
Forma domu prakticky vzešla z půdorysného řešení a jeho funkce. Centrum v Drážďanech měl suterén a 4 nadzemní podlaží. V podzemním podlaží se přijímalo a skladovalo zboží. Do domu se vcházelo 6 vstupy ze všech čtyř stran. Přízemí bylo provozně rozděleno na dvě části – průmyslové zboží a potraviny se zbožím denní potřeby. Dále zde byly nabízeny vedlejší zákaznické služby jako dětský koutek, šatna či infokoutek. Druhé nadzemní podlaží sloužilo k prodeji oděvů, bot a drogerie. Nacházela se zde i kavárna s 20 místy. Třetí podlaží nabízelo v části dispozice větší průmyslové zboží, například radia, televize a sportovní potřeby. Zbylá část podlaží sloužila jako restaurační zařízení pro zákazníky i personál. V posledním podlaží domu se kolem čtyř atrií nacházely kanceláře, ale i další služby typu lékař, kadeřník či kosmetika. Vzhledem k tomu, že blízko domu se nacházela rozsáhlá parkovací plocha, garáže v domě nebyly. Vertikální komunikaci zajišťovaly čtyři eskalátory, čtyři schodiště a 2 výtahy. Eskalátory byly netradičně odsunuty z těžiště prodejní plochy.

Interiéry navrhl Ivan Fokvari. Podlahy skladů a zásobování byly z asfaltu, prodejní plochy v přízemí byly z teraza a v horních podlažích byla parketová podlaha. Každé podlaží mělo jiný barevný nádech, jednotlivá oddělení v rámci podlaží se lišila sytostí základní barvy. Prodejní plochy, restaurace pro zákazníky a velká kancelář byly klimatizovány.
Výstavba domu trvala relativně dlouho. Na přelomu let 1969 a 1970 byly hloubeny výkopy a poté, do roku 1973, byly stavební práce zastaveny. Do otevření domu uběhlo dlouhých 8 let. Konstrukci tvoří monolitický železobetonový skelet o modulu 12 x 12 metrů. Obousměrně pnuté desky byly v místě podpor zesíleny. Proměnná tloušťka desky umožnila i při uvažovaném zatížení 7,5 kN/m2 uprostřed rozponu snížit její tloušťku až na 120 milimetrů.

Vertikální komunikace nebyly nijak exteriérově zvýrazněny, ztratily se v hmotě „krabice“. Zapuštěné přízemí bylo celoprosklené a obvodový plášť vyšších podlaží byl umělecky ztvárněn. Tvořila jej pravidelná struktura polygonálních krystalů z eloxovaného hliníku. Lapidární hranol tak získal hloubku a volný solitér působil v prostoru jako socha. Nepravidelné kukaně v plášti rozbily vjem celistvé kostky a jejich umístění vyšlo především s ohledem na požární předpisy. Jednalo se totiž o místa, při kterých by probíhal případný protipožární zásah. Hliníkový obklad byl zavěšen na samostatné ocelové konstrukci.
Bohužel, v roce 2007 došlo k úplné demolici domu. Na jeho místě vznikla nová obchodní galerie, která byla otevřena v roce 2009. Část nového nároží zdobí 3400 nově vyrobených krystalů kopírující strukturu z původního domu. Demolicí obchodního domu Centrum v Drážďanech došlo ke ztrátě domu s pravděpodobně nejoriginálnějším obvodovým pláštěm v poválečné architektuře východního Německa.

Závěr
Pětidílný cyklus se pokusil přiblížit historii a význam nejvýznamnějších příkladů východoněmecké silbermode. Je až s podivem, co se s významnými stavbami německé poválečné moderny po pádu železné opony stalo. Zánik centrálně řízeného hospodářství a změna způsobu prodeje učinila z chrámů konzumu prázdné pomníky, které se staly zátěží. Část z nich byla zdemolována, aby uvolnila místo novodobým nákupním komplexům, jiná část prošla nemilosrdnou a decimující rekonstrukcí. Osud socialistických obchodních domů v NDR je odstrašujícím příkladem, který bohužel, pokud již nedostihl, zřejmě čeká i československé chrámy konzumu.
Cyklus byl podpořen grantem Studentské grantové soutěže ČVUT č. SGS17/038/OHK1/1T/11 „Vývoj typologie obchodu v 60. a 70. letech 20. století v československé architektuře“.