Adam Rujbr navrhl první pasivní zdravotnický pavilon u nás
V Olomouci vyrostl nový pavilon II. Interní kliniky splňující standardy pasivních budov, jehož autorem je ateliér Adam Rujbr Architects. Moderní a „technologicky inteligentní“ objekt představuje pro pacienty i nemocniční pracovníky příjemné prostředí s dostatkem denního světla a komfortním vnitřním klimatem, které zajišťuje vyspělé vzduchotechnické vybavení. Kvalitní prostředí pro léčbu, energeticky šetrná stavba – pavilon Adama Rujbra nastavuje ostatním zdravotnickým zařízením vysokou laťku.
Tereza Hůrská , 29. 10. 2018
Ač vedení Fakultní nemocnice v Olomouci původně přemýšlelo nad možností zrekonstruovat starý pavilon, přiklonilo se nakonec k řešení v podobě novostavby. Stávající prostory se totiž ukázaly jako zcela nevyhovující současným nárokům na léčbu a komfort pacientů. Architekt Adam Rujbr proto navrhl nový moderní pavilon umožňující vysoký standard poskytované zdravotní péče. Pavilon II. Interní kliniky s pracovišti endoskopie a geriatrie se stal nejen objektem šetrným ke svým „hostům“, ale také k životnímu prostředí – jako jediný svého druhu u nás totiž splňuje požadavky pasivní budovy. Svou energetickou náročností se olomoucký pavilon dostává až na desetkrát menší hodnoty, než jaká vykazují podobná zdravotní zařízení.
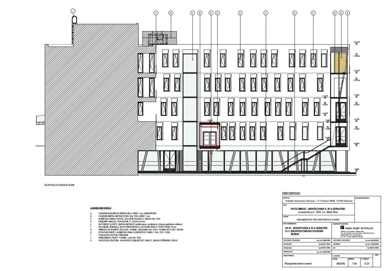
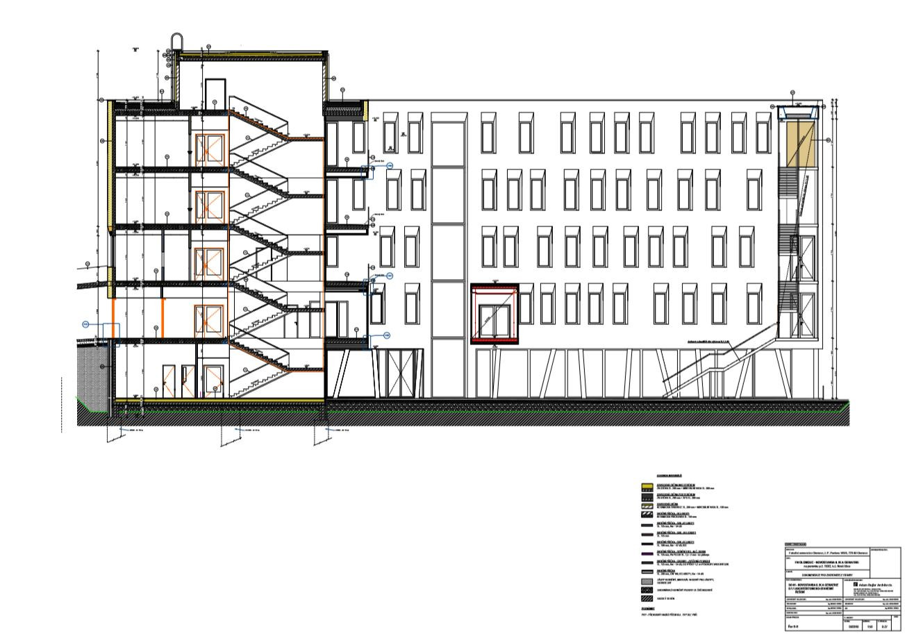
Pavilon je navržen ve tvaru U se čtyřmi nadzemními a jedním částečně zapuštěným podzemním podlažím. Bíle omítaný kvádr prořezává velké množství okenních otvorů různých šířek s antracitovými rámy, přičemž zasklení je s pevnou hmotou fasády v optimálním poměru zajišťujícím dostatečné osvětlení vnitřních prostor. Okna mají navíc sešikmená ostění a nadpraží, čímž se do interiéru může dostat ještě více slunečního světla. Denním světlem nejsou osvětleny pouze lůžkové pokoje, ale také veškeré veřejné prostory, čekárny a chodby.
Elegantní a jednoduchá bílá hmota objektu přirozeně zapadla do stávající areálu, na sousední nemocniční objekty je pak napojena pomocí nadzemních krytých mostů.
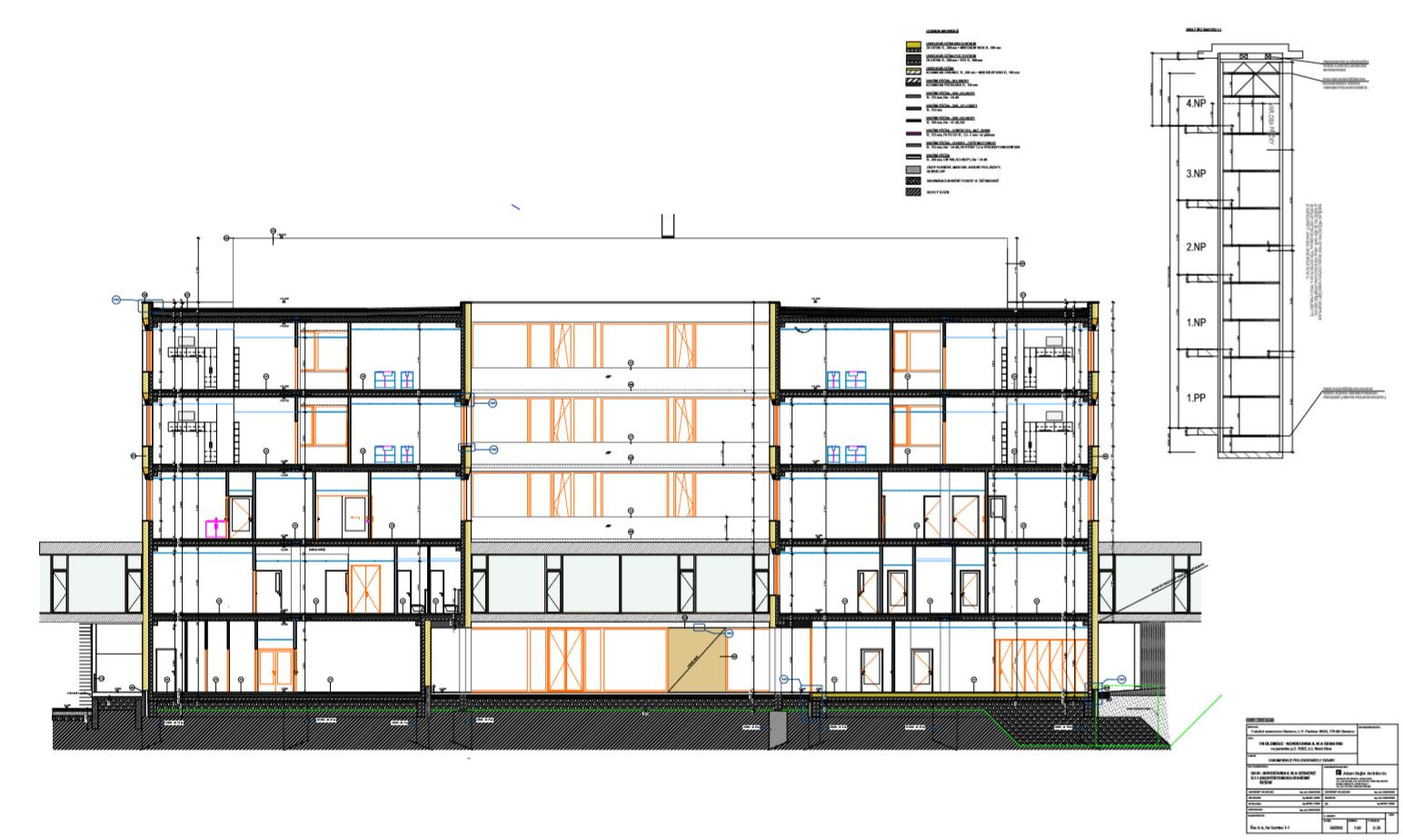
Stavba obklopuje vnitřní atrium, které je ze čtvrté strany „uzavřeno“ venkovním schodištěm krytým treláží porostlou zelení. Vedle tohoto schodiště zajišťuje vertikální dopravu v pavilonu také jedno vnitřní schodiště a čtyři výtahy. Díky výhodně zvolenému půdorysnému tvaru je budova velice kompaktní a umožňuje variabilní a přehledný návrh vnitřních dispozic. Ve svých útrobách ukrývá kromě ošetřovacích prostor daných oddělení také jednotku intenzivní péče a lůžková oddělení s celkem 100 postelemi v jednolůžkových, dvoulůžkových či nadstandardních jednolůžkových pokojích, které pacientům poskytují maximální míru intimity. Pro maximální komfort pacientů i pracovníků jsou všechny místnosti vybaveny vzduchotechnikou s rekuperací s až 5-ti násobnou výměnou vzduchu, v pavilonu jsou umístěny také chlazené stropy.
Nosný systém budovy tvoří železobetonový monolit se stěnami tloušťky 200 mm, který je kombinován s prefabrikovanými stropy na spřažených ocelobetonových nosnících v rovině stropu. 200 mm silnou základovou desku podpírá soustav vrtaných železobetonových pilot.
- Ateliér: Adam Rujbr Architects
- Země: Česká republika
- Město: Olomouc
- Ulice, číslo: I. P. Pavlova, 6
- Suma: 290 000 000.00
- Měna: CZK
- Datum projektu: 2015
- Realizace: 2018
- Užitná plocha: 8 210.00m2


