City Campus v Ostravě jako katalyzátor dalšího rozvoje města
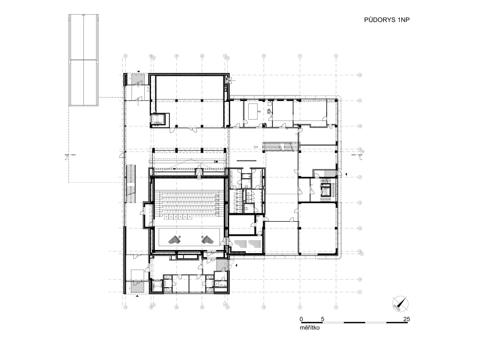
V areálu výstaviště nedaleko centra Ostravy byl nedávno slavnostně otevřen nový kampus Ostravské univerzity City Campus. Tvoří jej dvě stavby, a to Zázemí sportu a behaviorálního zdraví s vnitřním běžeckým oválem a Klastr umění a designu s hudebním sálem o kapacitě až 250 míst.
EARCH.CZ , 7. 4. 2023 / Advertorial
Město Ostrava je sídlem hned dvou vysokých škol – Vysoké školy báňské a Ostravské univerzity. Druhá jmenovaná se od nedávna může pyšnit moderním, soudobým a technologicky vyspělým kampusem, který má mimo svůj vlastní účel sloužit také jako katalyzátor dalšího rozvoje města a vlajková loď podtrhující důležitost vysokoškolského vzdělání.
Areál City Campus se nachází v oblasti Černá louka, mezi výstavištěm a Karolinou, které v posledních dekádách prochází transformací v moderní městskou čtvrť s bydlením, kancelářemi a prostory pro rekreaci. Jihozápadní stranu kampusu uzavírá řeka Ostravice se Slezskoostravským hradem na protějším břehu. Toto území je pro univerzitní kampus ideální. Nachází se totiž v úzkém centru města, zároveň je ale obklopeno řekou, parkem, stromy a loukami, které studentům, zaměstnancům, návštěvníkům a obyvatelům poskytují klidnou lokaci pro studium, práci, odpočinek a rekreaci.
City Campus tvoří dvě hlavní stavby – Zázemí sportu a behaviorálního zdraví a Klastr umění a designu. Ty jsou na pozemku umístěny tak, aby mezi sebou vytvořily logickou vazbu, ale zároveň si uchovaly vlastní charakter, který odráží jejich vnitřní náplň. Zároveň z jejich umístění vychází dostatek prostoru pro venkovní sportovní zázemí a veřejné prostory, z nichž nejdůležitější je volný prostor náměstí, který se mezi nimi otevírá.
Více k tématu
Krytá běžecká dráha z exteriéru vytváří novou dominantu území
Za návrhem stavby Zázemí sportu a behaviorálního zdraví stojí ostravský Atelier Simona Group. Na první dojem upoutá pozornost svým technicistním výrazem, rozlehlým venkovním schodištěm spojujícím terén se střechou objektu, a především vnitřním běžeckým oválem. Propisuje se i do exteriéru skrze zaoblenou hmotu, která vystupuje do prostoru, čímž budově dodává monumentální a zapamatovatelnou podobu.

Výrazově silné venkovní terasovité schodiště spojuje všechna nadzemní patra objektu s exteriérem, terénem a střechou. Mimo to, že slouží jako komunikace mezi jednotlivými patry, poskytuje také dostatek pobytových ploch pro sezení a odpočinek. Stává se obrovským amfiteátrem, který je schopen pojmout až 1 200 diváků. To skýtá nespočet možností pro venkovní a společenské akce všeho druhu.
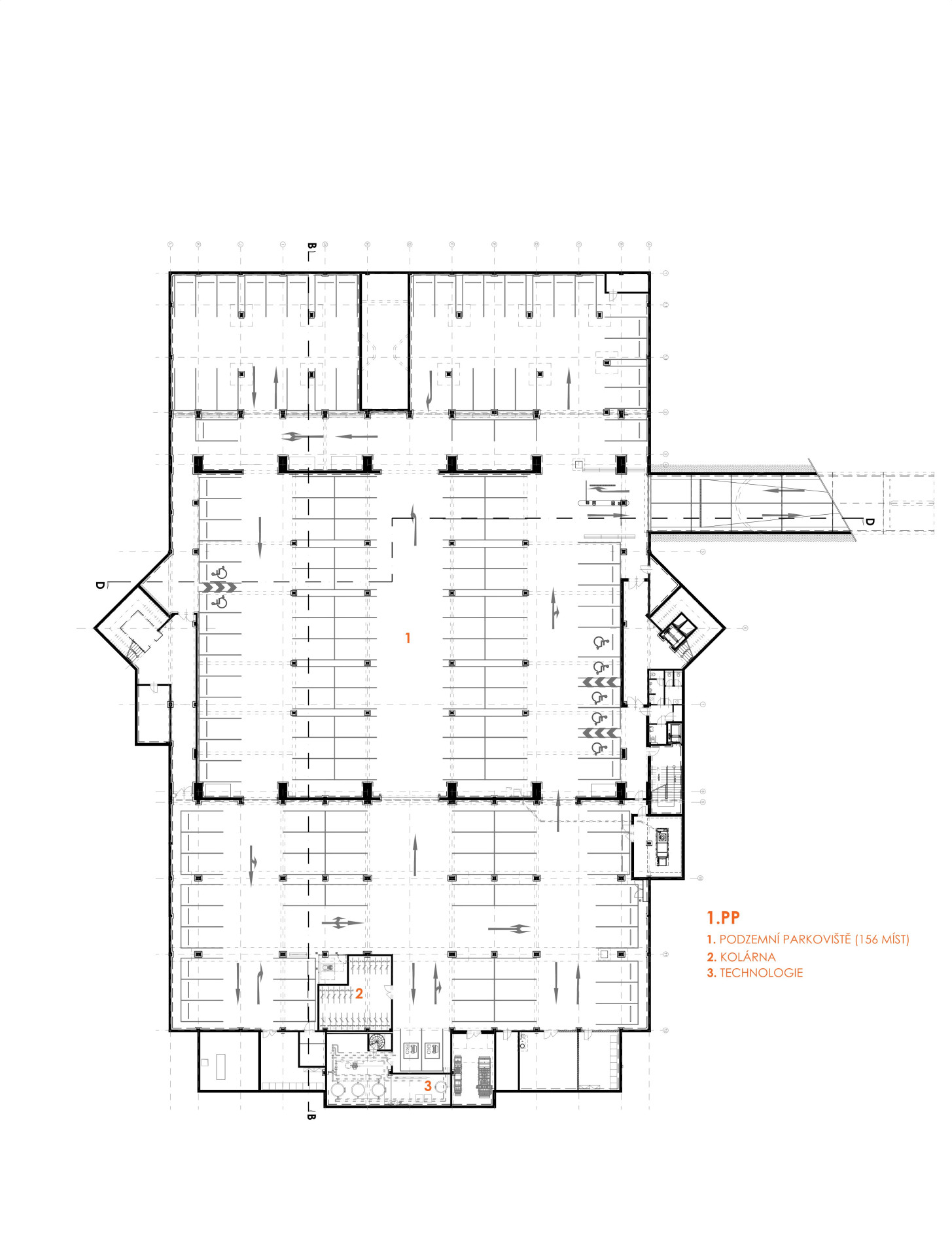
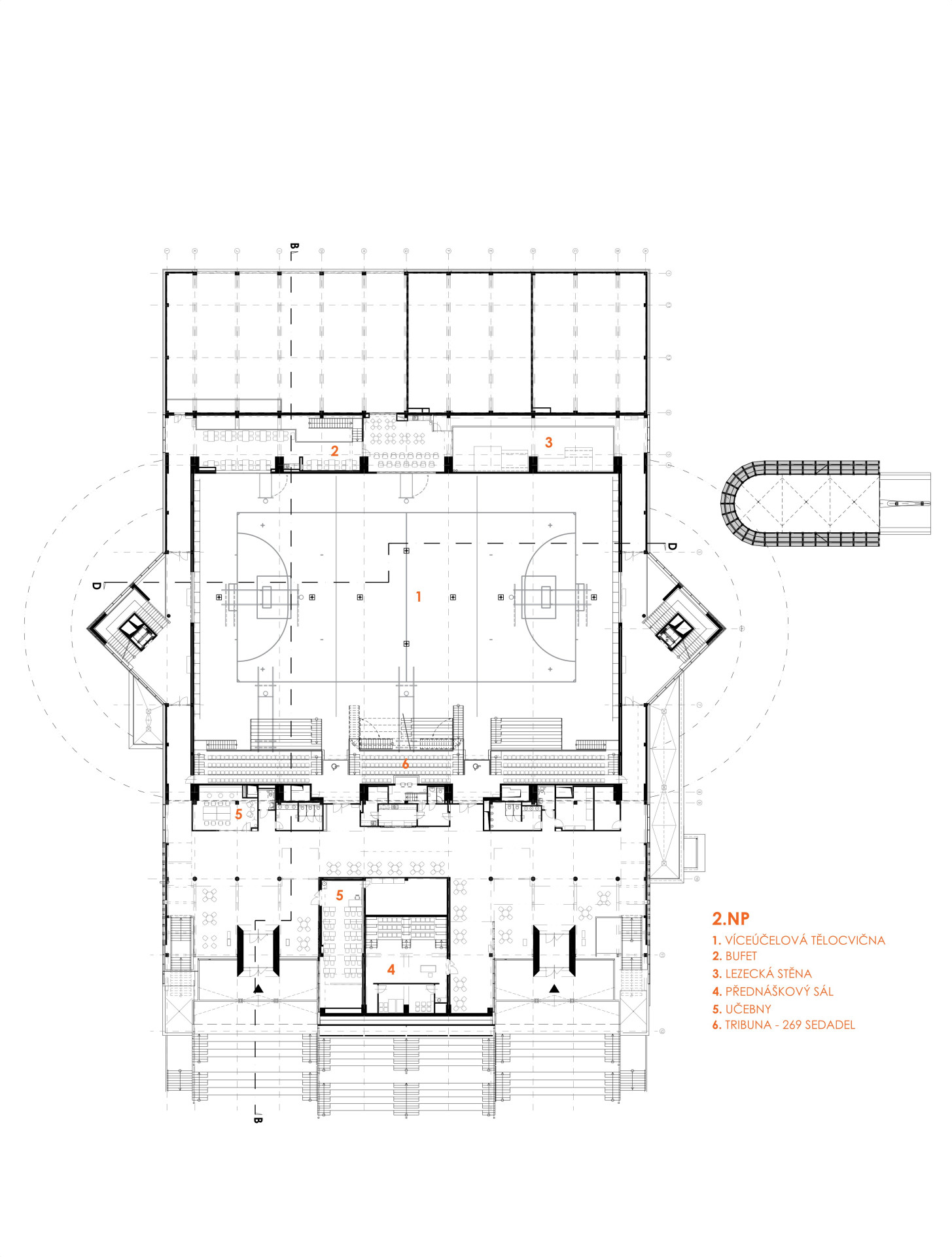
Provozně je objekt rozdělen do tří celků. První celek obsahuje kancelářské a administrativní prostory, druhý celek sportovní zázemí pro všechny druhy sportu a pohybových aktivit s centrální sportovní halou a běžeckým oválem. Třetí celek je vyhrazen jednotlivým shromažďovacím prostorům, posluchárnám společně s technickým a technologickým zázemím. Velká centrální sportovní hala je středobodem celé stavby a společně s běžeckým oválem jedním z klíčových prvků celého konceptu. Střecha krytého běžeckého oválu pak slouží jako otevřená zelená střecha s oválem pro jízdu na bruslích a hřištěm.
Klastr umění zaujme jednoduchým řešením a atypickou fasádou
Klastr umění v sobě sdružuje především prostory pro hudební obory, obory grafického designu a výstavní prostory pro volné umění. Součástí budovy je hudební sál pro komorní hudbu s kapacitou až 250 míst. Autorem projektu je architektonické studio KANIA a.s., které návrh pojalo jako kompaktní celek složený ze dvou jednoduchých kvádrů. Ty se svým obsahem a provozy od sebe navzájem liší, jejich rozdílnost je podpořena i navenek ve formě odlišného členění a kontrastního materiálového řešení fasád.

Podélný kvádr s betonovou fasádou obsahuje především hudební sál a reprezentativní komunikační prostor, vertikální kvádr zase výukové prostory uspořádané kolem centrálního atria. Kvádr je pozoruhodný svým atypickým řešením fasády provedené z příčně členěných hliníkových trubek. „V trubkách jsou zabudovány RGB LED moduly, které jsou programovatelné a ve večerních hodinách vytváří na fasádě objektu světelnou show. Objekt je tímto způsobem živý, dynamický a proměnlivý. Fasáda může reagovat na probíhající hudební vystoupení v komorním sále a převést hudební zážitek také na vizuální,“ dodávají autoři.
Při navrhování budovy byl kladen maximální důraz jak na akustiku, tak na jednoduché dispoziční a funkční uspořádání, čistotu a otevřenost provozu. Velké prosklené plochy nebývají akusticky nejvhodnějším řešením, a jsou tudíž umístěny mimo prostory, kde se odehrává hudební výuka. Tímto řešením se podařilo navrhnout objekt s velice dobrými akustickými vlastnostmi, který je zároveň dostatečně otevřený a prosvětlený.
Na tom, aby se architektům podařilo zachovat charakteristický vzhled budov a jejich otevřenost, zároveň bylo dosaženo a vyhověno všem technickým požadavkům a normám, má nemalý podíl firma Aluprof a její široké portfolio produktů fasádních, okenních a dveřních systémů. Ta se podílela na obou projektech nejen jako dodavatel materiálů, technologií pro skleněné fasády a interiérové systémy, ale také projekčně úzkou spoluprací s architekty a projektanty. Na velkou část vnějšího pláště obou budov, který tvoří prosklené fasády, byly využity prvky z produktové rodiny fasád MB-SR50N. Z tohoto typu fasády je proveden také prosklený kaskádovitý světlík, který je zastíněn pevnými slunolamy MB-Sunprof. V interiéru zase našly uplatnění dělící příčky MB-45 a MB-80 Office.
Návrhy obou realizací byly kvůli své náročnosti a velikosti od začátku zatíženy specifickými požadavky na protipožární odolnost většiny konstrukcí a jejich částí. Právě důraz na protipožární ochranu dnes architektům často při návrzích takto velkých staveb svazuje ruce. Firma Aluprof se tak svou úzkou spoluprací s architekty snaží najít ta nejvhodnější řešení, aby byl autorský návrh architektů maximálně zachován.
- Ateliér: ATELIER SIMONA GROUP, KANIA a.s.
- Spolupráce: Kamil Mrva Architects
- Země: Česká republika
- Město: Ostrava
- Adresa: Moravská Ostrava 3398, 70200 Ostrava - Moravská Ostrava, Česko