Funkcionalistický byt v Praze s židlí po dědečkovi, která vypráví příběhy
Kachlíková fasáda, dubové parkety, železobeton na stropě a prasátko v předsíni. To všechno má byt v pražském činžáku z 30. let - rekonstrukce sem přinesla harmonický mix starého a nového.
Viktorie Majoberová , 19. 9. 2024
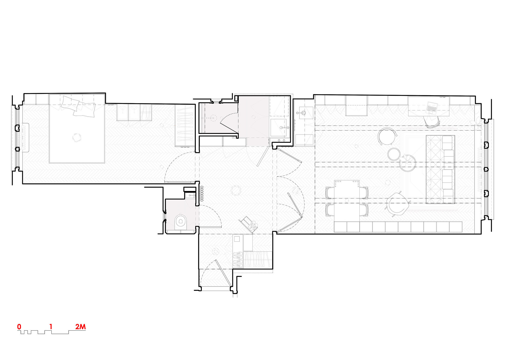
V klasickém pražském činžáku z 30. let na Novém Městě se nacházel byt, který si říkal o rekonstrukci. Nyní má upravenou dispozici a přibyla tu současná vrstva, která pracuje s materiálovou kombinací mořených dubových dýh a bílého laku. Velké pozornosti se dostalo také propojování prvků ze 30. let a dnešního designu, aby se navzájem "nepřekřikovaly."

Nebylo to ovšem snadné a trvalo to dlouho – nekonečných deset let. To proto, že byt si přestavoval sám architekt Martin Čeněk. „Být sám sobě klientem je v mnohém náročnější než plnit zadání formulované někým jiným. Tím spíš, pokud jde o rekonstrukci. Nezbývá, než sám přijmout odpovědnost za všechna rozhodnutí a vystavit se těm rizikům, která běžně jako architekti pečlivě diskutujeme s investory,“ dodává.
Dilemat bylo hodně. „Operoval“ v kontextu poctivého modernismu, byla tu spousta dobových prvků, dům navrhnul ve 30. letech architekt Ladislav Šimek. A tak si jeho následovník Martin Čeněk kladl spoustu otázek. „Byly především zaměřeny na konflikt mezi zachováním silného ducha místa a naproti tomu míry otisku vlastní identity a invence. Co má zvítězit? Jak najít balanc?,“ popisuje to architekt. Snažil se podlehnout „duši existující stavby.“
Když si povídá funkcionalismus s moderním designem
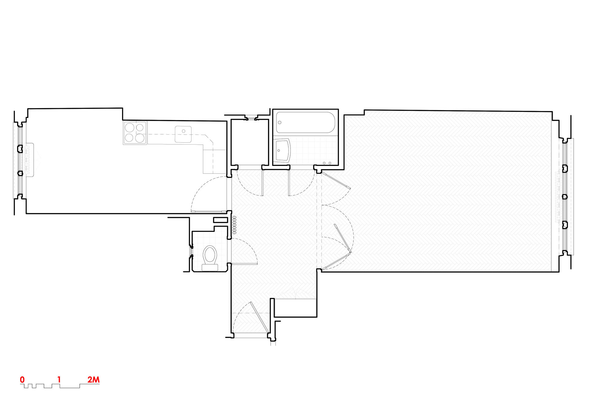
Byt byl před rekonstrukcí ve špatném technickém stavu a bylo potřeba mnoho zásahů. To „rozvázalo“ ruce architektovi, jelikož mohl změnit například i dispoziční řešení bytu. „Změna spočívá především v novém využití původní kuchyně a v kompletním vybourání původní spíže a koupelny, které byly nahrazeny novým vloženým nábytkovým blokem obsahujícím úložné prostory, skrytou komfortní koupelnu i část kuchyně,“ popisuje architekt.

Kromě nově navržených příček člení vnitřní prostor také vestavěný nábytek. „Celou jednu stěnu bytu tvoří bíle olejovaný dubový obklad skrývající úložné prostory. Je to pomyslná páteř, která drží byt pohromadě. Jejím protipólem je vzdušná konstrukce knihovny vyrobená z velmi subtilních ocelových profilů,“ vysvětluje autor.
I přes velký rozsah rekonstrukce byla snaha zachovat co nejvíce původních prvků. Repasovalo se „od rána do večera“. Podařilo se zachránit původní okna, dveře a veškeré kování. Původní dubové parkety byly nahrazeny novou replikou. Aktualizovány byly také veškeré povrchy, technické vybavení bytu i konstrukce podlah. Nejvýraznější změna proběhla v obývacím pokoji. Architekt odhalil a očistil železobetonový strop, který se stal výrazným prvkem prostoru.
Více k tématu
Celý interiér je zařízený nábytkem, ke kterému se vážou osobní příběhy. V kuchyni jsou kolem stolu rozestavěné židle Thonet z domu babičky a dědy. Křesílko v obývacím pokoji používal ve své pracovně architektův prastrýc stavitel. Je tu také klasická funkcionalistická trubková židle Ez12 a dobová stropní svítidla.
Příběhy, které vypráví staré kusy nábytku architekt doplnil spíše minimalisticky současnými prvky. A jako úkrok stranou od principů je tu taburet – růžové prasátko. To je prý dárek od přátel. „V předsíni připomíná, abychom se jako architekti nebrali vždycky tak vážně.“ doplňuje Martin Čeněk.
- Autoři: Martin Čeněk
- Země: Česká republika
- Město: Praha - Nové Město
- Projekt: 2013 – 2020
- Realizace: 2013 – 2023
- Celková podlahová plocha: 49,2 m²
- Fotograf: Alex Shoots Buildings