Architektura / interiér

Interiér pražského bytu od italských architektů zaujme rafinovanými vestavbami

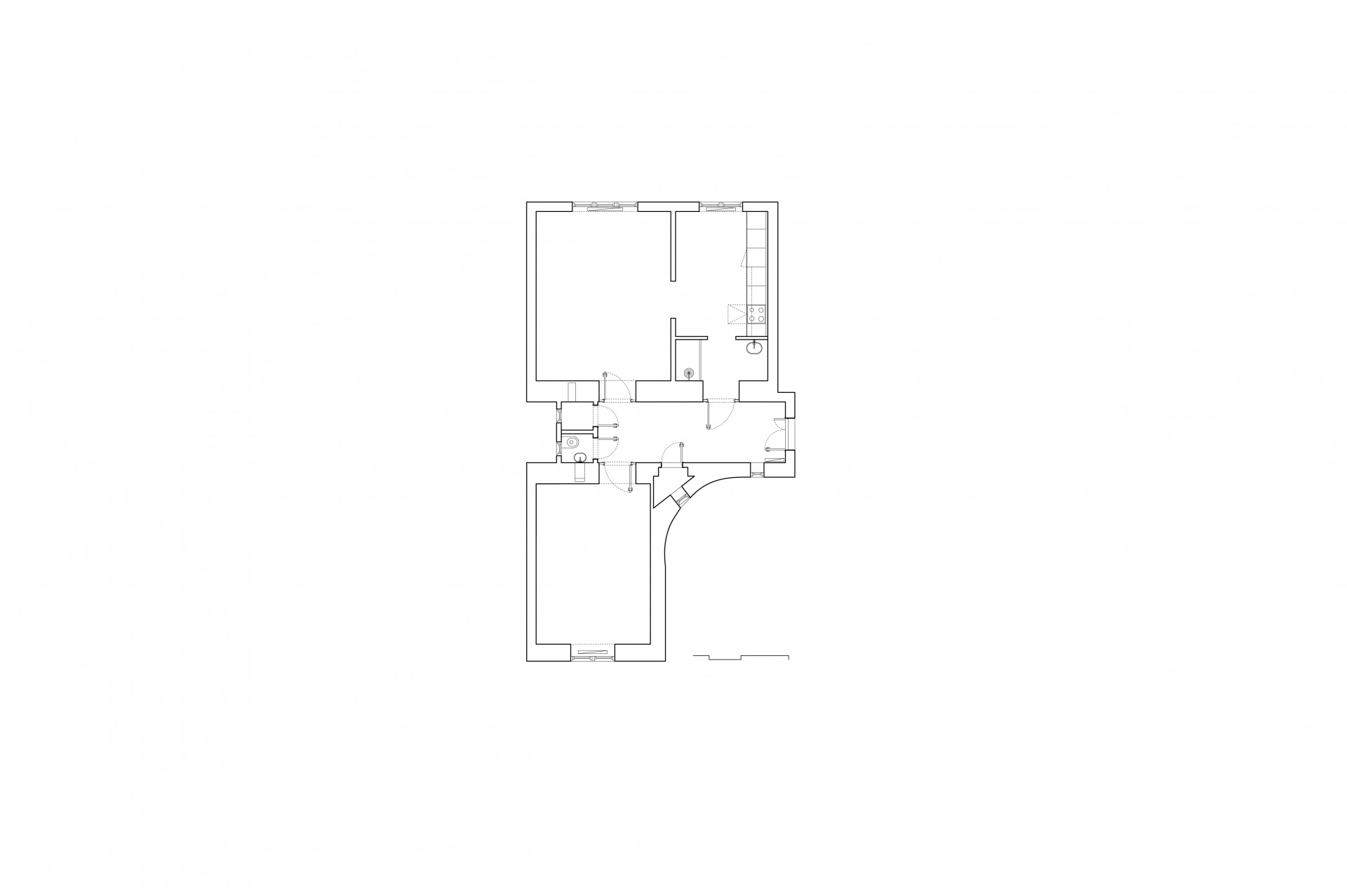
Italské studio alepreda architecture vdechlo bytu na Praze 6 hravost založenou na rafinovaných vložených prvcích. Hlavním úkolem architektů bylo pozměnit nevhodnou dispozici bytu, ve svém návrhu proto pracovali s vloženými vestavbami, které definovaly nové prostory a svou geometrickou stupňovitou strukturou zároveň interiér oživily. Neobvykle tvarované vestavby architekti zvolili jednak z estetického, ale i praktického hlediska - stupně se dají používat k odkládání věcí nebo jako police pro vystavování různých dekorativních předmětů. Motiv geometrického odstupňování prostupuje celým bytem skrze sestavy barevných skříněk až po hravý rytmus obkladů v koupelnách.

alepreda architecture , 5. 10. 2021

  • Autoři: Alessandro Preda
  • Země: Česká republika
  • Realizace: 2021
  • Město: Praha 6
  • Suma: 1 200 000.00
  • Měna: CZK
  • Datum projektu: 2020
  • Realizace: 2021
  • Užitná plocha: 73.00m2
  • Statika: Tomáš Novotný [Novostat]
  • Stavební firma: EuroEdil

Mohlo by vás zajímat

Generální partner
Hlavní partneři