
Jak na zimu. V nových saunách se zahřejete v Třeboni
Do lázní Aurora v Třeboni se jezdí už od 70. let. K původnímu lázeňskému domu se postupně přidávají další provozy. Naposledy to byla dostavba zdravotnického zařízení s wellness centrem, pod kterou je podepsané pražské architektonické studio Plus One Architects.
EARCH.CZ , 16. 11. 2023
Lázně Aurora jsou v Třeboni v Lázeňské ulici. Jezdí se do nich třeba na slatinné zábaly, při kterých vás namažou tmavou bahnitou hmotou. Ta dokáže udržovat teplo a do těla pouští své léčivé látky, i proto se sem jezdí v případě problémů s pohybem.
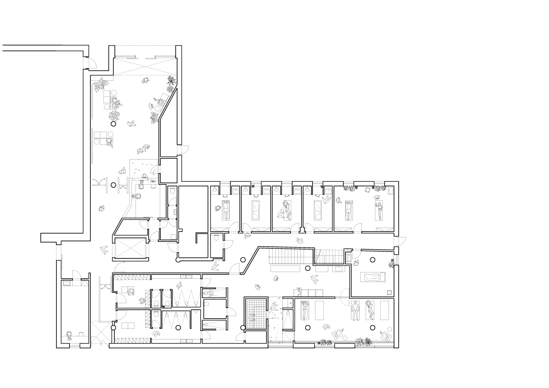
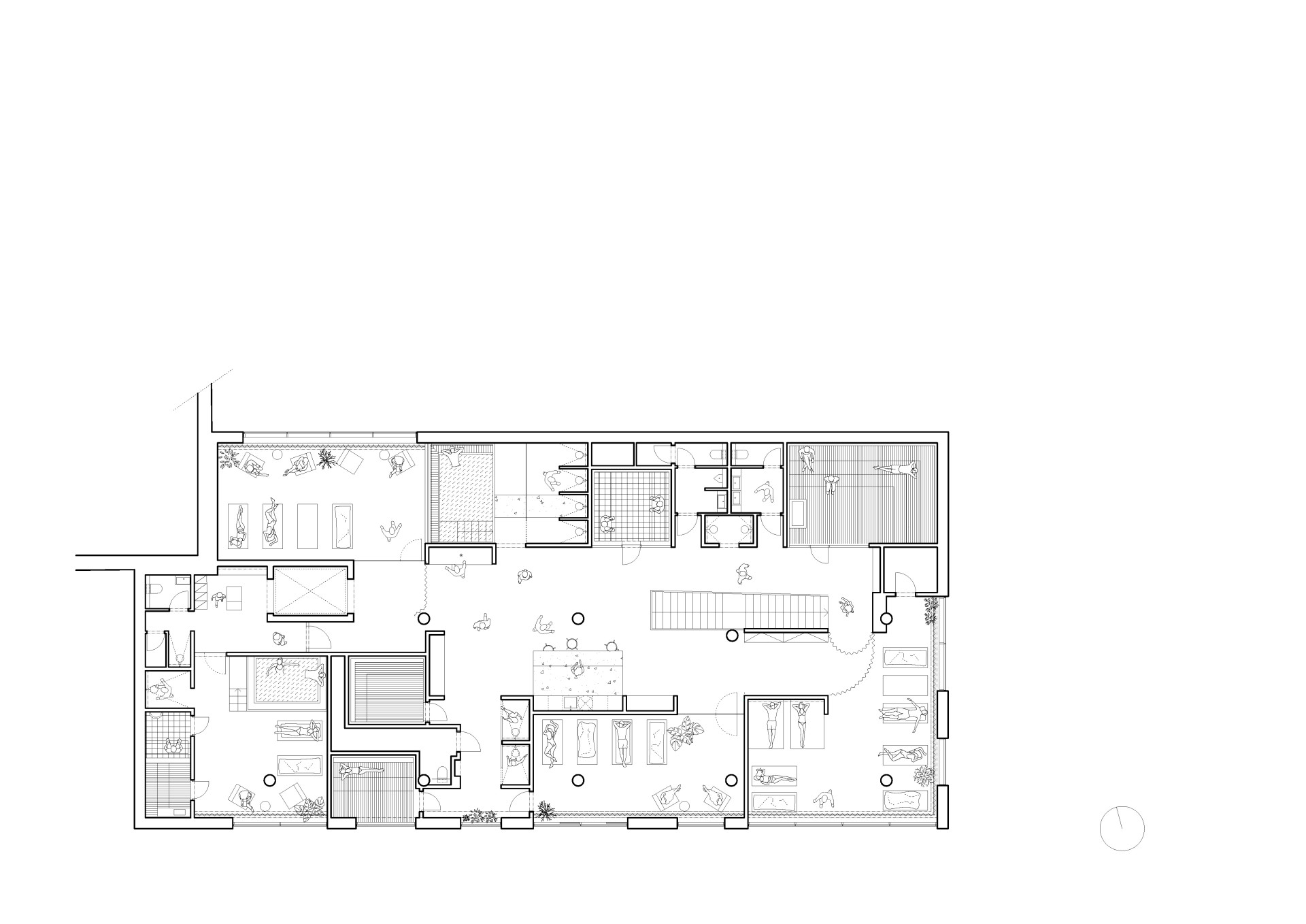
Teď tu přibylo nové wellness centrum. Vstoupíte skleněnými dveřmi. Za nimi je prostorná hala, ze které se dá projít i do starší lázeňské budovy. Následují šatny a pak už první wellnessové prostory. V přízemí se chodí hlavně na parní procedury, masáže a taky na Knaippův chodník – tvoří ho bazénky se studenou a teplou vodou, kterými se pozvolna prochází, na jejich dně jsou oblázky. V patře centra jsou pak sauny, odpočívárny a soukromé wellness prostory.
Více k tématu
Rozlehlý komplex lázní, pocházející ze 70. let, stojí v lesoparku při rybníce Svět. Postupně se rozrůstá, přibývají ubytovací kapacity, a od začátku dvacátých let se plánuje vodní a saunový svět, které fungují pod názvem wellness centrum. Do podoby saunové části teď promluvily architektky Petra Ciencialová a Kateřina Průchová studia Plus One Architects.

Autory původního lázeňského komplexu jsou architekti a architektky ze Státního ústavu pro projektování zdravotnické výstavby, takzvaného Zdravoprojektu. Podle Národního památkového ústavu jeho formy reagují na mezinárodní a bruselský styl. „Komplex lázní je tvořen jednotlivými budovami horizontálními (přízemními) a budovami vertikálními (několikapatrovými), jenž jsou funkčně, dispozičně, stavebně i architektonicky propojeny v jeden společný lázeňský celek,“ píše se v Památkovém katalogu. Ačkoliv Aurora památkovou ochranu nemá, je hodnocena jako své doby výjimečná stavba v jižních Čechách.
„Dostavba třeboňských lázní pro nás byla velkou výzvou, snahou navázat na kvality původního lázeňského areálu,“ říkají architektky z Plus One Architects. Udělaly tak světlým laděním interiérů, ve kterých použily béžové dlaždice, drcený kámen a dřevo. Dál se ve wellness centru objevuje třeba mramor, konkrétně na recepčním pultu, pítkách nebo umyvadlech.

Sloupy jsou zase z leštěného betonu. Právě mezi těmi jednotlivé wellnessové prostory proplouvají, jsou součástí nosné konstrukce stavby, se kterou se architektky musely vypořádat. K projektu totiž byly původně přizvány pouze pro interiérový design, ve výsledku ale zasáhly i do vnějšího obrazu wellness centra – třeba prosklenou vstupní částí, nebo okny, kterými se z odpočíváren v patře shlíží do lesoparku. „Postupně jsme přesvědčili investora o přínosných změnách týkajících se především otevření dispozice a celkového zjednodušení prostoru, které se z interiéru propsaly také na fasádu objektu,“ dodávají.
- Autoři: Petra Ciencialová, Kateřina Průchová
- Ateliér: Plus One Architects
- Země: Česká republika
- Projekt: 2021
- Realizace: 2022
- Užitná plocha: 1040 m2
- Náklady: 95 mil. CZK
- Město: Třeboň
- Adresa:: Lázeňská 1001, 379 01 Třeboň
- Fotograf: Radek Úlehla
- Podhledy: Desky Heradesign
- Obklad stěn, dveří, dveře, vestavěné prvky baru a recepce: Smrková biodeska
- Sloupy, stropy: Leštěný beton
- Laťové podhledy v odpočívárnách: Dub
- Židle: Todus
- Sedačky, křesla, stolky: TON
- Maloformátové obklady: Archtiles
- Betonové desky pod umyvadly, nádoby na led pod ledovači: Burning vibe
- Pítko, bar, recepce, lokální podlahy: RCM mramor
- Velkoformátové obrazy: Kateřina Kotyk
- Interiérové omítky: STO