Wellness svépomocí. Mladý architekt navrhl pro svého otce saunu s opalovanou fasádou
Mladý architekt Šimon Semerák navrhl pro svého otce jednoduchou zahradní saunu, která šetří životní prostředí i peněženku majitele. Stavba s pláštěm z opalovaných fošen stojí na starých pneumatikách.
Kristýna Korčáková , 16. 8. 2022
Jedním z preventivních opatření proti šíření koronaviru bylo v uplynulých dvou letech uzavírání veřejných wellness center a saun. Rodina Šimona Semeráka si však mohla užívat saunování i v této době – mladý architekt totiž na jejich zahradě zrealizoval malou privátní saunu.
„Saunu jsem dělal pro svého otce. Byla to přirozená reakce na uzavření všech veřejných wellness kvůli coronaviru. Malý objekt stojící na zahradě, který svým vzhledem připomíná spíše kůlnu na nářadí o své skutečné funkci nenápadně napovídá drobným komínem a kruhovým oknem,“ přibližuje projekt architekt Šimon Semerák.
Více k tématu
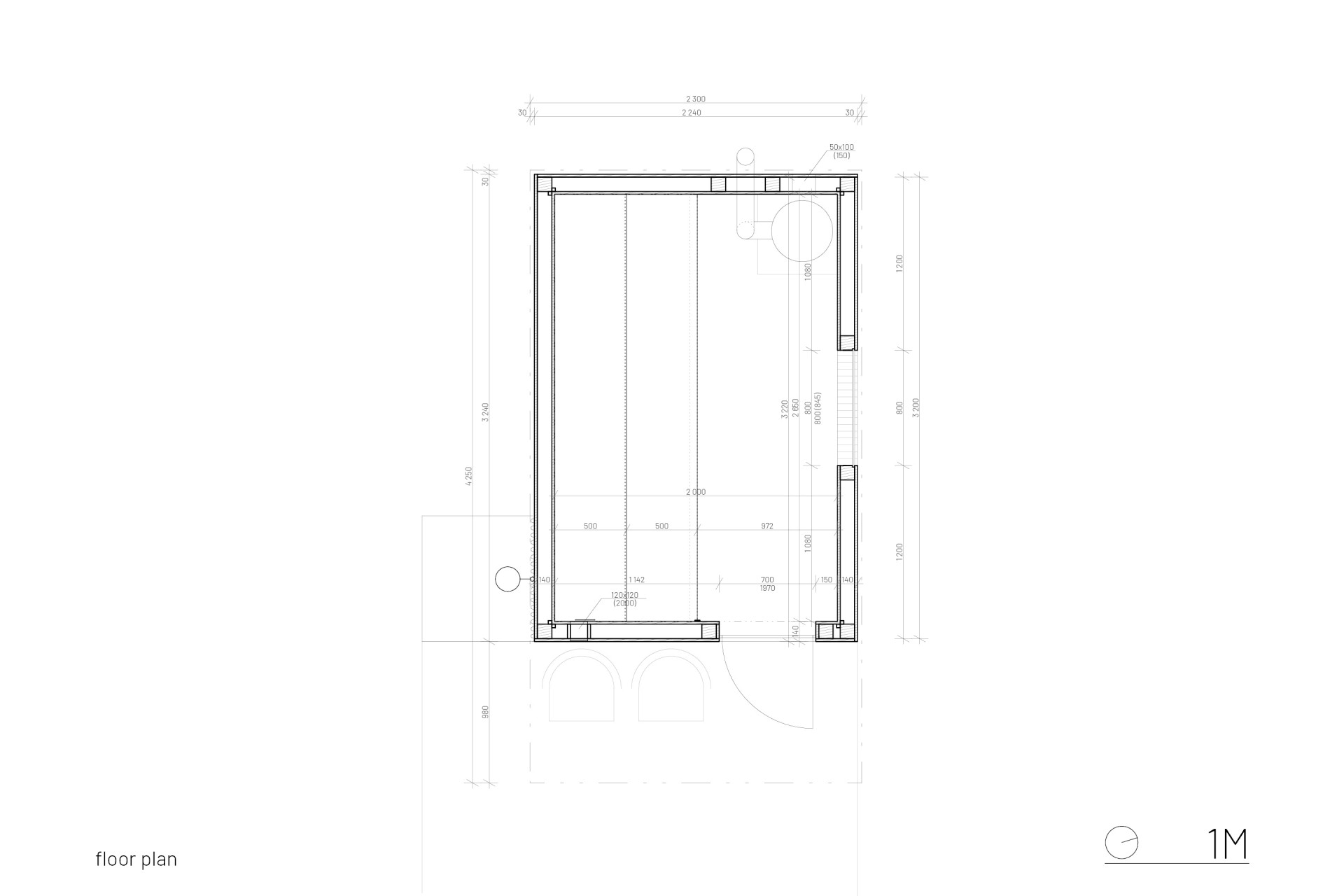
Dřevostavba o půdorysu 2x3 metry stojí na základech ze starých pneumatik vymlácených štěrkem, které slouží jako stabilní a zároveň vodopropustné patky. Vnější plášť ze smrkových opálených fošen kryje dřevěnou konstrukci, kterou zastřešuje vlnitý plech. Ten výrazně přesahuje fasádu nad vchodem a chrání ji tak v místě venkovní sprchy připevněné na jedné ze stran sauny. Zvenku saunu osvětluje zapuštěná žárovka, trefíte tedy i potmě.
Na vnitřní obložení byl použit severský smrk, který je sice dražší než smrk český, ale díky vyšší odolnosti vyžaduje méně dodatečné péče v podobě impregnačních nátěrů a jiných laků. Severský smrk mívá navíc méně suků než český, což je rozhodně vítané při výrobě palubek, další výhodou je pak nízké množství obsažené pryskyřice.

Sauna je vytápěna kamny o výkonu 16kW a objem o zhruba dvanácti metrech krychlových je tím pádem vytopen na 90°C za přibližně půl hodiny. Dvě třímetrové dřevěné lavice v různých úrovních vybízejí k relaxaci pro 4 až 6 lidí. Interiér je osvětlen LED páskou, jež se diskrétně vine pod spodní lavicí. Komín je odnímatelný, takže se dá snadno čistit.

Kromě snadné realizace objektu myslel architekt také na ohleduplnost k místu a šetření stavebních nákladů. „Při odstranění sauny se z pneumatik vysype štěrk a vrátí se na skládku, nezůstane žádná betonová konstrukce,“ podotýká architekt. Obkladové smrkové fošny ze stavebního řeziva nebyly vyjma opálení nijak upravené, takže je lze rovněž ekologicky zlikvidovat.

- Ateliér: TAMTI architekti
- Autoři: Šimon Semerák
- Země: Česká republika
- Město: Trutnov
- Projekt: 2020
- Realizace: 2020
- Zastavěná plocha: 7,5 m²
- Užitná plocha: 6 m²