Architektura
/
rodinné domy
Na místě tenisových kurtů vznikl dům s ateliérem architektů Menšík Skrušný
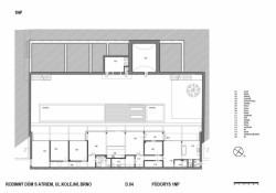
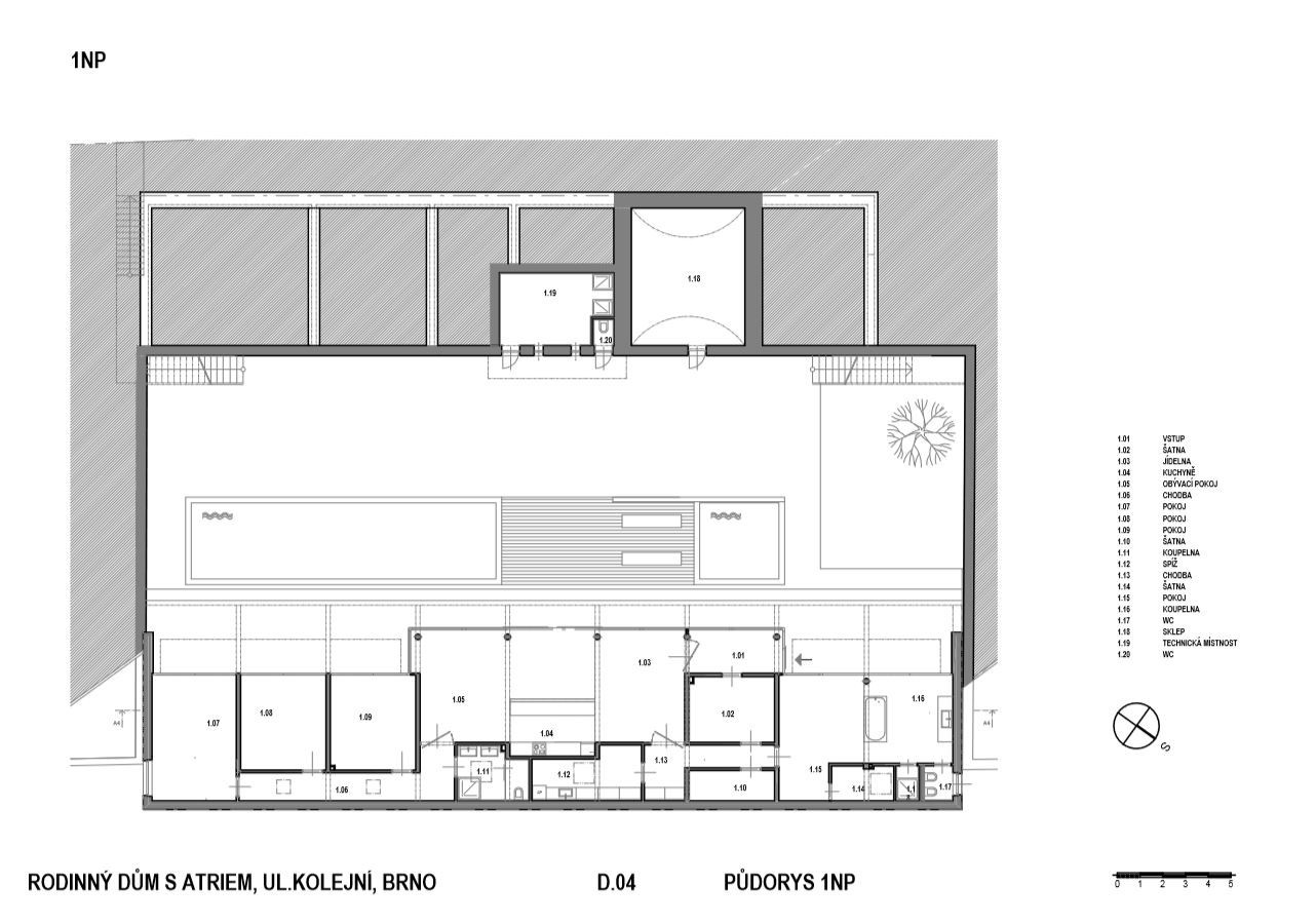
Do okrajové části Brna umístil Ateliér Menšík Skrušný svůj projekt rodinné vily s vlastním ateliérem. Dlouhá parcela bývalého tenisového kurtu předurčila podlouhlý a úzký tvar domu, který se maximálně otevírá do vzniklého prostoru atria. Architekti dokázali využít nepříznivé zapuštění pozemku pod úroveň okolního terénu a vytvořili rodinný dům s intimním a klidným atriem chráněným od svého okolí.
Ateliér Menšík Skrušný , 17. 10. 2018
- Autoři: Petr Skrušný
- Ateliér: Ateliér Menšík Skrušný
- Země: Česká republika
- Realizace: 2015
- Město: Brno
- Datum projektu: 2013
- Realizace: 2015