Rodinný dům v Unhošti
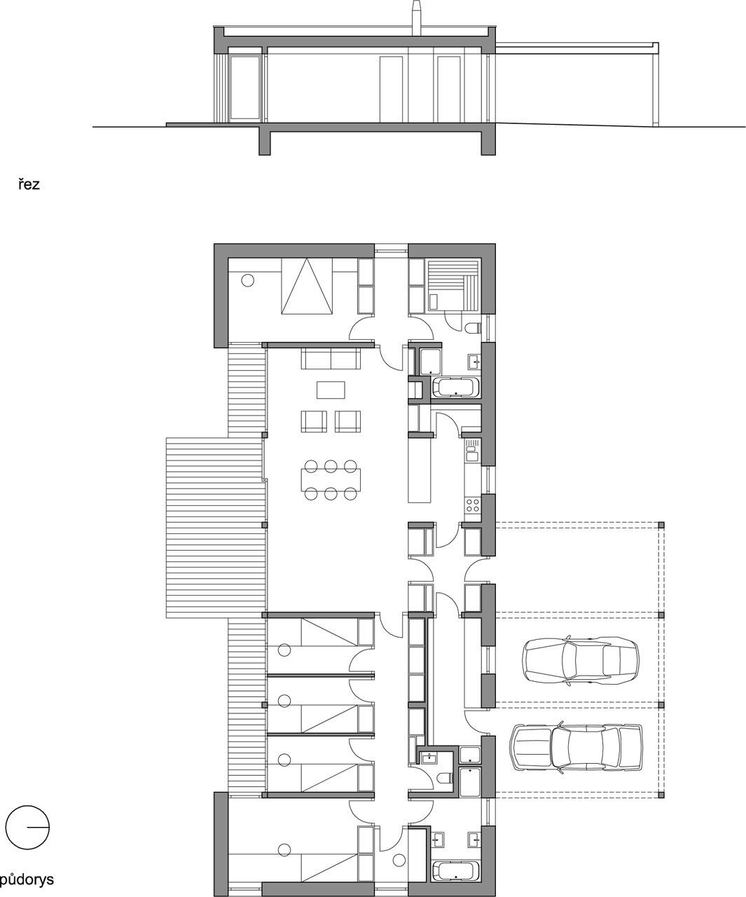
Rodinný dům v Unhošti nabízí energeticky úsporné a komfortní bydlení. Jednopodlažní bezbariérové řešení bylo vstupním požadavkem investora. Jednoduchý kvádrovitý objem domu je zvýrazněn zapuštěnou terasou na jižní straně. Tento prvek nejenže nabízí kryté posezení v zahradě, ale současně zvyšuje tepelnou pohodu za teplých letních měsíců. V zimních měsících pak mají obytné místnosti díky své jižní orientaci pozitivní tepelné zisky. Ze všech obytných místností je přímý přístup na zahradu přes francouzská okna.

Stěny a strop z přiznaného pohledového betonu a betonových tvárnic v interiéru nabízí skvělé neutrální pozadí pro sytě žlutý vestavný nábytek a kuchyňský kout. Venkovní plášť tvoří na černo mořený dřevěný obklad.
Projekt vznikl s využitím ARCHICADu.
- Ateliér: Stempel Tesař architekti
- Autoři: Ján Stempel, Jan Jakub Tesař
- Země: Česká republika
- Město: Unhošť
- PSČ: 273 51
- Datum projektu: 2011
- Realizace: 2014
- Užitná plocha: 170.00m2
- Zastavěná plocha: 230.00m2
- Plocha pozemku: 789.00m2
Mohlo by vás zajímat