Příjemné bydlení ve všech aspektech
Příjemné bydlení ve všech aspektech Foto: Tomáš Manina
Architektura / rodinné domy

Nejlepší slovenský rodinný dům je v Bratislavě. Stojí na místě starší vilky a zahradního domku

Domek zvaný Na rade získal ocenění za nejlepší rodinný dům v rámci slovenské ceny CEZAAR. Hlavně za výrazné schodiště a „promyšlené a příjemné bydlení ve všech aspektech,“ jak se vyjádřila porota.

EARCH.CZ , 20. 10. 2023

Mezinárodní porota ceny CEZAAR vybírala letos z 95 staveb slovenských architektů, které byly dokončené v letech 2021–2022. Rodinných domů bylo mezi přihlášenými nejvíc, a v této obsazené kategorii zvítězili architekti a architektky ze studia Noiz (Samuel Zeman, Lukáš Kordík, Andrej Šabo, Štefan Polakovič) s domem, který stojí na Starém městě v Bratislavě.

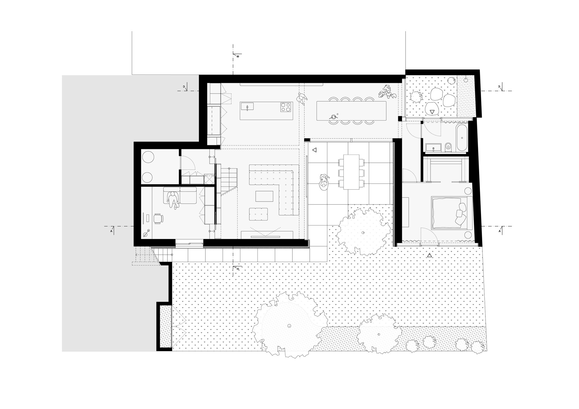
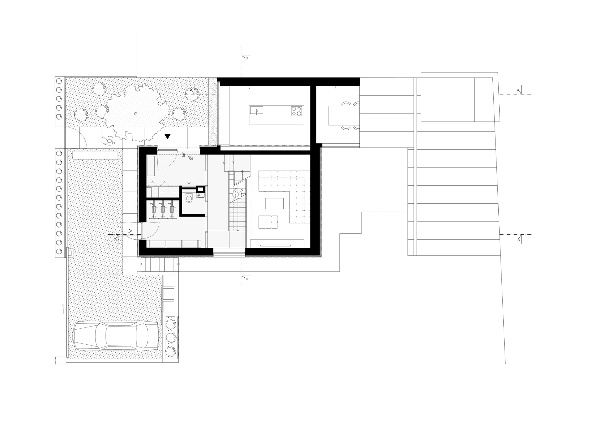
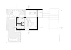
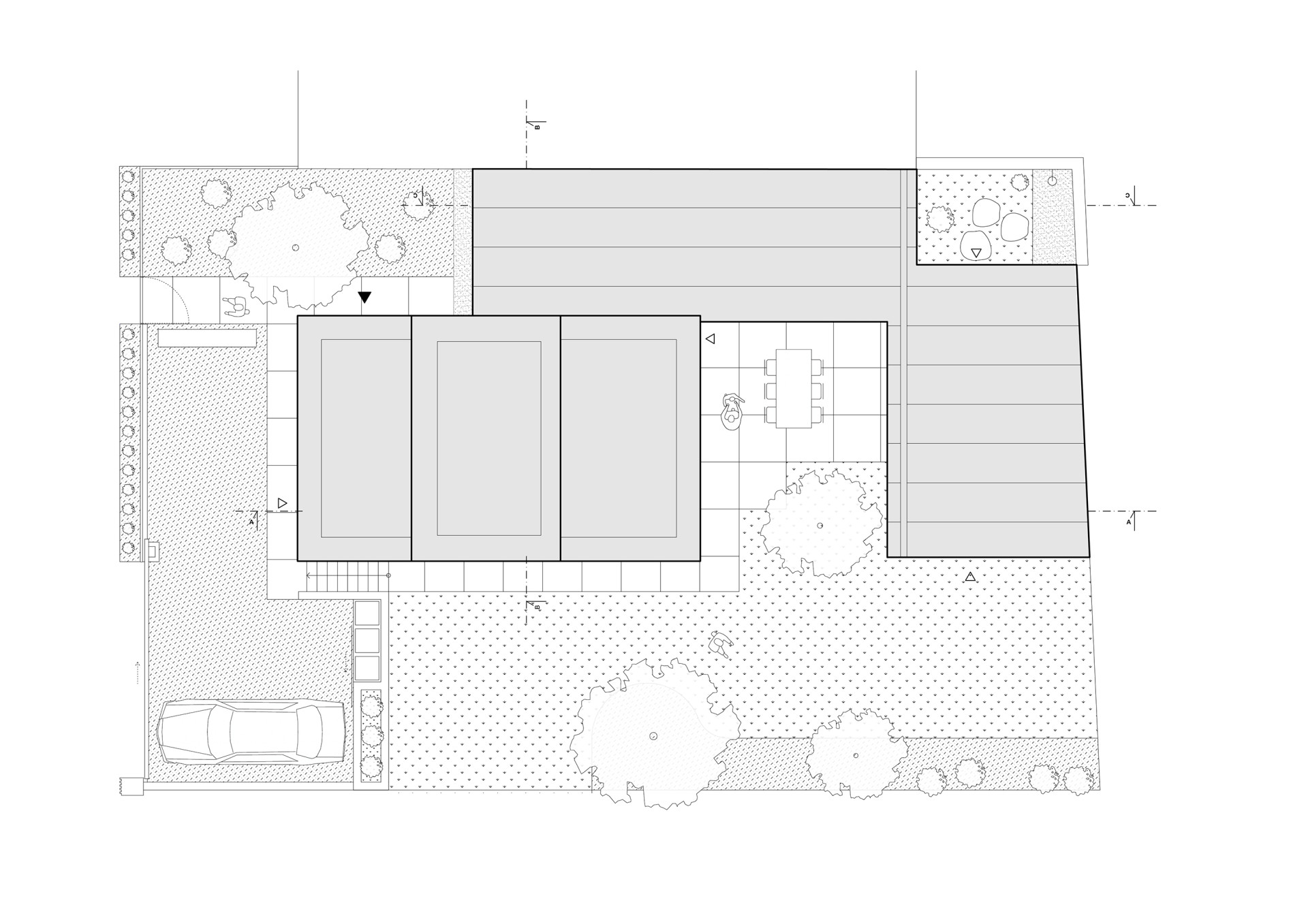
V okolí tamního Horského parku jsou rodinné domky na menších pozemcích. Jeden z nich zakoupila čtyřčlenná rodina. Stály na něm dva objekty, v horní části jednopodlažní dům, v dolní části zahradní domek v zanedbané zahradě.

Původní plán byl stávající budovy rekonstruovat, postupně se ale ukázalo, že tohle řešení není průchozí: „Po počáteční polemice a přehodnocení faktů, po analýze existujících nosných konstrukcí a legislativních možností, jsme se rozhodli zvolit cestu novostavby,“ popisují to architekti ze studia Noiz.

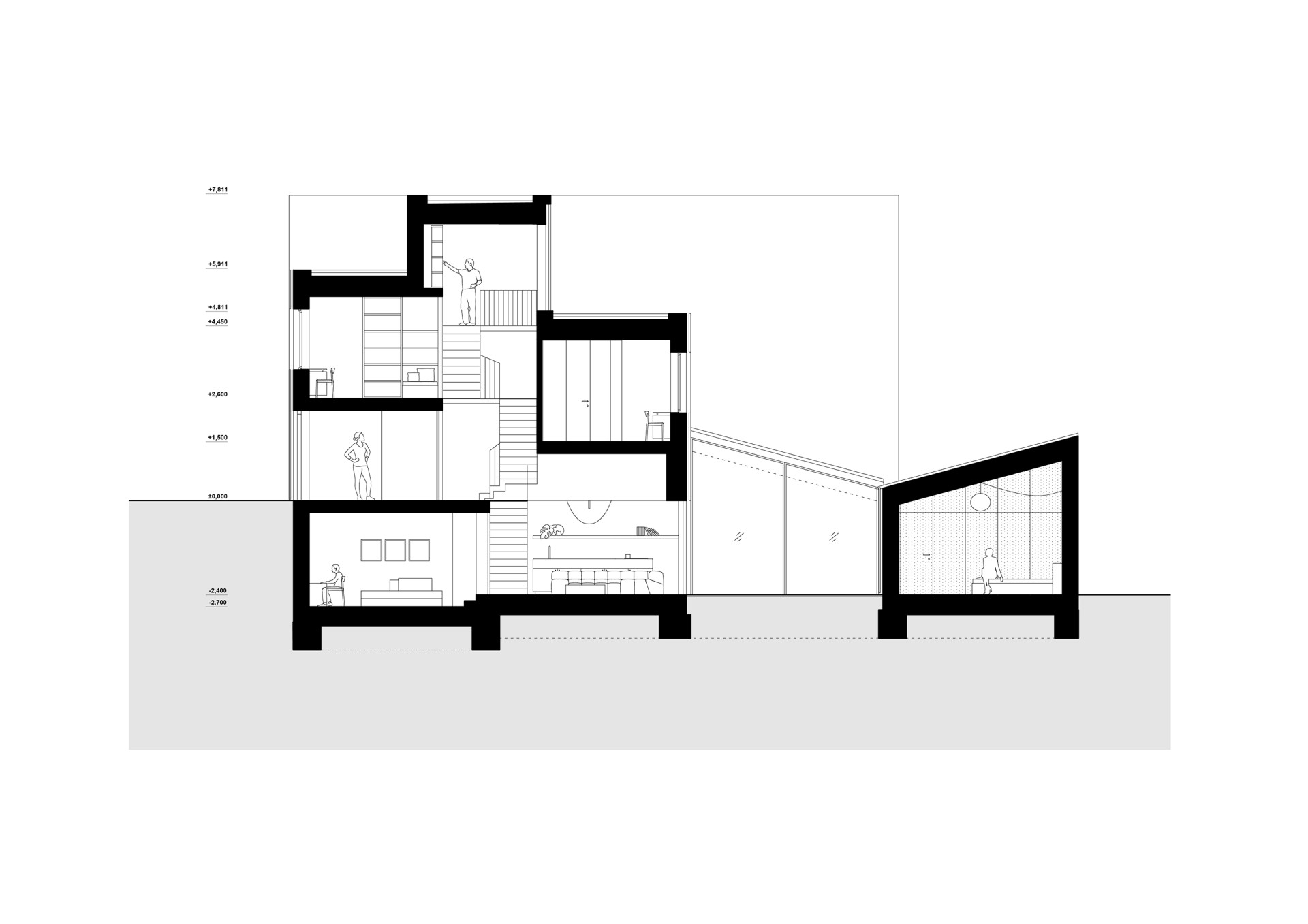
Architekti zároveň chtěli a museli navázat na stávající řešení – dle regulativů nebylo možné přesáhnout již zastavěné půdorysy. Bylo přitom potřeba získat co nejvíc podlahové plochy a propojit různé výškové úrovně terénu. A tomu všemu dát formálně ucelený, funkční tvar jednoho rodinného domu.

Výsledný dům je tedy skládačkou z několika objemů v několika výškových úrovních. Ve výšce ulice je vchod a technická místnost, po schodech se sejde do obývacího pokoje. Ten se otvírá přes prosklení do zahrady a lze odsud jít také do ložnice na místě bývalého zahradního domku. Nahoru se pokračuje do dětských pokojů a na terasu. Sytě oranžové schodiště je hlavní komunikací domu a zároveň tak trochu sochou, která se tu vznáší v prostoru.

Výsledkem je důmyslný bratislavský „raumplan“. Hra s výškovými úrovněmi zároveň umožnila, aby se malý pozemek dokonale využil, ale nezavalila ho předimenzovaná hmota. Porota ceny CEZAAR to nazvala „kultivovaný a důsledně zpracovaný projekt“ a udělila mu prvenství.

  • Autoři: Samuel Zeman, Andrej Šabo, Lukáš Kordík, Števo Polakovič
  • Ateliér: NOIZ architekti
  • Země: Slovensko
  • Realizace: 2022
  • Město: Bratislava
  • Zastavěná plocha: 140 m²
  • Užitná plocha: 190 m²
  • Plocha pozemku: 395 m²
  • Realizace: 2022

Mohlo by vás zajímat

Generální partner
Hlavní partneři