V Bratislavě vyrostl dům z cihel a skla, který dává své materiálové řešení hrdě na odiv
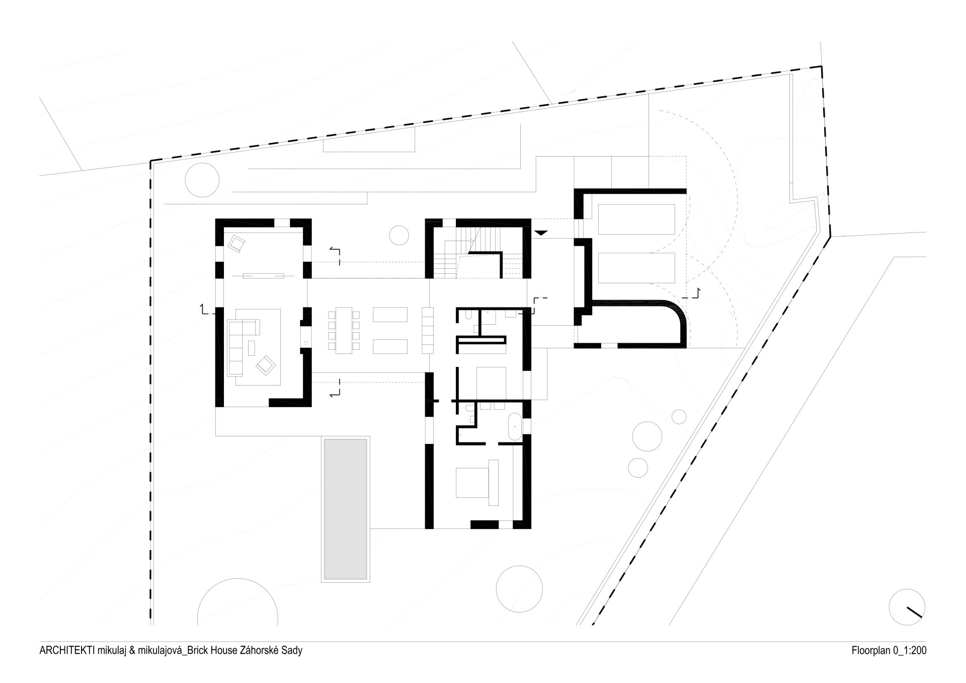
Slovenské studio ARCHITEKTI mikulaj & mikulajova pojalo rodinný dům na severním okraji Bratislavy jako soustavu pavilonů. Tři cihlové kvádry spojují prosklené krčky, skrze které se otevírají výhledy do zahrady.
Adéla Vaculíková , 14. 4. 2023
Rodinný dům z cihel a skla stojí v oblasti Záhorské sady, kde v poslední době vyrostlo množství nové zástavby. Architekti a architektky proto stavbě dali takovou strukturu, která jeho obyvatelům zaručuje dostatečnou míru soukromí.
„Orientace pozemku však byla složitá a v jeho sousedství rychle vyrůstaly nové rodinné domy. A tak vznikla myšlenka tří masivních domů, vzájemně pospojovaných lehkými, průhlednými prostory. Tak se slunce a denní světlo dostane do všech místností a domácí budou mít pocit soukromí, i když dům stojí v zastavěném území,“ vysvětlují architekti.
Více k tématu
Každý z pavilonů dostal svou vlastní funkci. V největším, středovém, se nacházejí ložnice a dětské pokoje, jde o klidovou zónu domu. V sousedním kvádru je pak obývací pokoj – prostor pro všechny. S největším pavilonem je spojen proskleným úsekem, který zde přebírá roli celé jedné místnosti. Obsahuje kuchyň s jídelnou s výhledem na obě strany pozemku. Poslední z pavilonů pak plní úlohu garáže a skladu pro zahradní náčiní.
„Pozice oken v plných stěnách jsou dobře promyšlené, umísťujeme je sem jako obrazy. Prosklené prostory jsou naopak lehké, otevřené konstrukce s železobetonovými trámovými stropy, které plynule přecházejí do exteriéru,“ doplňují architekti a architektky ke svému konceptu.

Dominantním materiálem se v realizaci stala cihla. Postavit cihlový dům si přáli přímo investoři. Architekti zase oceňují tradičnost tohoto materiálu a také možnost jeho variabilního využití. „Cihly na fasádě, cihly na dlažbě teras, cihly odrážející se v zrcadle, cihly na parapetech i v interiéru domu. Cihly do oblouku, cihly jako poloprůhledný závěs ve stavebních otvorech. Cihla nám dovoluje experimentovat a využívat ji mnoha způsoby,“ popisují.

Studio ARCHITEKTI mikulaj & mikulajova zároveň zdůrazňuje, že se autoři realizace snažili myslet na její šetrnost k životnímu prostředí. Do domu proto zakomponovali stropní chlazení, tepelné čerpadlo, rekuperaci vzduchu a fotovoltaiku, pro zavlažování zahrady a zelených střech se pak využívá voda ze studny.
- Ateliér: ARCHITEKTI mikulaj & mikulajova, ARCHITEKTI mikulaj & mikulajova
- Autoři: Jana Machalová, Juraj Mikulaj, Andrea Ambrovičová Mikulajová, Jana Machalová
- Spolupráce: Tomáš Chovanec, Tomáš Chovanec
- Země: Slovensko
- Město: Záhorské Sady
- Užitná plocha: 358 m²