
Přestavbu vysloužilé poválečné stavby v Ostravě-Porubě pojali architekti jako reakci na okolní pestrobarevné fasády
Utilitární stavba z období socialismu se proměnila k nepoznání. Díky vybourání části stropu, odhalením železobetonové konstrukce a vsazení velkého pobytového schodiště se celý prostor nadechl a slouží nově jako reprezentativní kanceláře.
EARCH.CZ , 30. 12. 2022
Původní nárožní stavba, která dříve sloužila jako obchodní dům s hospodou, se nachází na hlavní dopravní tepně Ostravy-Poruby po boku velkých bytových domů. Jedná se o poměrně utilitární dvoupodlažní objekt se železobetonovou konstrukcí, jejíž vnitřní prostory změnily nové architektonické vstupy k nepoznání.
Více k tématu
„Cílem projektu bylo vytvořit nové kancelářské prostory IT společnosti Raynet, ve kterých bude vládnout hravost a svoboda. Kombinací velkorysých prostor, čistoty nových prvků a hrubostí původní konstrukce vznikly víceúčelové praktické prostory rozkládající se na dvou patrech stávající budovy,“ popisuje architekt Petr Kundrát ze studia Ark.
První fází přestavby bylo očistění objektu od stavebních nánosů, které se tu během dekád nakupily. Rastr oken zůstal víceméně zachován, fasády získaly sjednocující světle šedou omítku, takže stavba získala při pohledu zvenčí čistý minimalistický výraz. Podle autorů návrhu se zvolený přístup stává „novou paralelou k běžnému barevnému řešení zateplení okolních budov“.

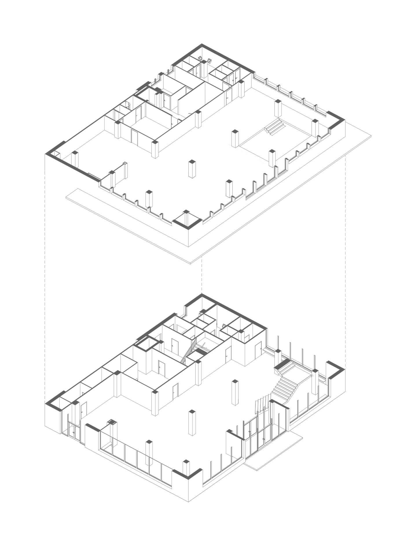
Na každého, kdo do nového firemního sídla zavítá, čeká prostorové překvapení. Po průchodu vstupní tmavou a nízkou chodbou se totiž ocitne v otevřeném prostoru recepce, jelikož přízemí bylo výškově částečně propojeno s horním podlažím. Přízemí zaujímají dvě open-office kanceláře (uzavřená pro zákaznickou péči a otevřená klidnější pro vývojáře), jednoznačně mu však dominuje prostorné pobytové schodiště, které může sloužit také jako hlediště při pořádání různých akcí.
Patro je zasvěceno hlavně relaxaci a neformálnímu setkávání zaměstnanců – najdeme v něm masážní studio, posilovnu, fotoateliér, velkou kuchyň s dubovým stolem a dvě zasedací místnosti. Počítá se také se střešní pobytovou terasou.

„Provozní řešení budovy bylo navrženo, s ohledem na možnou dostavbu dalších pater budovy tak, aby mohlo dojít k oddělení provozu kanceláře Raynet od samotných vstupních prostor objektu, s možným umístěním výtahu a dalších nutných funkcí, které by případná nástavba vyžadovala,“ říká architekt.
- Ateliér: studioArk s.r.o.
- Spolupráce: Gabriela Knýblová, David Sýkora
- Země: Česká republika
- Realizace: 2021
- Projekt: 2020
- Užitná plocha: 812 m²
- Zastavěná plocha: 462 m²
- Obestavěný prostor: 3800 m³
- Město: Ostrava - Poruba
- Fotograf: Alex Shoots Buildings