Působivá rekonstrukce odlehčila socialisticko-realistický kulturní dům v Ostravě-Porubě
Dům kultury Poklad v Ostravě-Porubě prošel kompletní rekonstrukcí pod vedením architektů ze studia Platforma architekti, kteří celoprosklenými rizality výrazně proměnili výraz budovy z přelomu 50. a 60. let.
Adéla Vaculíková , 3. 11. 2022
Tvář Ostravy−Poruby
Když za socialistickým realismem, tak do Ostravy-Poruby. Původně drobná vesnice Poruba ležící jen několik kilometrů severozápadně od Ostravy se v 50. letech stala jedním z mála míst u nás, které okusilo velkolepé budovatelské vize po vzoru Sovětského svazu v plné míře. Socialistický realismus, oficiální umělecký směr ustanovený roku 1932 Ústředním výborem Komunistické strany Sovětského svazu, musely postupně převzít všechny komunistické země. Po únoru 1948 tedy i Československá republika.
Více k tématu
Monumenty s lidovou tváří
Takzvanému I. obvodu Poruby, budovanému v letech 1952−1961, vévodí obytná zástavba, která svým razantním vpádem mezi tradiční vesnické domky a nedaleké modernistické sídliště nezapře svůj podmaňující charakter. Řádkovou zástavbu z meziválečné doby válcují polouzavřené „superbloky“ zděných bytových domů okrášlených typizovanými klasicizujícími římsami a věžičkami tvarovanými podle vzorů „české renesance“.
Monumentalita přirozeně skrytá v klasicizujícím stylu zde vyznívá více než megalomansky. Může za to zejména místní urbanistická struktura, která nechává vyznít zeleň skrytou v obytných blocích do přímých bulvárů − hlavních komunikačních tepen nově budovaného města.

Poklad strohých forem
Jednou takovou tepnou je i dnešní Alšovo náměstí, jehož jižnímu čelu dominuje Dům kultury Poklad. Stavba z přelomu 50. a 60. let se oproti okolním bytovým domům liší již výrazně zjednodušenými a strožejšími formami, které opouští patos s důrazem na lidovost.
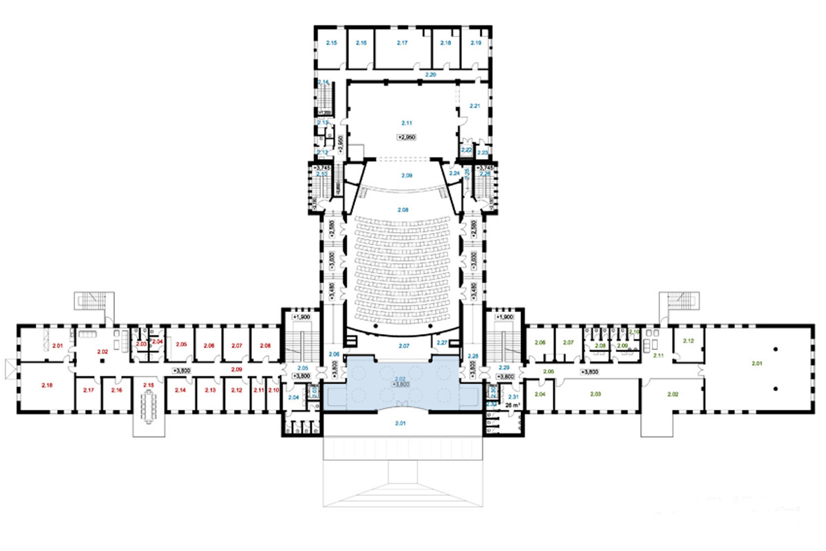
Stavba na půdoryse písmene T složená z krabicových objemů prošla v posledním desetiletí zevrubnou rekonstrukcí pod hlavičkou brněnského studia Platforma architekti. Změny potkaly zejména průčelí kulturního domu, hmotné stavbě nově přidávají na lehkosti prosklené rizality z hliníkových rámů Aluprof zavěšené na bočních křídlech. Architekti zvolili skrytá okna integrovaná ve fasádě, která tak nijak nenarušují rastr prosklené plochy jako celku. Zcela transparentní je i vstupní vestibul, který se organicky přelívá v prosvětlené foyer.

Společensko-kulturní centrum se vším všudy
Kompletní modernizací prošel i interiér. Architekti vsadili na čistý design laděný do světlých barev doplněný o černé prvky. Zrekonstruován byl divadelní sál včetně původního dynamicky tvarovaného akustického podhledu, který společně se skleněnými reliéfy Stanislava Libenského a Jaroslavy Brychtové na bočních schodištích odkazuje k úspěchům československé výpravy na Expu 58 v Bruselu.

Vedle velkého divadelního sálu se v kulturním domě nachází i komornější malý sál a kinosál nebo prostorný společenský sál v prvním patře.
Díky dalším multifunkčním učebnám, zkušebnímu sálu nebo restauraci je Dům kultury Poklad opět skutečně všestranným společensko-kulturním centrem, které Ostrava-Poruba dlouho postrádala.

- Ateliér: PLATFORMA ARCHITEKTI
- Autoři: David Průša, Jana Stavinohová
- Město: Ostrava-Poruba
- Ulice, číslo: Matěje Kopeckého 675/21
- Projekt: 2009
- Realizace: 2021
- Užitná plocha: 5780 m²
- Zastavěná plocha: 2252 m²
- Investor: Statutární město Ostrava