
Architektura
/
interiér
Rekonstrukce domu v dělnické kolonii vytvořila vnitřní hnízdo
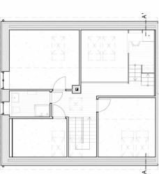
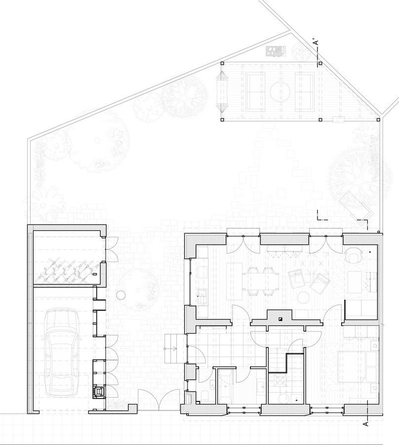
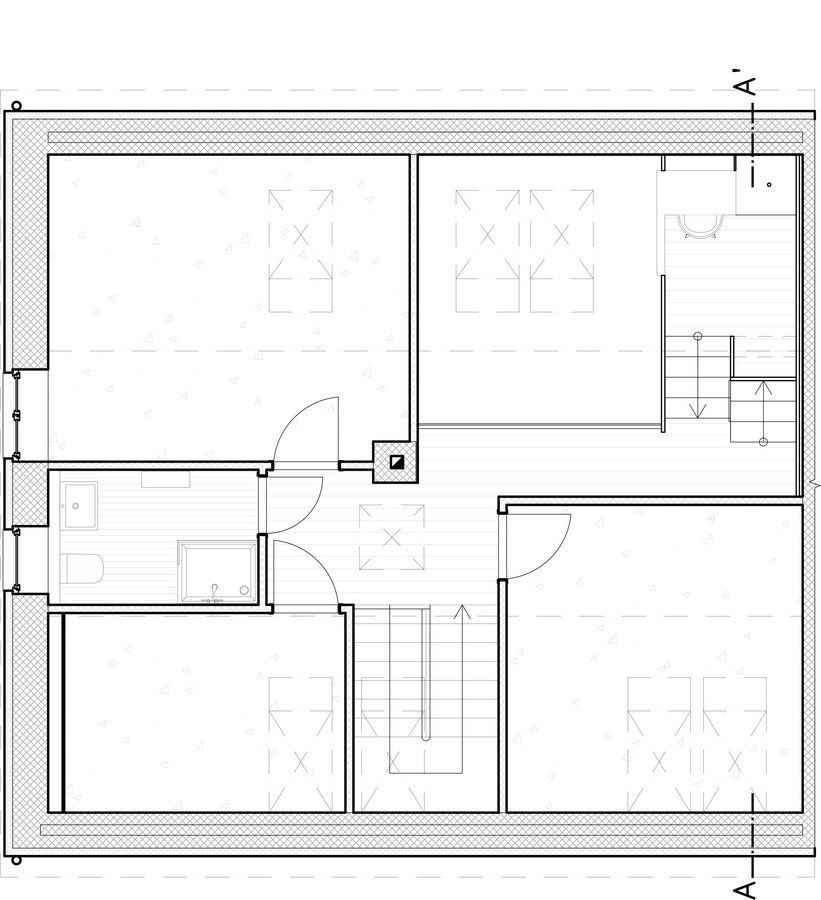
Rekonstrukce domu v dělnické kolonii z počátku 20. století pro bratra jednoho z architektů byla pro autory potěšením. Bourání bylo sice zásadní, zmizely všechny vnitřní konstrukce, charakter domu se však výrazně nezměnil. Citový vztah k realizaci a naprostá důvěra mezi architektem a klientem byla pro výsledek klíčová.
majo architekti , 28. 11. 2017
Více k tématu
- Ateliér: majo architekti
- Země: Česká republika
- Město: Kladno 4 - Rozdělov
- Datum projektu: 2012
- Realizace: 2014
- Užitná plocha: 129.00m2
- Zastavěná plocha: 93.00m2
- Materiál: dřevo