
Ložnice ve věži. Rekonstrukce řadového domku u Brna
V Kohoutovicích u Brna je ulice řadových domů. Krajní byl však zbořen, takže řada končila slepou zdí. To se teď změnilo. Poslední dům dostal nárožní věž, v níž je ložnice.
Adéla Vaculíková , 17. 7. 2024
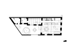
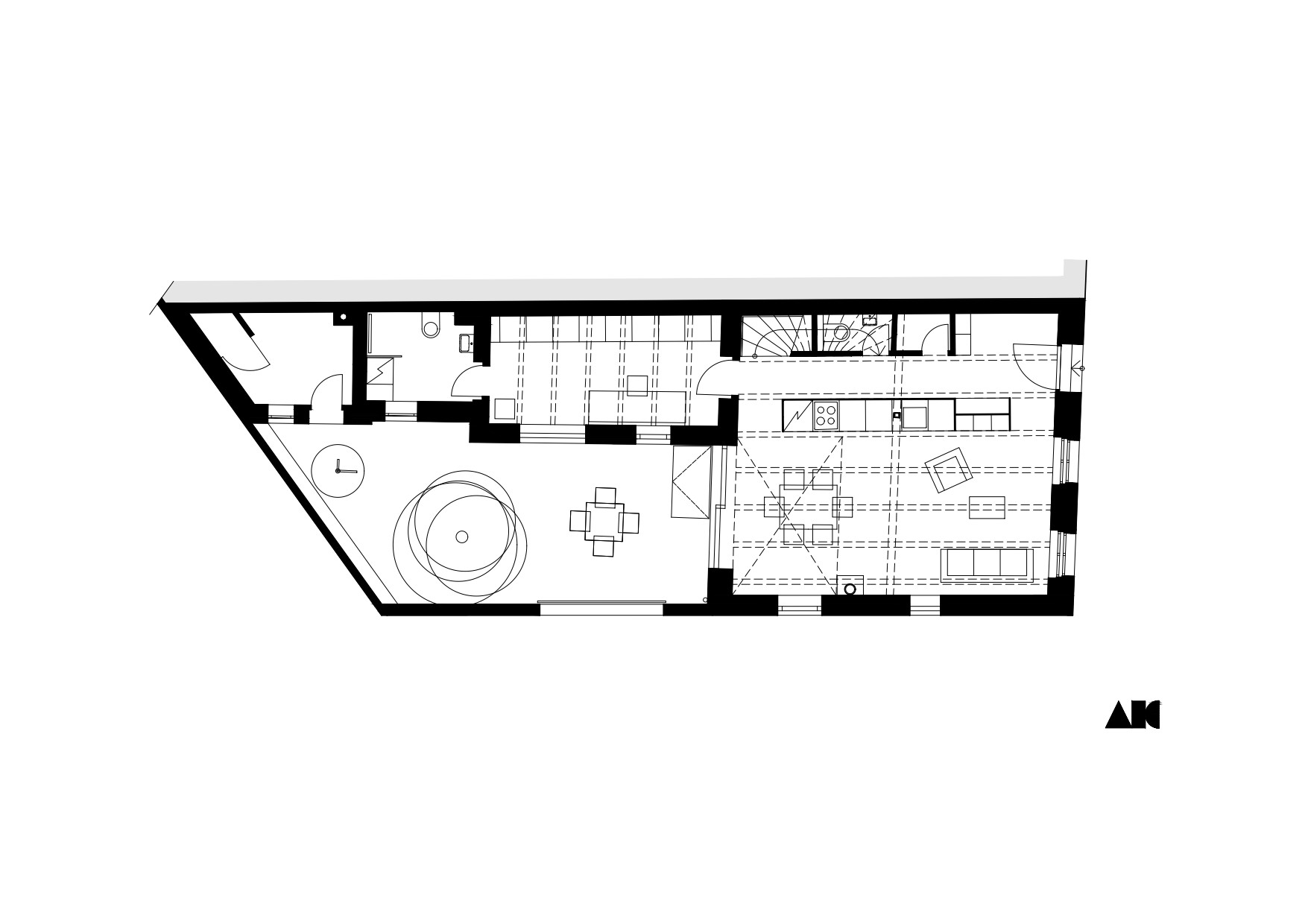
Původně to byl řadový dům, poznat je to z jeho dlouhé boční stěny, která se odhalila po zbourání souseda. Z domu, ze kterého měla být do ulice vidět jen jeho čelní fasáda, se tím stal nárožní objekt. Rekonstrukce od Ateliéru Kopecký mu měla pomoci této role dostát.
„Stavební program jsme na sebe naskládali tak, aby ulice získala chybějící nároží,“ říká k tomu architekt Jan Kopecký. Původně slepá stěna dostala tři malá okna a průřez do dvorku, který je jinak celý obehnaný stěnami. Za řadovými domy v městské části Brno-Kohoutovice totiž prochází silnice, po které původně vedla trasa prvního závodního Masarykova okruhu.

Dvorek je středně velký a zastíněný, zároveň je do něj vidět pouze z interiéru domu, je tedy úplně soukromý. Z pravé strany podél něj vede úsporné dvorní křídlo s pracovnou a zelenou střechou nad ní. Obývací pokoj s kuchyní se sem otevírá prosklenou stěnou. Světla je v tomto prostoru opravdu hodně. Další sem proudí okny z průčelí domu a pak zmiňovanými okénky na původně štítové stěně.
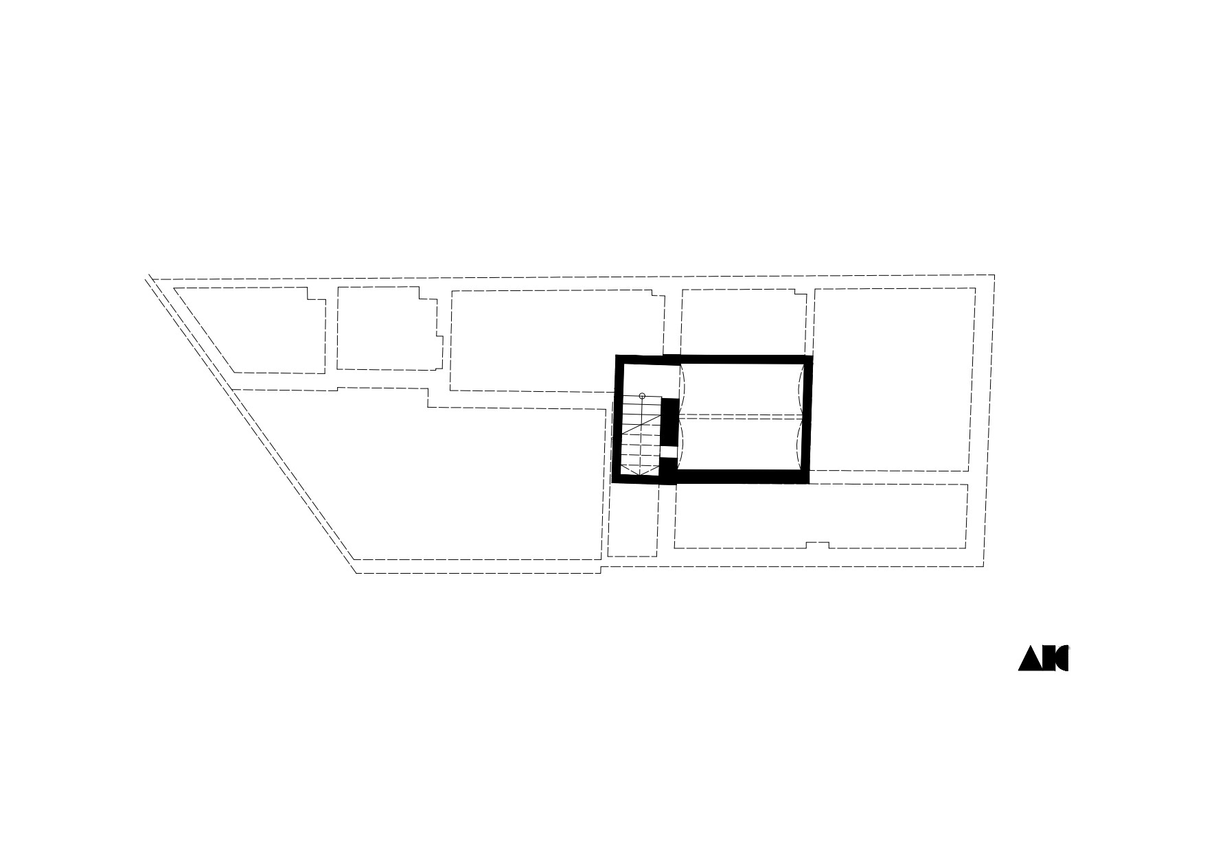
Dům je oproti svému původnímu stavu vyšší, dostal totiž nástavbu, ve které je ložnice, dětský pokoj a koupelna. Architekti střešní objem navrhli členitý – nejvyšší je při levém nároží. Právě v této části se uvnitř nachází převýšená ložnice s mezipatrem. Původně byla určená rodičům. „Okamžitě po nastěhování ale byla zabrána dětmi,“ dodává Jan Kopecký.

Architekti o nejvyšší části nástavby mluví jako o „nárožním vikýři“, dává totiž řadě vedle sebe postavených domů zakončení – definuje nároží ulice, o které ubouráním posledního domu přišla. Dominantou je na něm velké okno. Dům se nástavbou také výškově vyrovnal svým původně o patro vyšším sousedům.
Nové místnosti v nástavbě současně nezabírají stejně velkou plochu jako ty v přízemí. Pozorovat to lze zevnitř, přímo z obývacího pokoje, který se díky tomu mohl v zadní části otevřít až do krovu.
Zařízení interiérů je materiálově střídmé. Podlahy jsou z leštěného betonu, stěny bíle omítnuté a nábytek převážně ze dřeva. Pokoje vybavují jak staré kousky, tak nové, některé vyrobené na míru. Tím hlavním je kuchyně s knihovnou, které společně formují prostorový blok. Ten není přisazený ke stěně, ale funguje jako dělicí příčka, za kterou se nachází vstupní chodba.
Více k tématu
Architekti tímto krokem celý prostor přízemí zcelily, není už rozdělený na jednotlivé místnosti, jako tomu bylo před rekonstrukcí. „Původně byl vchod do domu v místě nynějšího okna u rohu domu, tedy na opačné straně. Tím, že jsme dispozici ‚ozrcadlili‘, se dvorek mohl stát prodloužením obývacího prostoru,“ dodává ještě k dispozičním změnám Jan Kopecký. Rovnou z gauče je tak možné vidět jak do soukromého dvorku tak na vstupní dveře, které dostaly barvu podle korálkového náramku, jenž se našel při bourání pod původní dřevěnou podlahou. „Aby se zachovala kontinuita místa,“ říkají architekti.
- Autoři: Jan Kopecký
- Ateliér: Ateliér Kopecký
- Spolupráce: Michaela Pánková Kopecká
- Země: Česká republika
- Fotograf: David Korsa, Takuu - Petr Marvan
- Město: Brno-Kohoutovice
- Projekt: 2018–2019
- Realizace: 2019–2024