Pořád má v sobě vzpomínku na dobu vzniku, je ale současný. (Řadový dům v Čimicích, Plus One Architects)
Pořád má v sobě vzpomínku na dobu vzniku, je ale současný. (Řadový dům v Čimicích, Plus One Architects) Foto: Radek Šrettr Úlehla
Architektura / rodinné domy

Rodina si přestavěla dům z "osmdesátek." Je současný a plný světla

Domek na okraji Prahy, to je něco jako rodinné stříbro. Rodina z pražských Čimic si ho upravila tak, aby mohl dobře sloužit dalším generacím.

Karolína Vránková , 3. 12. 2025

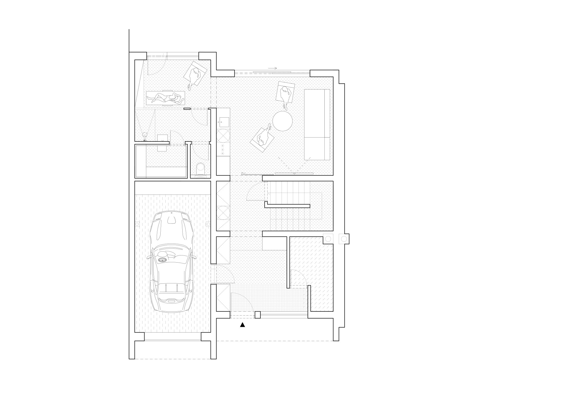
Za socialismu se nestavěla jen sídliště. V Čimicích na severním okraji Prahy 8 byly v 70. letech vyhrazeny rozsáhlé plochy pro řadové rodinné domy různých typů – tento měl dva byty pro dvě generace.

Foto: Původní řadovka se nezapře - je však přizpůsobená dnešním požadavkům i vkusu.

Teď  dům získala vnučka původních majitelů a chtěli si ho s rodinou přizpůsobit svým potřebám i vkusu, zvětšit užitnou plochu, zlepšit dispozice i propojení se zahradou. Zároveň chtěli zachovat charakter 80. let, tedy doby, kdy prarodiče dům budovali. „Kvality objektu posloužily jako odrazový můstek pro nové úpravy,“ vystihují to architektky Petra Ciencialová a Kateřina Průchová z ateliéru Plus One Architects. Proto jsou na fasádě červené cihlové obklady a v přízemí mléčné sklo copilit.

Původně bylo použité jen jako zasklení okna ve vstupní hale, teď  se opakuje na mnoha místech v domě, stalo se součástí některých příček a pouští světlo do nitra dispozice. „Nejzajímavější pohledy se nabízejí ráno a večer, kdy přímé sluneční paprsky příjemně rozptyluje mléčné sklo copilitů. To jsme doplnily osvětlením, které i ve večerních hodinách přispívá k intimní atmosféře,” popisuje záměr architektka Petra Ciencialová.

Celkový výraz domu tedy vychází z toho, co postavili předci. Zároveň architektky zlepšily dispozici, odstranily některé příčky, udělaly nový velký portál do zahrady a také zrušily nevyužité balkony – o jejich plochu zvětšily pokoje.

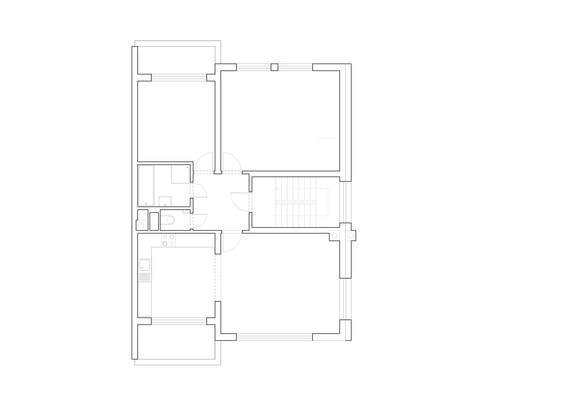
Letní přízemí

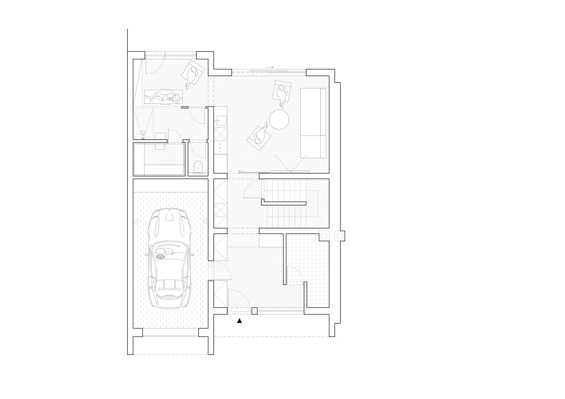
Největší změny se odehrály v přízemí, které dříve sloužilo převážně jako úložný a užitkový prostor. Původně protažená garáž byla zkrácena na praktickou délku a získané místo vyplnila pracovna. Přestavba zde vytvořila také menší obývací místnost s kuchyňským koutem a velkým portálem na zahradu, která v létě slouží jako „letní obývák“.  Počítá se ale s tím, že později to může být bezbariérový byt pro prarodiče anebo i bydlení pro odrostlé dítě.

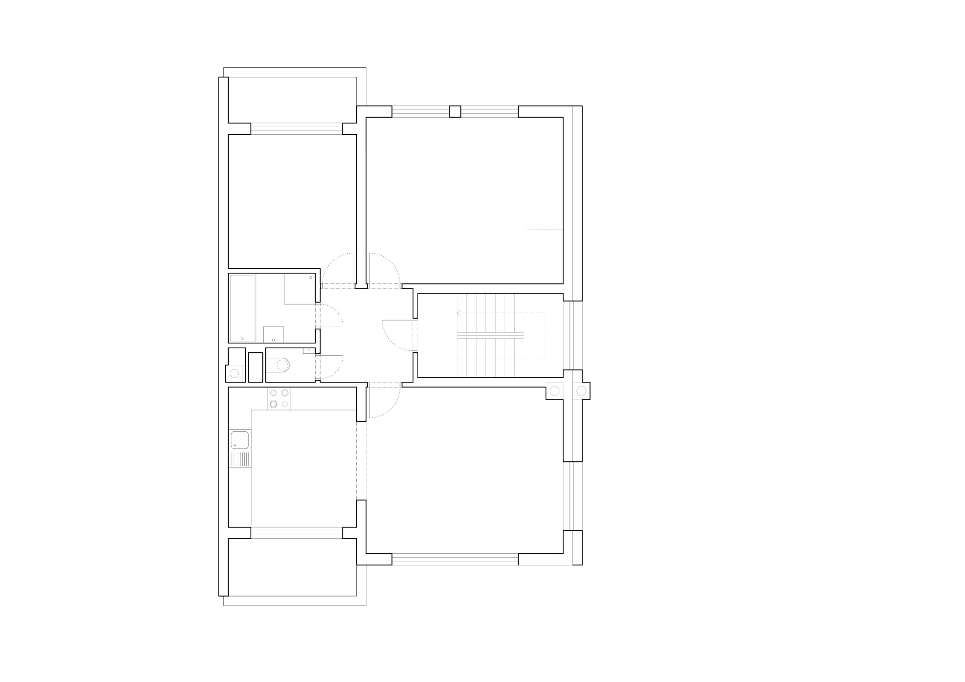
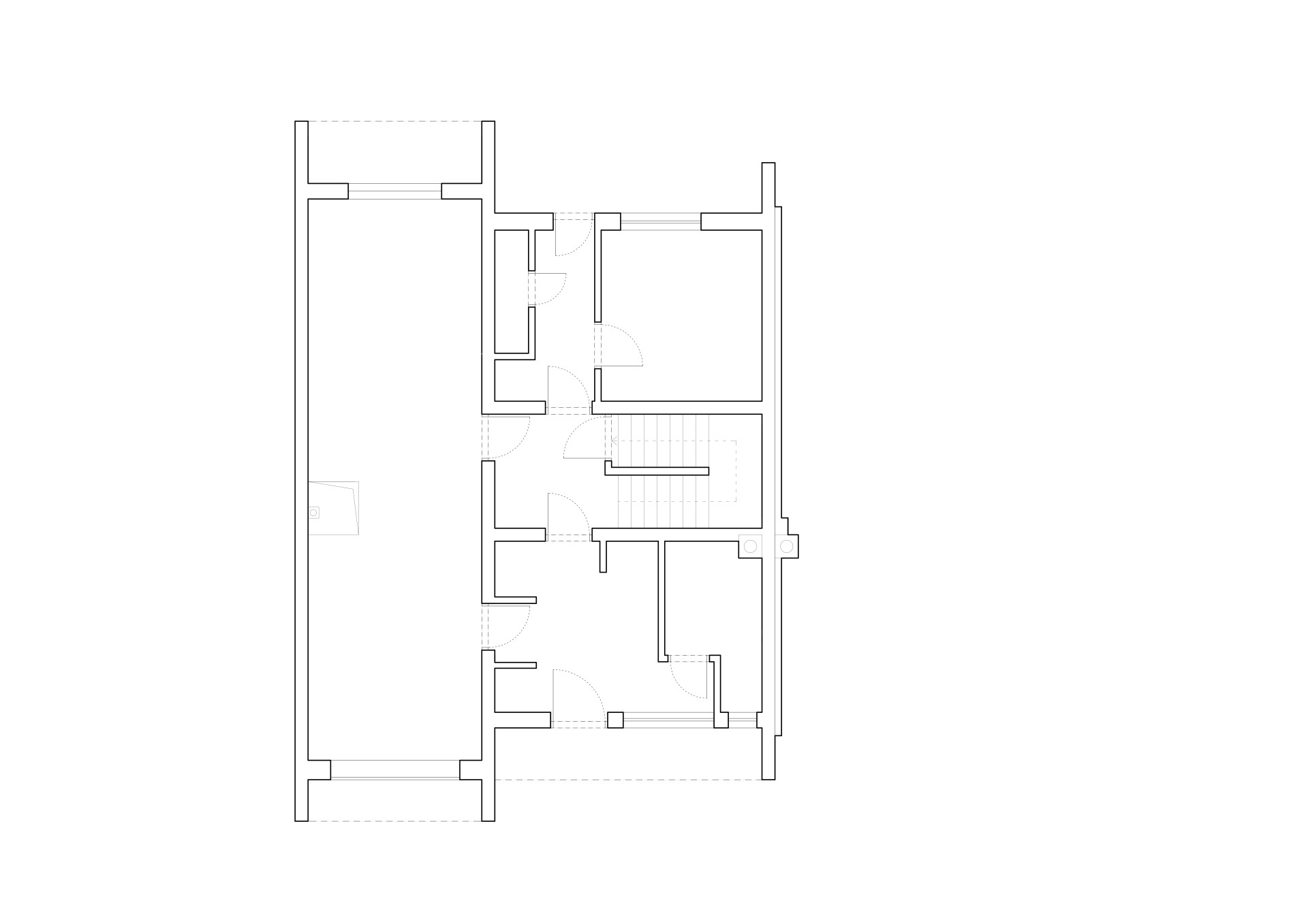
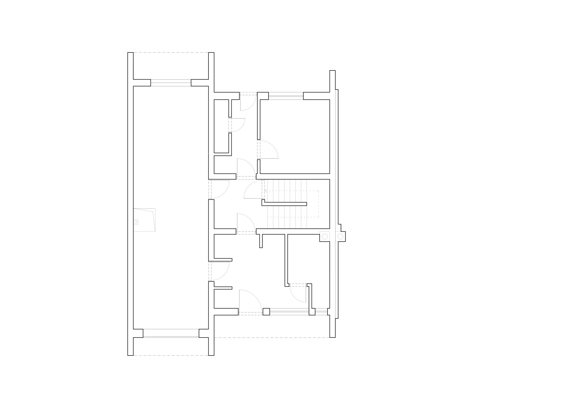
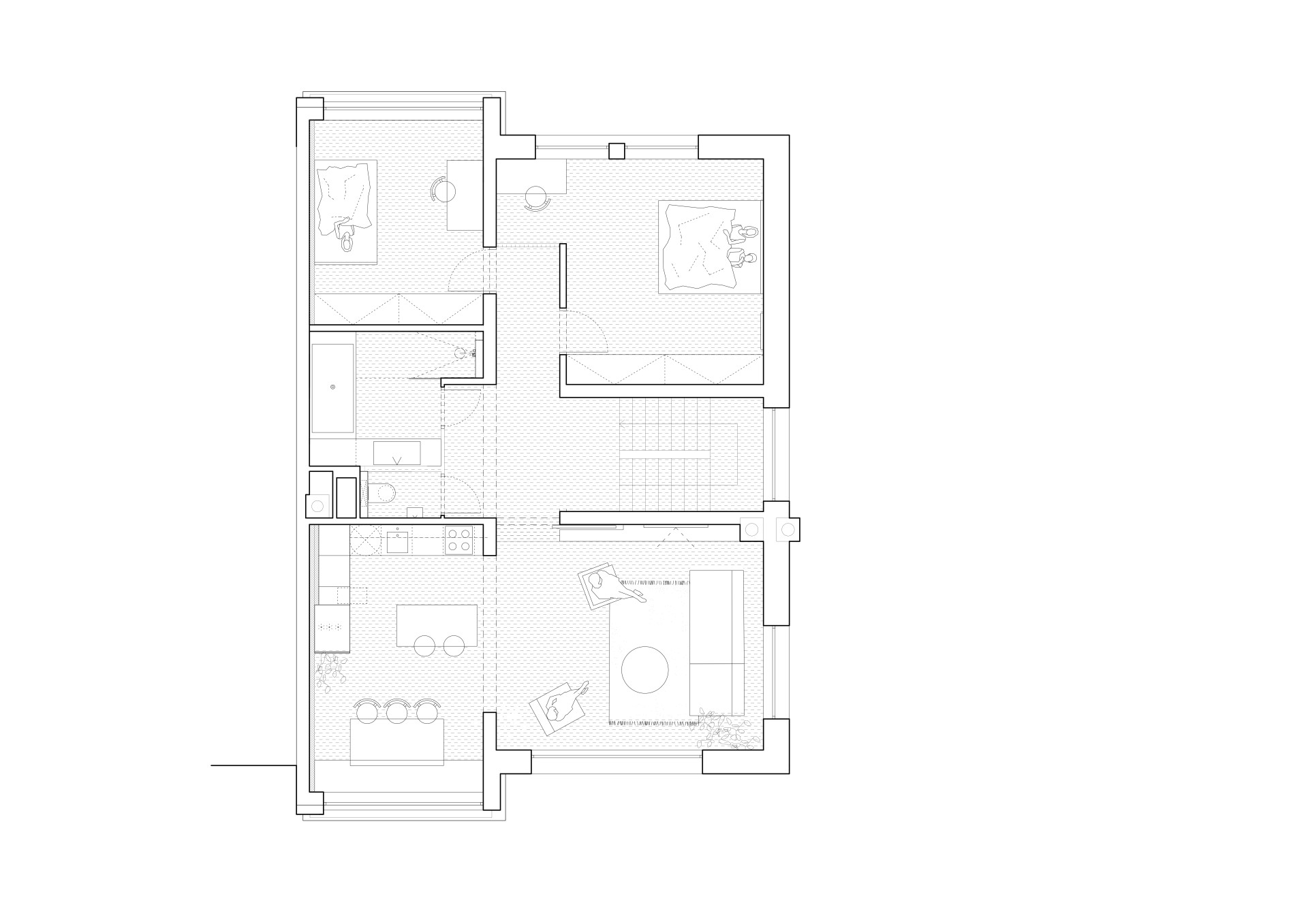
V prvním patře je větší byt. Má dvě ložnice, koupelnu, WC a kuchyň propojenou s obývacím pokojem. Druhé patro tuto dispozici kopíruje.

Foto: Vestavěný nábytek z březového dřeva

K prosvětlenému, současnému dojmu přispívá také světlý nábytek z březové překližky - březové dřevo se místnostmi prolíná v podobě dveří, kuchyňské linky i vestavěných skříní.

Výsledek má proti původnímu domu několik výhod. Jednak má příhodnější dispozice. Je také flexibilní a může se v čase proměňovat podle měnících se potřeb rodiny. Při tom všem se hlásí ke své historii a „navazuje na jednotný ráz řadové zástavby, čerpá ze svých původních kvalit a transformuje je do podoby vhodné pro potřeby nových obyvatel.“ A to je unikátní kvalita – že prošel citlivou přestavbou, to se dá říct jen málokterém domě z doby socialismu.

Mohlo by vás zajímat

Generální partner
Hlavní partneři