Architektura / rodinné domy

Rodinný dům od studia DOOOM rámuje zahrada se vzrostlými borovicemi

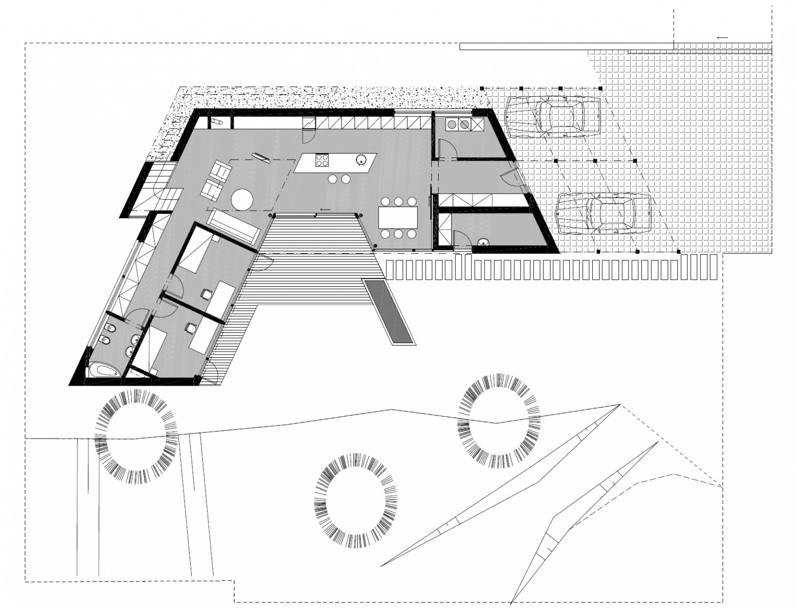
Architekti Igor Bergmann a Ondřej Lukeš z ateliéru DOOOM od počátku projektu řešili omezené možnosti využití parcely kvůli blízké výrobní hale a okolní zástavbě. Tyto aspekty vedly k návrhu domu o půdorysu ve tvaru zkosených hranolů - stavba tak zaujme především svou formou. Atmosféru interiéru udává především použití tmavého dřeva v kombinaci s broušenými betonovými podlahami i betonovými stropy. Ve společenské místnosti pak najdeme světlík, který nevšedně vizuálně propojuje obě patra stavby.

Dooom , 27. 10. 2021

  • Autoři: Igor Bergman, Ondřej Lukeš
  • Země: Česká republika
  • Realizace: 2018
  • Město: Zlín
  • Datum projektu: 2015
  • Realizace: 2018
  • Stavební část: ing. Pavel Srba
  • autor: Dooom *
  • publikováno: * 27. 10. 2021
  • zdroj: * Autorská zpráva

Klíčová slova:

plochá střecha světlík zahrada

Mohlo by vás zajímat

Generální partner
Hlavní partneři