Cihlový dům v Pardubicích. K zahradě otevřený, do ulice krytý
Rodinná vila na okraji Pardubic poskytuje rodině dostatek prostoru na bydlení i práci. Aby nepůsobila mohutně, rozdělili ji architekti na několik částí.
EARCH.CZ , 28. 11. 2025 / Advertorial
Pardubice patří k menším krajským městům, takže se tu dá žít v domě se zahradou a přitom být za chvíli pěšky v centru. Lokalitu zároveň blízko okraje i středu si vybrali také majitelé nové cihlové vily, která je obklopená zelení. Jedinou nevýhodou místa je na severní straně domu blízkost železnice. Tím směrem se dům obrací uzavřenou fasádou. Není to ale žádná nepřátelská bariéra, cihelný pásek v teple červené barvě, který ji pokrývá, je vlídný materiál.
Když člověk vstoupí dovnitř, uvítá ho prosvětlená chodba. „Prvním gestem je hala se střešním světlíkem, který zvýrazňuje prostor mezi objemy a přináší do nitra domu měkké, proměnlivé světlo,“ popisují architekti Jakub Dvořák a Michal Bílek. Koridorem s průsvitným stropem lze projít skrz celé přízemí až do zahrady, anebo vstoupit do prostorné obytné místnosti s velkými panoramatickými okny. Všude je tedy hodně světla a průhledy na zahradní vegetaci.

Je tu též dostatek místa pro rodinný život. Ve velkorysé obývací místnosti je jídelní stůl a další venku na kryté terase. Dále se tu nachází pohovka, krbové těleso a další masivní pilíř s knihovnou a televizí, který tvoří pevný bod v rozlehlém prostoru. „Kolem něj se odehrává každodennost,“ říkají architekti. Trochu atypické je umístění kuchyně, která je mimo hlavní obytný prostor; přání klientů bylo ji trochu „ukrýt.“

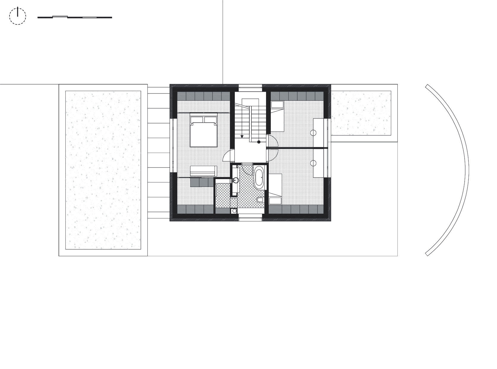
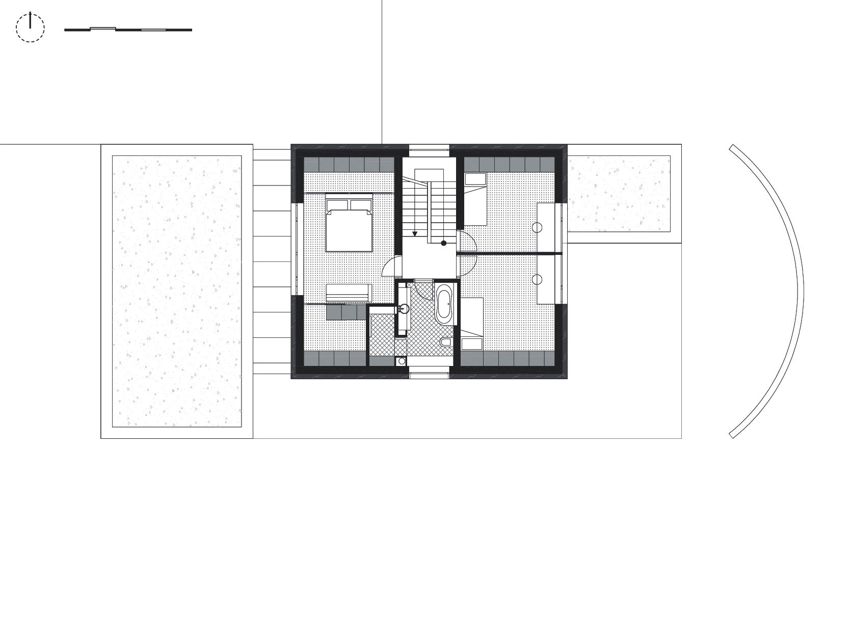
V přízemí jsou dále dvě pracovny rovněž propojené se zahradou francouzskými okny; komfortní řešené pro majitele, kteří oba pracují z domova. V patře najdeme dva dětské pokoje a rodičovskou ložnici.
Více k tématu
„Klienti přišli se zadáním vily inspirované Holandskem – nikoliv doslovně, spíš atmosférou: pocitem útulnosti, kompaktností, vztahem k materiálu,“ popisují architekti. Vedlo je to k tomu, že dům rozdělili na více objemů – více než 200 metrů užitné plochy je rozčleněno do menších kvádrů, poskládaných vedle sebe a na sebe tak, že celek nepůsobí mohutně. Další holandská inspirace jsou cihly. Stejný cihelný pásek se objevuje na fasádě i v interiéru, který domu dává jasnou identitu – i když okolí je hodně rozmanité, jsou domy různého stáří i velikosti, tenhle cihlový si nikdo nesplete.
Použité produkty:
Na fasádě byl použitý cihlový pásek NFP.Purple rain (HF10) od společnosti Klinker Centrum. Cihly jsou doplněny kontrastní antracitovou spárovací hmotou.
- Ateliér: atlasforem
- Autoři: Michal Bílek, Jakub Dvořák
- Země: Česká republika
- Fotograf: Petr Polák
- Realizace: 2024
- Město: Pardubice
- Užitná plocha: 232 m2
- Projektantka: Jana Hemerková