Architektura
/
interiér
V hlavní roli jídlo
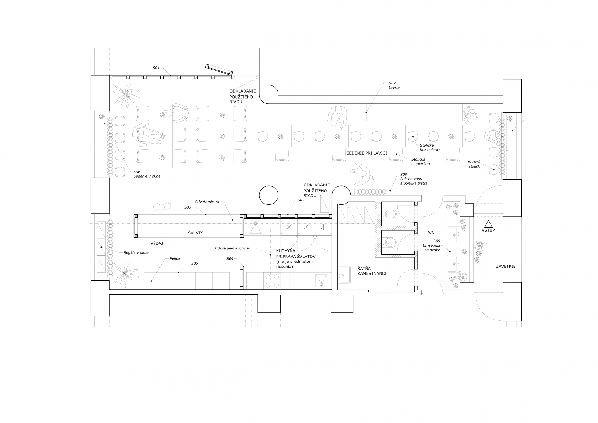
Prosté materiály i tvarosloví, nic svátečního, a přesto důstojné a příjemné prostředí. V bistru GRÍN GRIN, navržené studiem toito architekti, se jistě při dobrém jídle potkávají lidé nejrůznějších profesí a věkových skupin. Protože polévky a saláty mají rádi téměř všichni.
toito architekti , 22. 12. 2016
Více k tématu
- Autoři: Katarína Príkopská, Ivan Príkopský, Tomáš Szöke
- Země: Slovensko
- Realizace: 2014
- Město: Bratislava - Ružinov
- Ulice, číslo: Budovateľská 1062/27
- PSČ: 821 08
- Datum projektu: 2014
- Realizace: 2014
- Foto ©: Katarína Príkopská