Vysloužilá továrna na telegrafy se stala platformou pro současné umění Olomouce
Citlivě zrekonstruovaná průmyslová stavba se proměnila v prostor pro kreativitu. Budovu v širším centru Olomouce transformovalo na galerii a coworking lokální studio Ječmen.
Adéla Vaculíková , 3. 8. 2022
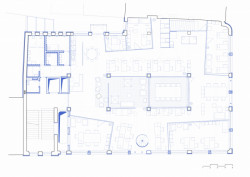
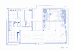
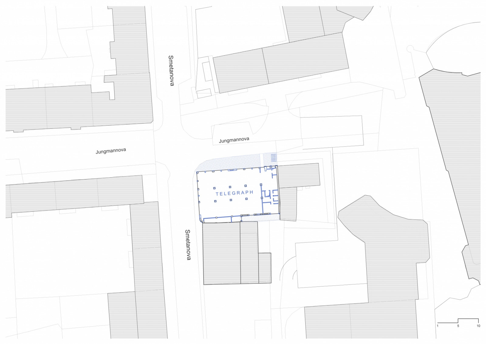
„Platforma pro umění, práci a kreativitu“ – tak zní charakteristika budovy Telegraph v Olomouci. Bývalá továrna na telegrafy z počátku 20. století dnes pod jednou střechou sdružuje galerii, coworking, kavárnu i prostory k bydlení.
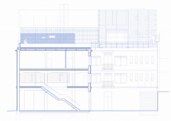
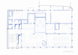
„Původní objekt je zvenku památkářsky zachován, ale s novou strukturou na fasádě. Zachovali jsme původní princip etážové výroby – každé patro je jiné (funkcí i designem),“ popisují realizaci architekti z lokálního architektonického studia Ječmen. Investorem byl olomoucký podnikatel Robert Runták, který je rovněž majitelem rozsáhlé sbírky moderního a současného umění. Právě galerijní prostory zabírají celé přízemí objektu. Umělecká díla a instalace ovšem citlivě zrekonstruovanou budovu zdobí i zvnějšku. „Na fasádě přízemí je legální graffiti stěna – Telegraph se snaží vystupovat i vně a vtahovat kolemjdoucí,“ dodávají architekti.
Více k tématu
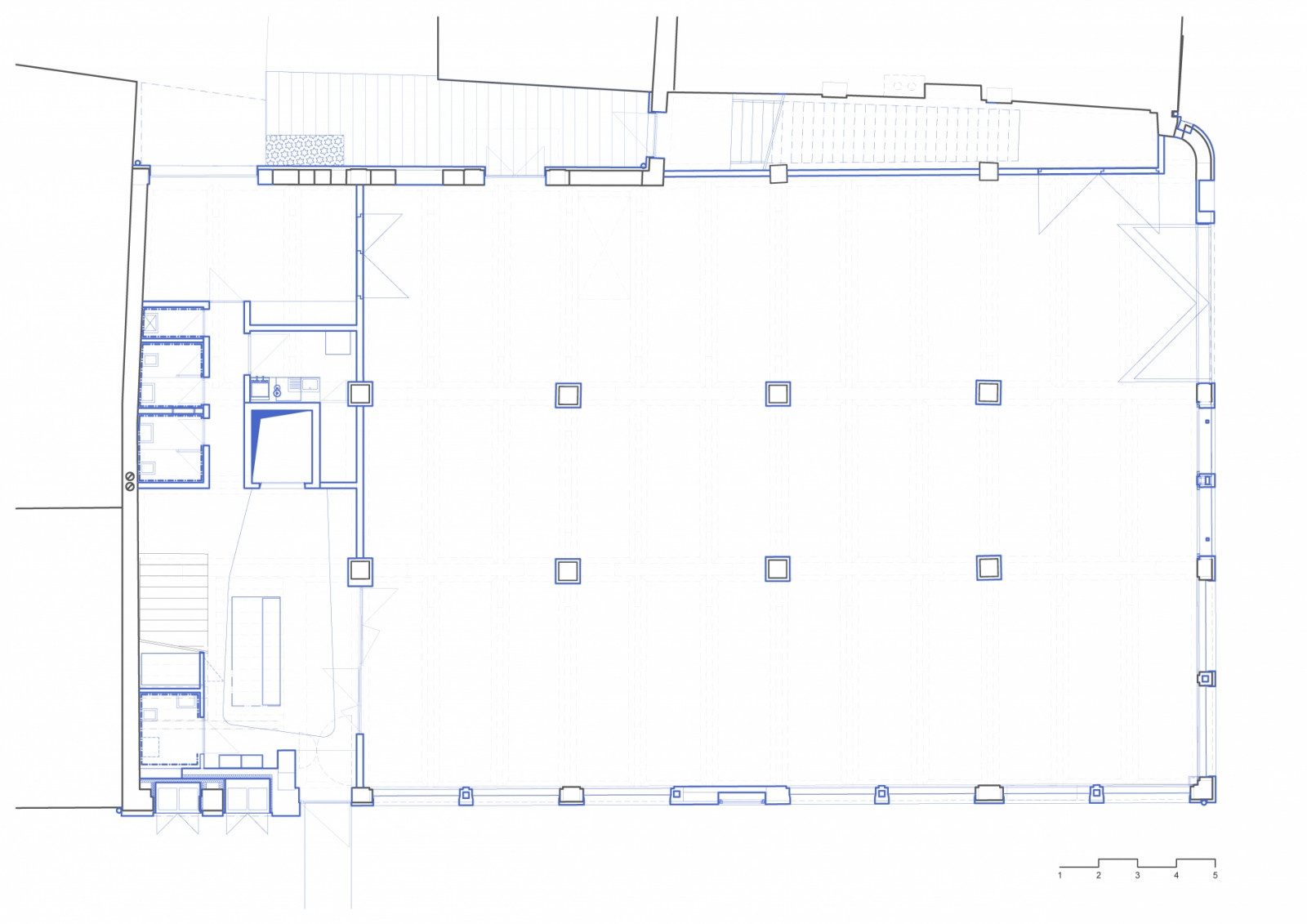
Součástí budovy je dnes poměrně velký coworking, zabírá druhé a třetí podlaží. Z velké části je koncipován jako open space, vizuálně ho však rozdělují vložené zasedací místnosti, odpočinkové zóny nebo menší uzavřené kanceláře. „Coworkingové centrum je hybrid mezi volnou kancelářskou krajinou a samostatnými kancelářemi,“ říkají o kancelářských prostorech architekti Eva Blažková a Lukáš Blažek ze studia Ječmen. V Telegraphu se ale nachází třeba i byt pro hostujícího umělce nebo multifunkční sál.
Galerie v přízemí a coworkingová patra toho mají mnoho společného. V celé budově na sebe upoutávají pozornost odhalené původní konstrukční prvky. Opakuje se také použití skleněných příček v tmavě šedých rámech. Barvu do interiérů kanceláří přináší především pestré vybavení.

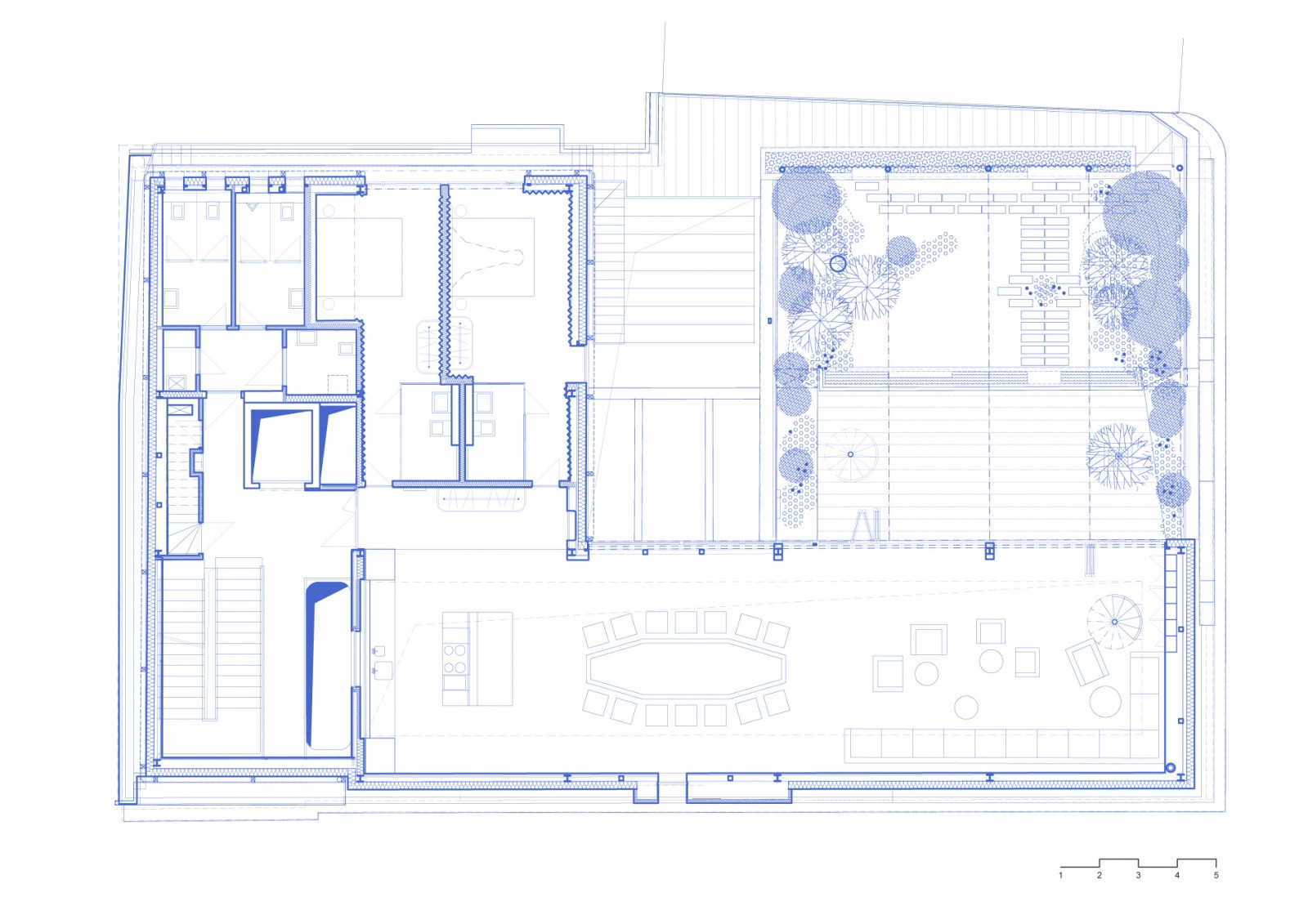
Budova dnešního Telegraphu má i zcela novou část − ocelovou nástavbu. Materiálově se sice odlišuje od omítnutých fasád původní stavby, navazuje však na jejího průmyslového ducha. V nástavbě se nachází loft neboli „byt milovníka umění“. Trvale v něm nikdo nebydlí, slouží k pronájmu – můžete se zde ubytovat na pár nocí, nebo si třeba nechat uspořádat večírek. Jelikož nástavba nepokryla celou plochu střechy původní budovy, vznikl zde prostor pro velkorysou terasu a zahradu s výhledem na město. „Loft v nástavbě je bytem pro milovníka umění, odkazuje na salon měšťanských bytů konce 19. století, tvarem je to ale jednoduchá ocelová stavba jako při rozšíření továrního provozu,“ vysvětlují architekti.
- Ateliér: Ječmen studio
- Autoři: Lukáš Blažek, Eva Blažková
- Spolupráce: Vojtěch Jemelka, Anna Pospíšilová, Lucie Vyhlídalová, Jan Skoček
- Země: Česká republika
- Adresa: Jungmannova 3, Olomouc, Česká republika
- Projekt: 2016-18
- Realizace: 2020-21
- Užitná plocha: 1512 m²
- Zastavěná plocha: 507 m²
- Plocha pozemku: 507 m²
- Obestavěný prostor: 7880 m³