
K babičce malou brankou. Dvě generace na sousedních pozemcích
Je to už deset let, co se rodina z vesnice nedaleko jezera Rozkoš ve Východních Čechách stěhovala do nového. Jak se ale ukázalo, dům není nikdy hotový, tak jako není hotový vývoj rodiny.
Karolína Vránková , 23. 10. 2025
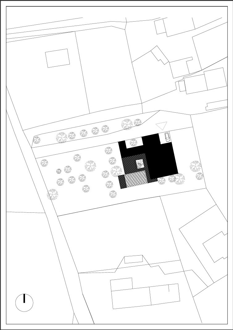
Rodina měla velký pozemek. Když se dcera chtěla osamostatnit, věnovali jí rodiče sad, kde si „mladí“ postavili dům. K původnímu domu rodičů je ale vstřícný – je tam vidět z terasy a na jejich pozemek vede pěšina a branka. „Maximálně jsme vyšli vstříc požadavku rodiny, aby dům poskytoval dostatek soukromí a přitom komunikoval s domem rodičů na východní straně,“ popisuje to jeho autor Patrik Zamazal z ateliéru MOLO Architekti.
Dům je k rodičovskému otevřený, ale autonomní. Hlavní vchod je samostatný a nachází se na jižní straně domu. Sem se přijíždí nebo přichází a vstupuje do denní zóny, kde je velký obývací pokoj spojený s kuchyní. Na něj navazuje velká dřevěná terasa. Pod její zastřešenou částí je dlouhý společný stůl. U terasy je koupací biotop, který spolu se zelenou střechou přispívá k příjemnému mikroklimatu okolí domu.

Fasáda kombinuje šedý vlnitý plech a modřín. Po vnějším obvodu je kovová fasáda, jakási „ochranná vrstva“, jak to vystihuje architekt Patrik Zamazal. Na vnitřním obvodu domu kolem terasy se nacházejí modřínová prkna, také na podlaze je dřevo, což působí útulně a domácky, jako by člověk byl v dalším venkovním pokoji. Neošetřený modřín přirozeně stárne – části pod střechou do teplé hnědé, části vystavené povětrnosti jsou šedivé. Plech je v části kolem oken perforovaný, i to je zajímavý výtvarný detail. Tam, kde je přes okna, slouží i jako síťka proti hmyzu.
Ovšem stejně jako rodina, i dům se vyvíjí. Klienti nejdříve dokončovali zahradu a koupací biotop. Mezitím jsou z dětí teenageři a potřebují jiné, více „dospělé“ vybavení pokojů. Otec začal podnikat, a proto se bude v zahradě stavět ještě jeden objekt jako kancelář.

Podle architekta Patrika Zamazala je tohle častá výzva – jak udělat rodinný dům, který bude odpovídat na měnící se potřeby rodiny. „Snažíme se to předvídat a nechat prostorovou rezervu tam, kde by se dal například ještě přistavět pokoj,“ říká architekt Zamazal. V případě dřevostaveb je naštěstí modifikace velmi snadná.
Více k tématu
Druhý častý případ je, že děti odcházejí z domova a rodina se zmenší. „I na to se snažíme myslet předem. Třeba tak, že už na začátku víme, že dětský pokoj může jednou sloužit jako bydlení pro staré rodiče,“ říká architekt. „Budoucnost se nedá předpovídat,“ dodává. Je ale možné se připravit na co nejvíc variant. A nachystat na ně i svůj dům.
- Autoři: Patrik Zamazal
- Ateliér: MOLO ARCHITEKTI
- Země: Česká republika
- Fotograf: Lukáš Žentel
- Realizace: 2024
- Užitná plocha: 198 m2
- Zastavěná plocha: 253 m2
- Plocha teras: 200 m2
- Dodavatel: Vojtěch Vychytil, s.r.o