Rekonstrukce prvorepublikové vily s respektem k historii, ale moderním interiérem
Citlivá rekonstrukce prvorepublikové vily v Brně spojila respekt k historii s odvážným současným designem. Architektka Kateřina Horych ze studia Atel!er společně se studiem Le Bon navrhli interiér, kde se původní architektonické prvky setkávají s precizně zpracovaným nábytkem na míru a pečlivě vybranými detaily. Realizace dokazuje, že i v památkově cenném objektu lze dosáhnout harmonické rovnováhy mezi zachováním autenticity a moderním komfortem.
EARCH.CZ / ABB s.r.o. , 16. 10. 2025 / Advertorial
Takový druh rekonstrukce prvorepublikové vily vyžaduje osvícené majitele, kteří svěří práci architektovi a designérovi s důrazem na poctivou řemeslnou práci. A když představy souzní a podaří se taková realizace, jako tomu bylo v Brně, je to pastva pro oči. Do brněnské vily se povedlo vnést moderní interiér, aniž by utrpěla historická hodnota. Celá realizace tak působí dojmem synergie ve všech směrech. V moderním interiéru na vás dýchne první republika. Jen není „černobílá“. Naopak, je plná světla a jemné barevné harmonie. Kombinace materiálů, jako je přírodní dub, ocel, porcelán a kámen, zde tvoří kompaktní celek a zachovává genius loci budovy samotné.

Silné vizuální prvky, jako jsou odpočívárna, průhledy a průchody mezi místnostmi, ale také detaily jako jsou „hnízda" porcelánových vypínačů a ovládacích prvků, podtrhují originální a svébytné pojetí celé rekonstrukce. Každý detail tu má své místo – je funkční i estetický.
O tom, jak celý projekt vznikal a jaké výzvy museli architekti během realizace řešit, jsme si povídali s architektkou Kateřinou Horych ze studia Atel!er, která vedla celý návrh interiéru.
Když se ohlédnete za celým projektem – co pro vás byla ta největší výzva, a co vás naopak nejvíc bavilo?
Největší výzvou bylo asi nastoupit do rozjetého vlaku. Investoři nás oslovili ve chvíli, kdy měli zpracovaný projekt přístavby, a zároveň již probíhaly dílčí bourací práce na původní stavbě. V tu chvíli si uvědomili, že otázek, které je potřeba pro budoucí interiér vyřešit, není zrovna málo, a že si sami neporadí. Obrátili se tedy na nás a díky tomu, že jsme byli naladěni na stejnou vlnu, se nám podařilo vyšvihnout celkový koncept i úpravy dispozic poměrně rychle. Nakonec to hektické tempo mělo i pozitivní dopad – návrh se podařilo zhmotnit do reality skutečně rychle, což byla opravdu radost.
Jak probíhala spolupráce s investorem? Měl jasnou představu, nebo vám a studiu Le Bon, jako autorům interiéru i nábytku na míru, dopřál volnost?
Klienti měli některé vysněné prvky mobiliáře a osvětlení, které chtěli do nového interiéru každopádně vnést. V rámci zadání nám nasdíleli svůj wishlist, takže jsme od začátku pracovali tak, abychom vytvořili harmonický celek a všechny prvky do sebe navzájem zapadaly. Jinak jsme dostali poměrně velkou volnost a studio Le Bon vše poté přetavilo ve skutečnost.

V interiéru jste použili také porcelánové vypínače typické pro domovy první republiky. Co vás k nim přivedlo? Byla to intuice, kontext budovy, nebo třeba touha po určitém detailu?
V celém interiéru používáme mnoho různých typů obkládaných ploch, ať už keramických nebo dřevěných, na nichž porcelánové vypínače krásně vynikají jako šperk. Vypínače a zásuvky Decento od společnosti ABB jsme rozhodně nepoužili v projektu poprvé – rádi s nimi pracujeme především v rekonstrukcích, do nichž umí vnést osobitý detail i odkaz na minulost.

Jak jste přemýšleli o kombinaci materiálů? Hrál porcelán roli i v tom, jak se propojil s dubem, ocelí, kamenem a dalšími přírodními materiály?
Všechny materiály, které jsme v interiéru použili, spojuje jejich autenticita a schopnost krásně stárnout – dub získává patinu, beton zraje a kámen žije. Sklo ve svítidlech a posuvných dveřích pak tento kontrast jemně vyvažuje svou stálostí. Porcelán je nadčasovou volbou, umí s interiérem stárnout, stejně jako ostatní použité materiály. Každé cvaknutí navíc přináší požitek. Baví nás i způsob osazení jednotlivých prvků ve zdi, kdy vyniká každý jeden kulatý rámeček, což zdůrazňuje nejen materiálovou exkluzivitu výrobku, ale i kreativitu v jejich umístění.
Více k tématu
Je nějaký detail nebo moment v interiéru, který vám osobně nejvíc utkvěl v paměti? Něco, co vás těší pokaždé, když se na to podíváte?
Interiér prvorepublikové vily podporuje průhledy místností mezi sebou a nečekané kombinace materiálů. Baví mě kontrast prostor mezi původní stavbou a přístavbou se surovým betonovým stropem, napětí mezi drobnými mozaikami na podlaze či stěnách kombinovaných s velkoformátovými obklady se skrytými dveřmi. Osvětlení, které vnáší do interiéru pohyb. Křivky, s nimiž pracujeme ve všech vrstvách interiéru.
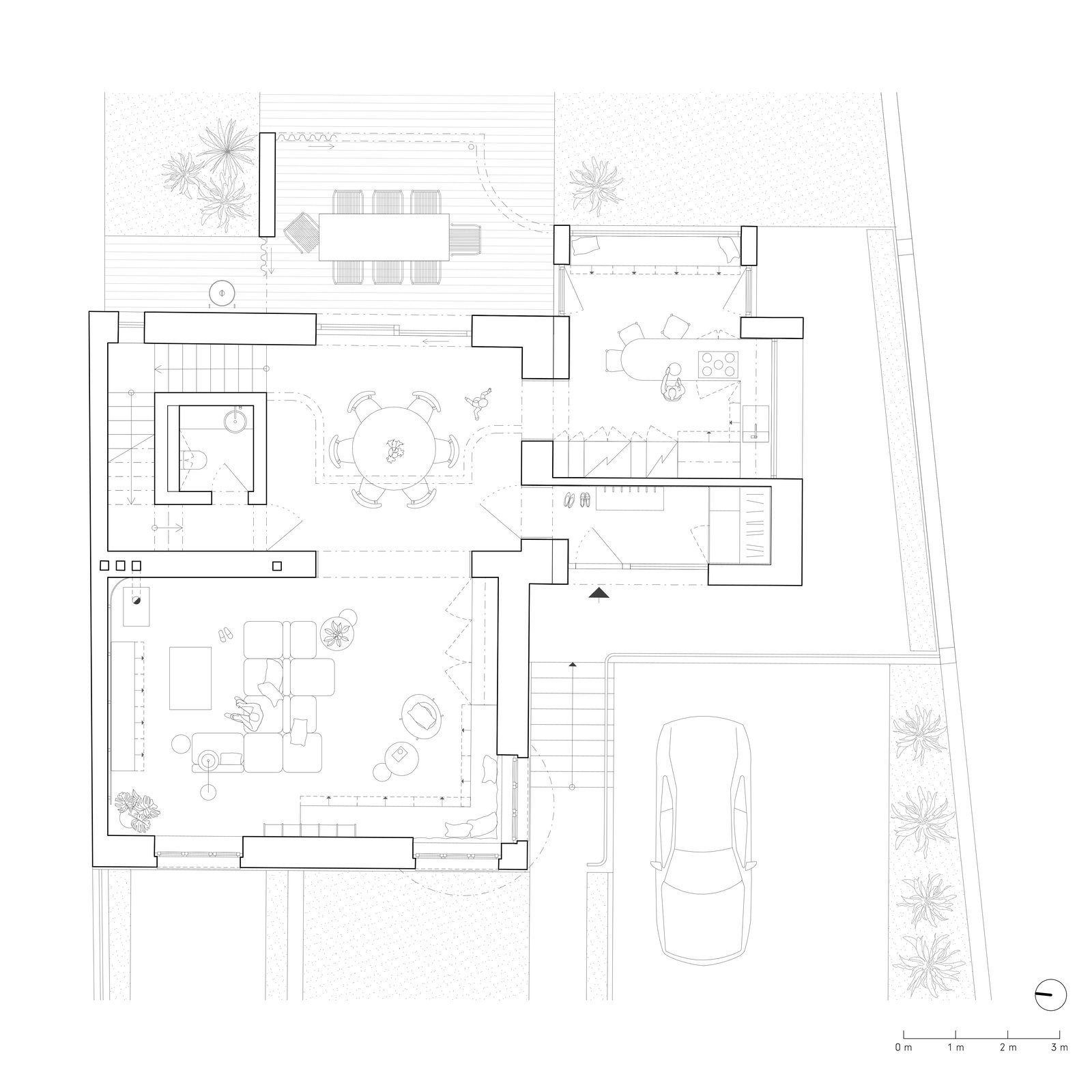
Projekt interiéru navazuje na Architektonickou studii přestavby a rekonstrukce rodinného domu zpracovanou kanceláří PAPOUSEK & SILHAN ARCHITECTS s.r.o., Ing. arch. Martinem Šilhanem a Ing. arch. Jiřím Papouškem.
- Ateliér: Atel!er
- Autoři: Kateřina Horych, Lucie Streďanská, Martin Šilhan, Jiří Papoušek
- Spolupráce: Klára Kováčiková
- Země: Česká republika
- Projekt: 2023 - 2024
- Realizace: 2023 - 2025
- Město: Brno
- Fotograf: Tomáš Slavík
- Realizace stavby: LE BON, spol. s.r.o.
- Elektroinstalace: ABB s. r. o.
- Architektonická studie: PAPOUSEK & SILHAN ARCHITECTS s.r.o.