
Podzemní katedrály v Brně. Polozapomenuté vodojemy dnes plní kultura a návštěvníci
Do konce devadesátých let byla v podzemních vodojemech na Žlutém kopci v Brně užitková voda. Dneska jsou vyčištěné a zakonzervované a dá se do nich chodit za kulturou. Ještě před deseti lety je město chtělo zbourat, dnes je to veřejně přístupná kulturní památka.
Adéla Vaculíková , 29. 1. 2025
Ačkoliv nový park na Žlutém kopci v Brně působí příjemně, hlavní lákadlo místa se nachází pod ním. Zemina v sobě totiž obsahuje ohromné „podzemní katedrály“ s klenutými loděmi. Jedná se o tři vodojemy, které tady budovali od závěru 19. století, aby vodou zásobovaly rozrůstající se Brno. Posledních třicet let jsou ovšem prázdné a nově se dají také navštívit − každý týden od úterý do neděle. Po rekonstrukci jsou monumentální prostory tajemně nasvícené a konají se v nich výstavy a kulturní akce.
Před deseti lety měly nepotřebné vodojemy na lukrativní parcele v centru města namále. V roce 2019 je však Ministerstvo kultury prohlásilo kulturní památkou a přistoupilo se k jejich rekonstrukci. Nyní se z nich stala lákavá brněnská atrakce.

Projekt z Británie v Brně
Tři vodojemy se na Žlutém kopci budovaly postupně mezi lety 1874 a 1917. Přibývaly vždy, když předchozí přestával kapacitně stačit. Tekla do nich voda z nového vodovodu, který pro město dodal Brit Thomas Docwry - podnikatel ve vodárenství, plynárenství a stavbě železnic. Voda se čerpala z řeky Svratky, procházela několika čištěními a pak putovala do vodojemů, z nichž většina stojí právě na Žlutém kopci.
Ačkoliv to byla důmyslná technologie, voda z takto provedeného vodovodu přestala k pití brzy vyhovovat a začala se využívat jako užitková. V takovém nastavení všechny tři vodojemy fungovaly až do roku 1997. Pak se vypustily, a tak trochu se na ně zapomnělo. Vzhledem k tomu, že jde o stavby pod zemí, to není zas tak překvapivé.
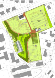
Park s technickou památkou
Ani dnes se vodojemy nad zem nepropisují, schovávají je zatravněné plochy. Na místě totiž vznikl nový park, v němž se dá procházet i posadit se na lavičkách. A je tady taky jedna stavba, tzv. dům hlídače, který dnes slouží jako vstup do dvou ze tří vodojemů. Zpřístupnit odtud i ten třetí bylo složité, a tak se do něj nakonec vstupuje po schodišti postupně se ztrácejícím v zemi.
Projekt na zrekonstruování a zpřístupnění vodojemů, včetně úpravy parku, vypracoval ateliér David Prudík architekti. Když architekt David Prudík hotovou realizaci prezentoval v rámci ceny Grand Prix Obce architektů 2024, zdůrazňoval, že cílem bylo areál celkově zkultivovat, ale příliš nezměnit. Park proto dostal střídmou podobu, a i nadále v něm vyniká dům hlídače z 19. století. Příliš se nezasahovalo ani do podzemních vodojemů, vyčistily se, zakonzervovaly a bezpečně zpřístupnily.

Ateliér vymýšlel také jejich osvětlení. Každý vodojem ho má jiné podle toho, co se k němu hodí. Liší se totiž jejich stavební materiály i konstrukční systémy. Dva jsou z pálených cihel, třetí z monolitického betonu. Architekti současně nechtěli do matérie památky výrazně zasahovat, proto jsou světla rozvedena co nejméně nápadně, třeba odtokovými kanály.
Více k tématu
O provoz vodojemů na Žlutém kopci se stará turistické informační centrum TIC Brno, které tady pořádá také umělecké instalace nebo kulturní akce. Co je ve vodojemech zrovna na programu je možné sledovat na jejich webových stránkách. Teď už se na tuto unikátní technickou památku jen tak nezapomene.
- Autoři: David Prudík, Tomáš Jiránek
- Ateliér: David Prudík Architekti
- Spolupráce: Terezie Havlíková, Ondřej Seďa, Romana Štrynclová, Markéta Čermáková
- Země: Česká republika
- Město: Brno
- Adresa:: Tvrdého 15, 602 00 Staré Brno
- Projekt: leden 2021 – září 2022
- Realizace: březen 2022 - prosinec 2023
- Investor: Statutární město Brno
- Fotograf: Tomáš Picka
- Návrh parku: Tomáš Jiránek, New Visit s.r.o.
- Návrh vizuálního stylu: Hrdina Pavlík Design Studio
- Návrh osvětlení, generální dodavatel osvětlení: ATEH, spol. s r. o.