Vzor pro rekonstrukce meziválečných staveb. Elektrické podniky prošly náročnou a mimořádně pečlivou rekonstrukcí
Funkcionalistická budova Elektrických podniků v Praze-Holešovicích je podle architekta Marka Tichého plná atypických a experimentálních prvků a detailů. Se svým studiem TaK Architects proto k její rekonstrukci přistupoval s maximální pokorou.
Adéla Vaculíková , 7. 11. 2022
Bývalá výkladní skříň Elektrických podniků v Praze prošla mezi lety 2018−2020 komplexní rekonstrukcí. Architektonické studio TaK Architects pod vedením Marka Tichého na ní spolupracovalo s odborníky z mnoha sfér. Cílem bylo budovu zrekonstruovat s úctou k její architektonické hodnotě a zároveň ji uzpůsobit nárokům na současný kancelářský provoz.
„Rekonstrukci a přestavbu paláce Elektrických podniků lze s jistotou označit za jednu z největších a technicky nejnáročnějších rekonstrukcí památkově chráněného objektu na území Prahy. Je průlomová mimo jiné rozsahem stavební intervence, zapojením odborných skupin různých oborů a téměř laboratorním hledáním finálního optimálního řešení,“ komentuje rekonstrukci Marek Tichý.
Více k tématu
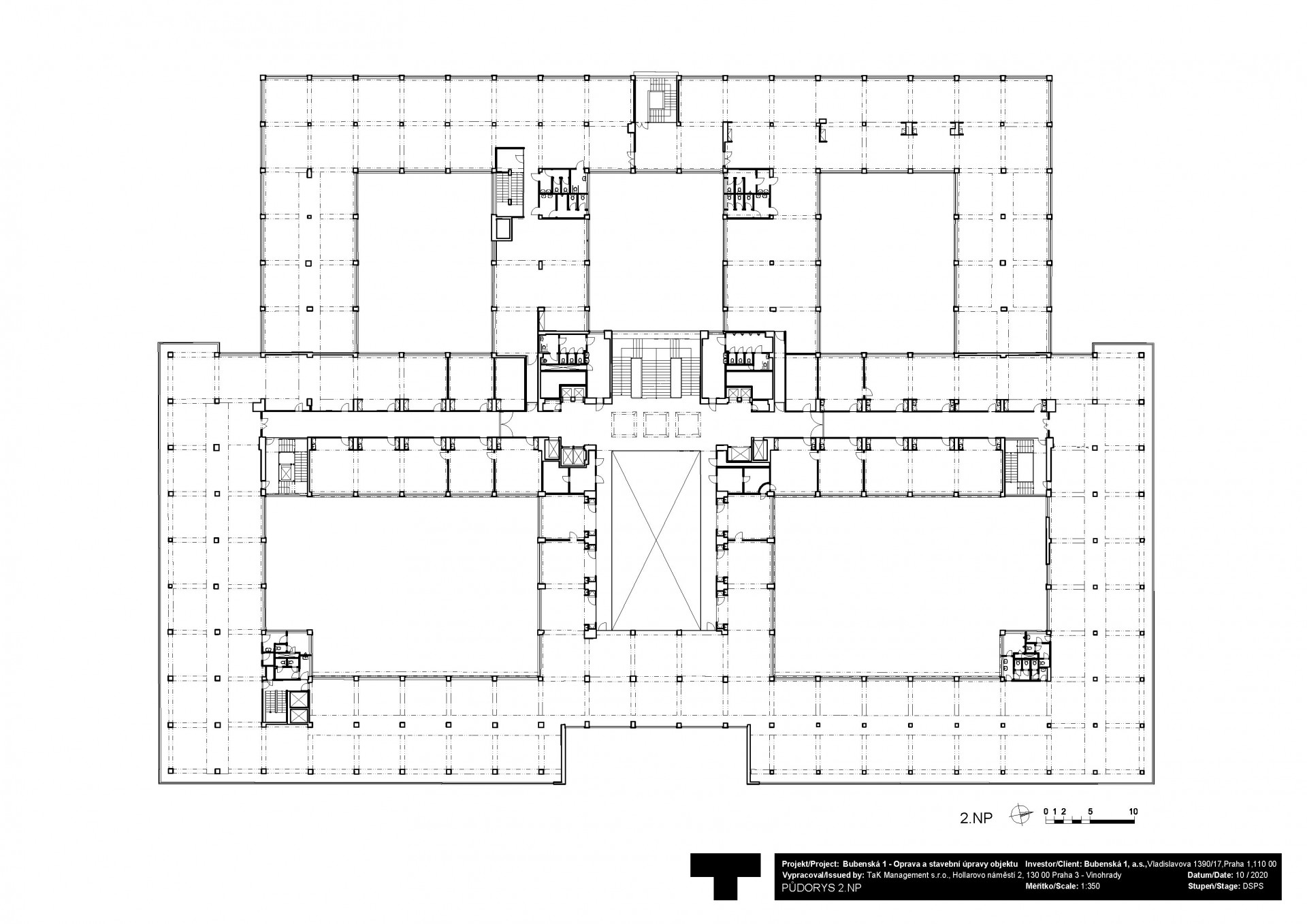
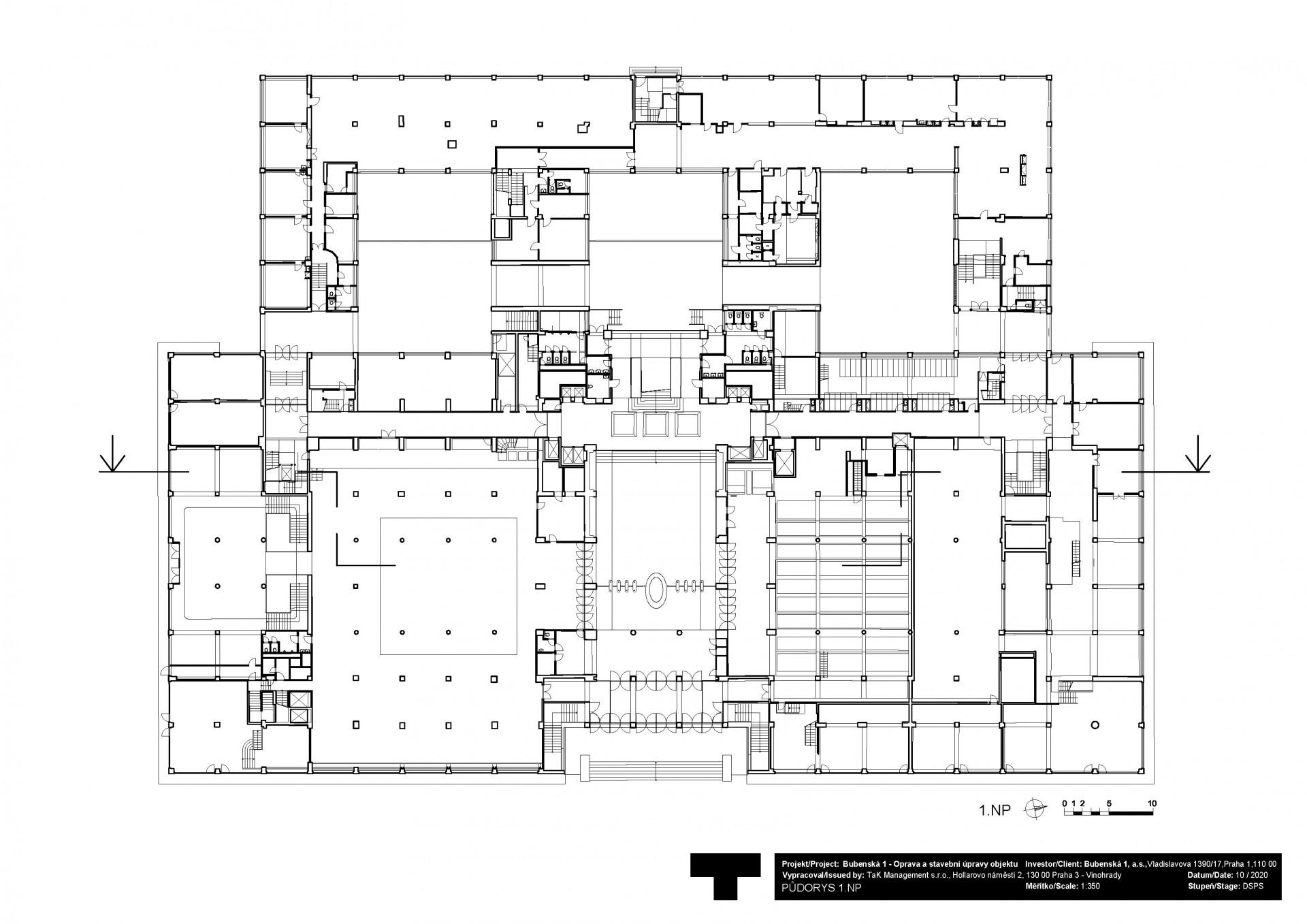
Funkcionalistická budova Elektrických podniků v Holešovicích byla ve své době multifunkčním palácem moderního typu. Velkou bílou hmotu seskládanou z kubických objemů navrhli pražští architekti Adolf Benš a Josef Kříž už v roce 1927 – tedy době, kdy začínal funkcionalismus sílit i ve velkých a státních zakázkách. Dokončena byla až roku 1935, o rok později než „první pražský mrakodrap“ – Všeobecný penzijní ústav, dnes známý jako Dům Radost. V Elektrických podnicích se vedle kanceláří nacházely i velkorysé obchodní a galerijní prostory, léčebné lázně, sklady, archivy, transformační stanice, telefonní ústředna nebo velkokapacitní jídelna amerického typu. Významnou památkou evropského měřítka je také původní systém řízené vzduchotechniky od firmy Carrier.
Sám Marek Tichý udává, že rekonstrukce funkcionalistického paláce, který je navíc kulturní památkou, byla zajímavou výzvou. „Projekt naznačuje cestu k obnově obdobných meziválečných staveb velkého měřítka,“ komentuje situaci.

Budova Elektrických podniků zůstala i po rekonstrukci administrativní stavbou s velkorysým obchodním parterem. Originálně však byla plná malých buněk, které by dnešním nárokům nevyhovovaly. Původní struktura tak zůstala pouze v prvním patře, v dalších se viditelně rozvolňuje. Nejvýraznější proměnou v tomto ohledu prošly technické suterény, ve kterých se dnes nachází garáže se systémem automatického parkovacího zakladače.
Architekti Adolf Benš a Josef Kříž stavbu navrhli jako železobetonový monolitický skelet, který je v nejvyšších dvou podlažích nahrazen skeletem ocelovým. Fasádu pak navrhli provést v keramickém obkladu. „Celkově je navzdory zdánlivě střízlivému a utilitárnímu architektonickému výrazu objekt z hlediska stavebně-konstrukčního mimořádně složitý a plný atypických prvků a detailů,“ říká o budově Marek Tichý.

Původní prvky, které bylo možné zachovat, se dočkaly restaurátorské obnovy, jiné byly doplněny. Například okna byla nahrazena dřevěnými a ocelovými kopiemi, nový je i keramický obklad. Rozsáhlé sklobetonové zastřešení dvoran zůstalo. „Zbudováním nových prosklených střech nad původními sklobetonovými, byly současně značně vylepšeny tepelně-technické vlastnosti obálky budovy,“ vysvětluje Marek Tichý.

- Ateliér: TaK Architects
- Autoři: Ing. arch. Marek Tichý
- Spolupráce: Jana Kořínková, Pavla Brůžová
- Země: Česká republika
- Město: Praha - Holešovice
- Adresa: Bubenská 1, Praha 7
- Technické řešení stavby: AED Project a.s,
- Technický tým řešitelů úloh techniky prostředí: Ing. Lubomír Guziur, Ing. František Kubec, Ing. Vladimír Píša, Ing. Jiří Schaffer, Ing. Ivo Tříska, Ing. Bohuslav Kouba
- Technický tým řešitelů úloh požárně bezpečnostního zabezpečení: Ing. František Chuděj, Ing. Pavol Ondruš
- Generální dodavatel stavby: Metrostav, a.s.
- Dodavatelé restaurátorských celků: BEKR Art, Hefaistos, Kamono
- Technický dozor objednatele: BETKON, a.s.
- Investor stavby: CPI Property Group
- Náklady: 1, 3 mld
- Zastavěná plocha: 7 862 m2
- Obestavěný prostor: 137 241 m3
- Projekt: 2017
- Realizace: 2020