Kvalitní materiály a precizní detaily. Luxusní rezidence nad hlavním nádražím snoubí eleganci a funkčnost
Rezidence Churchill propojila administrativní a rezidenční komplexy v centru Prahy. Motiv přirozeného pojítka se přenesl i do organického designu jejích částí.
EARCH.CZ , 8. 10. 2022 / Advertorial
Rezidenční bydlení v centru Prahy
Rezidence Churchill s fasádou pokrytou pískovcovým obkladem a výraznými zaoblenými okny vyrostla ve svahu nad kolejištěm hlavního nádraží. Vedle pozice na rozhraní centra města a Vinohrad těží také z krásných výhledů. Jako na dlani se zde otevírá pohled přes Staré a Nové město až na Pražský hrad.
Specifikem bytového objektu se stala jeho role symbolického pojítka mezi dvěma druhy zástavby − bytovou a administrativní. „Zůstává zde patrný původní urbanistický koncept celé lokality, který pracoval s postupným přechodem od drobnějšího měřítka v okolí Riegrových sadů k masivnějším hmotám na náměstí Winstona Churchilla,“ říká o urbanistickém kontextu rezidence tým složený z architektů Jána Kostriana, Jany Lehotské, Petra Levého a Moniky Mayerové, kteří dříve vystupovali pod hlavičkou ateliéru Aukett s.r.o.
Více k tématu
Na křižovatce světů
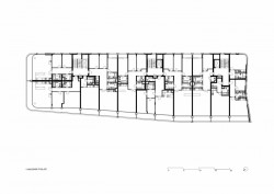
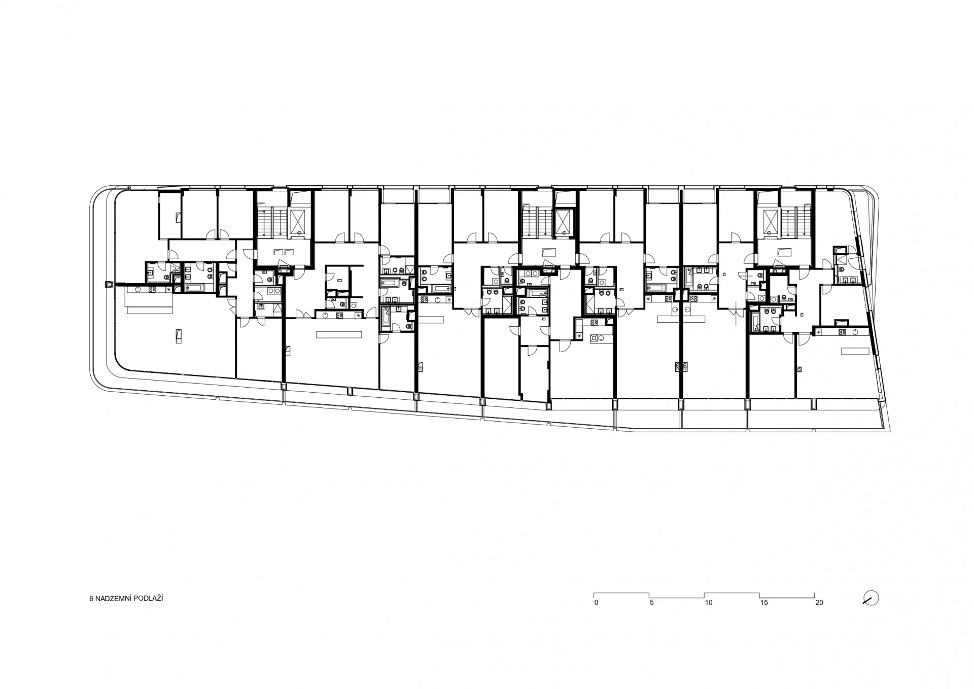
Rezidenční budova o deseti podlažích – třech podzemních a šesti nadzemních – nechává i na venek projevovat své vnitřní dispozice. „Navržení bytových dispozic vychází z orientace ke světovým stranám a má vliv na tektonické ztvárnění fasád. Na jihozápadní a severozápadní převažují hluboké lodžie zaříznuté do celé fasády rozdělené do tří bloků v protikladu severovýchodní a jihovýchodní většinou pravidelným rozdělením oken,“ popisují architekti. Nenápadné lodžie přitom komunikují právě s administrativními budovami, rozměrné balkony se naopak obrací k bytové zástavbě na opačné straně.
Převážně racionální rastr stavby z monolitického litého železobetonového skeletu místy zajímavě nabourávají organické detaily, které podporují koncept stavby vyrůstající ze země. Tato tvář budovy se nejsilněji projevuje právě v místě, kde pomalu sbíhá dolů ze svahu. Podzemní podlaží, na nichž jsou situovány parkovací místa pro automobily, sklepy a garáže se zde pomalu vynořují až nad povrch terénu.

Zachování prostupnosti
Architekti při navrhování budovy mysleli i na to, aby místo zůstalo stále prostupné. Pracovali s průhledy směrem k Vltavě, jak je to pro oblast typické. Vedle toho do budovy zakomponovali průchod přízemím, který vede mezi komerčními prostory obchodního parteru. V budoucnosti ulice naváže na nový průchod vedoucí na vlakové nástupiště.

S důrazem na kvalitní materiály
V Rezidenci Churchill se nachází dohromady 57 bytů různých velikostí – od 1+kk až po 5+kk. Jelikož se budova nachází v poměrně vytížené lokalitě, musí splňovat vysoké protihlukové hodnoty. Tyto nároky se týkaly i použitých oken. „Celý dům je řešen z kvalitních pro bytové domy nadstandardních materiálů s velkým důrazem na preciznost provedení bez viditelného kotvení. To s sebou přináší množství technických detailů a skrytých konstrukcí jako třeba kulaté pískovcové obklady a oblouková velkoformátová okna na nároží v kombinaci s vysokými nároky na akustiku směrem k nádraží,“ vysvětlují architekti technické zajímavosti budovy, za jejíž realizací stojí stavební firma Hinton.
Stejná společnost dodala i pro budovu charakteristická zaoblená okna v hliníkových rámech Schüco v moderní tmavě šedé barvě. „Dodávku divize HI okna hliníkové fasády představovala okna a oblouková skla do ulic Italská a Dudova. Součástí dodávky byla vedle oken a atypických oblouků i skleněná zábradlí nebo posuvné balkonové dveře typu PASK. Všechna okna jsou zasklena izolačním trojsklem o hodnotě Ug = 0,7 W/ m2.K, směrem do ulice Italské pak navíc s vysokými protihlukovými hodnotami až Rw' = 48 dB, což je oproti standardům velmi vysoká hodnota. Těmto požadavkům muselo odpovídat i provedení připojovací spáry prvků," upřesňuje technické parametry Tomáš Pevný, výrobní ředitel divize hliníkových fasád. Čistota architektonického výrazu i v drobných detailech je podpořena skrytými panty.

Rezidence Churchill hmotově zapadá do kontextu nové zástavby, která nad Hlavním nádražím v Praze v posledních letech vyrostla. Co je však hlavní, zvládla se vyrovnat především s jejich různými funkcemi. Jsou to právě individuálně pojaté fasády, které dokáží nejen místní obyvatele, ale i kolemjdoucího přirozeně přenést z administrativní až do rezidenční lokality a nevytvořit přitom ostrý předěl.
- Autoři: Jan Kostrian, Jana Lehotská, Petr Levý, Monika Mayerová
- Země: Česká republika
- Město: Praha
- Hlavní dodavatel: Hinton, a.s.