
Zachránit, nebourat. Slovenské městečko po dlouholetém úsilí dokončilo rekonstrukci plavecké haly z 80. let
V Trebišově na jihovýchodě Slovenska byla v polovině 80. let postavena plavecká hala, která však kvůli svému velmi nekvalitnímu provedení v rámci Akce Z musela být už před deseti lety z havarijních důvodů uzavřena. V sázce byla její demolice, nakonec se však podařilo stavbu zrekonstruovat.
EARCH.CZ , 20. 3. 2023
Výstavba městského bazénu byla během na dlouhou trať. Protože probíhala v rámci socialistické investiční akce Z, tedy neplacené pracovní činnosti obyvatel, s nedostatečným finančním pokrytím, protáhla se její realizace na celých 16 let. Průběh a podmínky výstavby se pochopitelně podepsaly na kvalitě provedení celé stavby.
Budova byla dokončena roku 1986, kvůli jejímu tristnímu stavu ji ale muselo město roku 2012 trvale uzavřít. Následně se vedly dlouhé debaty o tom, jak s budovou dále naložit. Někteří prosazovali demolici nekvalitní budovy, zvítězil však projekt rekonstrukce, na které se obdobně jako za socialismu podíleli mnozí místní obyvatelé. „Objekt jako takový byl tehdy bez přehánění ve stavu ruiny – nefunkční technická infrastruktura, zatékající konstrukce a narušená statika objektu,“ uvádí autor návrhu rekonstrukce Patrik Panda.
Více k tématu
„Konceptem bylo zachování existující hmoty a funkčního uspořádání s důrazem na racionalizaci prostorů, hledání kapacitních a funkčních rezerv , které by se doplnily funkcemi, které by byly v souladu s tou hlavní – využíváním plaveckého bazénu veřejností,“ přibližuje záměr projektu architekt Panda. „Určitá ordinérnost a strohost původní hmoty našla svůj odraz také v nové definici vnitřního uspořádání a řazení funkcí. Zapojení do prostředí tvořícího hranici mezi městem a krajinou je přetavené i do vnějšího vzhledu objektu a použitých materiálů. Dřevo a beton, přírodní a umělé,“ vysvětluje architekt.

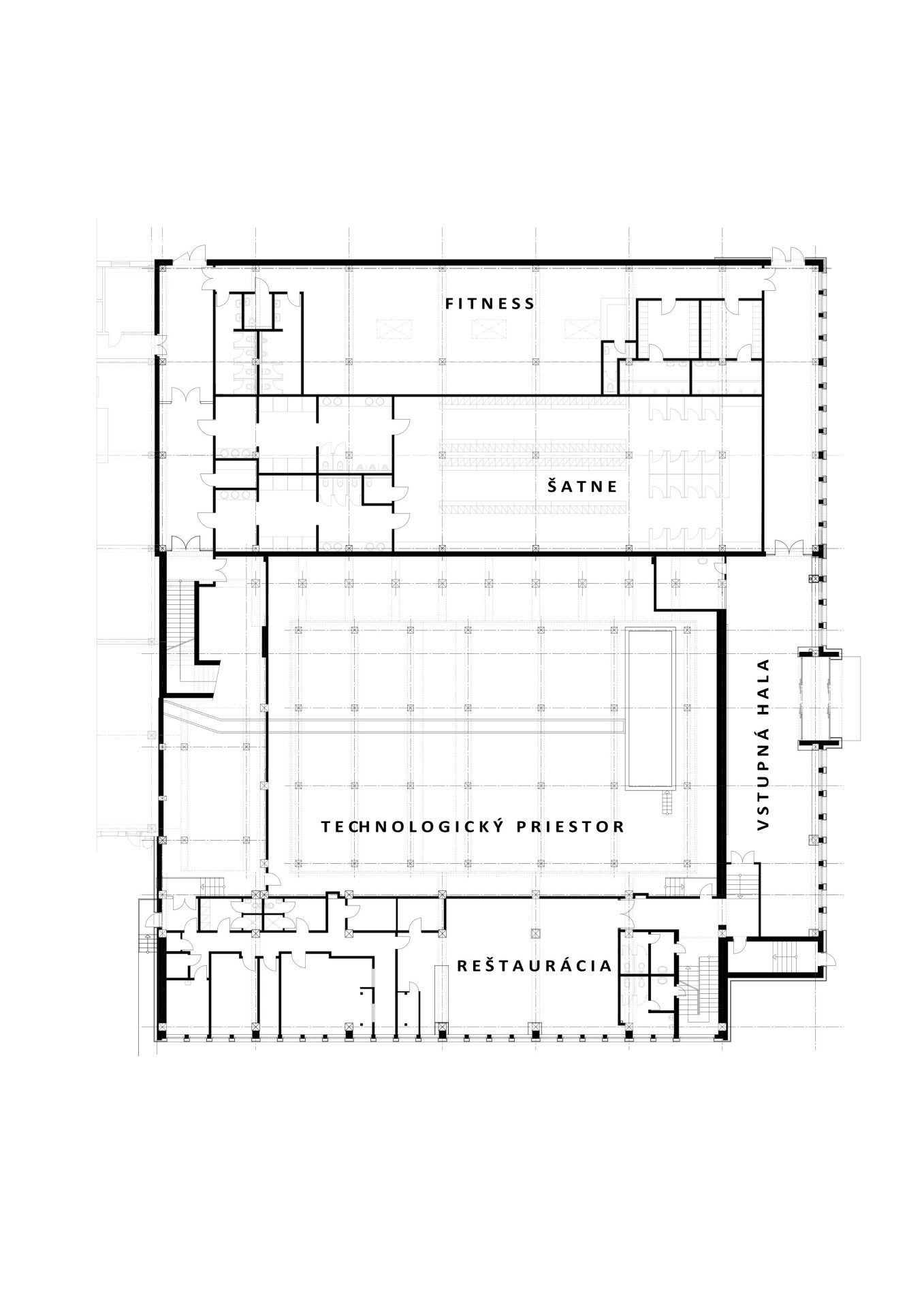
Rekonstrukce probíhala vzhledem k možnostem financování na etapy mezi lety 2017-2021. Došlo ke kompletní rekonstrukci hlavního objektu s pětadvacetimetrovým a dětským bazénem nacházejícími se v otevřené hale, která si uchovala svůj původní charakter. Přistoupilo se taky k dispozičním úpravám – mužské šatny se změnily na fitness, přibylo malé wellness v bazénové hale a bývalá administrativní část dnes slouží jako ubytování se sedmi pokoji. Rovněž bývalá pivnice se změnila na restauraci, která slouží zároveň jako školící středisko pro místní střední odbornou školu.
Oprav se dočkalo také východní křídlo se zázemím letního koupaliště přiléhajícího k hale. Práce na něm probíhaly do jisté míry svépomocí a podílely se na nich zaměstnanci města i s přispěním autora projektu hlavní části. Snahou bylo také zachovat původní výtvarná díla – ve vstupní hale od Ondřeje Priatka a v bazénové hale od Nikolaje Feďkoviče, které se však dochovalo jen v podobě fragmentu.

„Objekt městské plovárny je jako takový ‚neukončený‘. Provozuje ho městská organizace a vzhledem k rozpočtovým možnostem stále dochází k úpravám a doplnění ve smyslu původních autorských konceptů. Postupně dochází k nahrazení mobiliáře za kvalitnější, dochází k doplnění interiérových prvků a úvahám o ještě užším propojení s letním koupalištěm a přilehlými objekty s cílem vytvořit volnočasový areál s veškerými doplňkovými funkcemi a zároveň vytvořit prostor, který bude tvořit kvalitní propojující prvek mezi už vzpomínaným urbánním a krajinným prostředím hodnotného přilehlého parku Andrássyho,“ uzavírá architekt Patrik Panda.
Realizace byla oceněna Cenou veřejnosti CE ZA AR 2022.
- Autoři: Patrik Panda
- Spolupráce: Eduard Soták
- Země: Slovensko
- Město: Trebišov
- Adresa:: Škultétyho 2281, 075 01 Trebišov, Slovensko
- Náklady: 4.000.000,- EUR s DPH
- Investor: Mesto Trebišov
- Realizace: 2021
- Zastavěná plocha: 3426,81 m²