
V Lounech mají novou plaveckou halu. Dynamicky tvarovaná budova se otevírá pohledům zvenku
Městská plavecká hala v Lounech dostala podobu černého krystalu s organicky tvarovaným průčelím. Dynamické srazy hmot se propsaly i do jejího interiéru ve formě výrazného podhledu.
EARCH.CZ , 4. 8. 2022
„Objekt se snaží překročit běžný způsob řešení bazénů typický svou uzavřeností vůči pohledům okolí. Plavecká hala se naopak otevírá hlavní prosklenou fasádou a nechává kolemjdoucí nahlédnout do sportovního dění uvnitř,“ říká o městské plavecké hale v Lounech architekt David Kudla z brněnského studia dkarchitekti.
Plavecká hala v Lounech stojí na poměrně exponovaném místě. Míjí ji výpadovka na Rakovník a z dalších stran ji obklopují úřední budovy. To, že jde o plaveckou halu, ale poznáte na první pohled, mluví za ni totiž vysunutý tobogán se schodišťovou věží.
Více k tématu
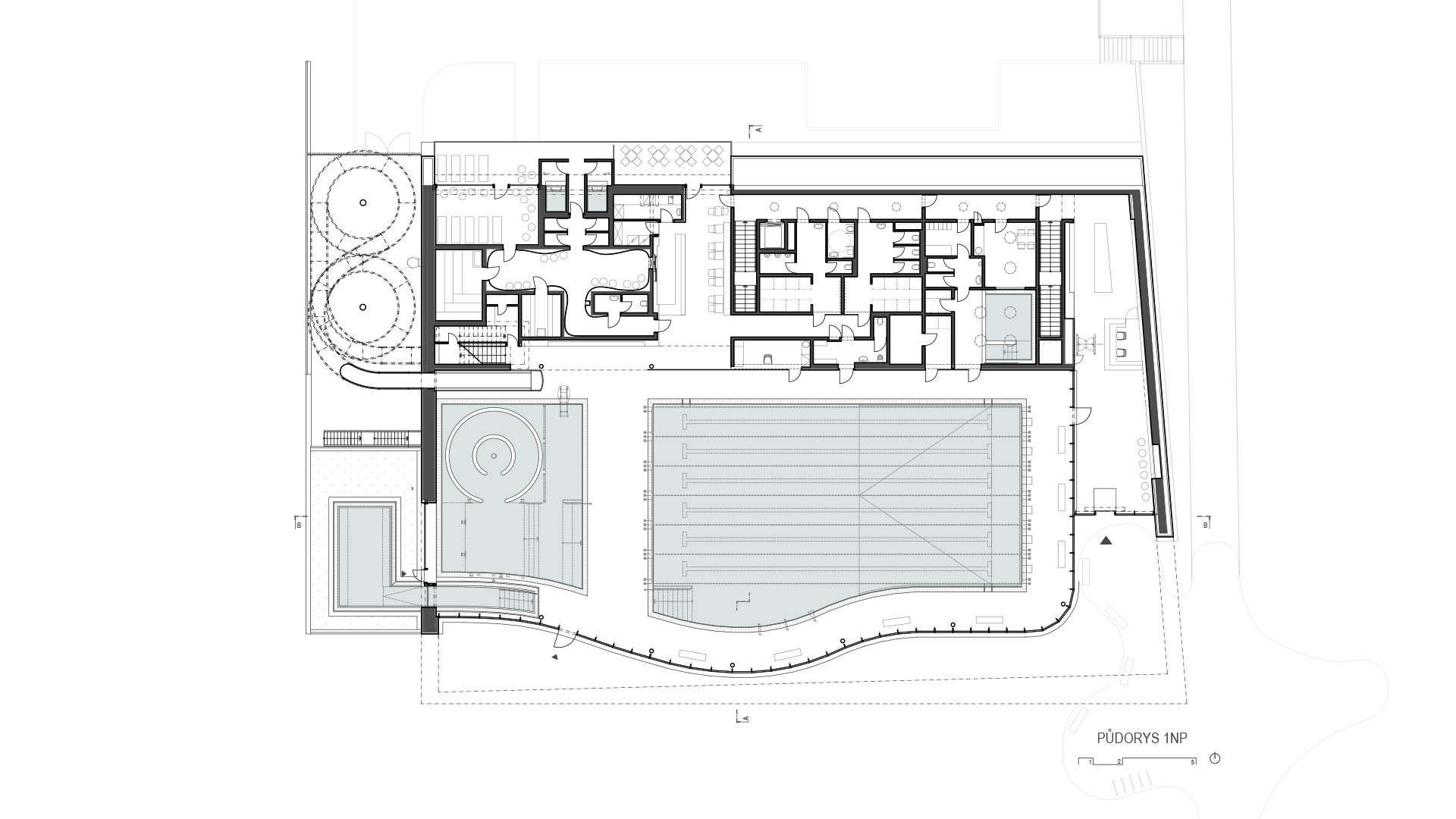
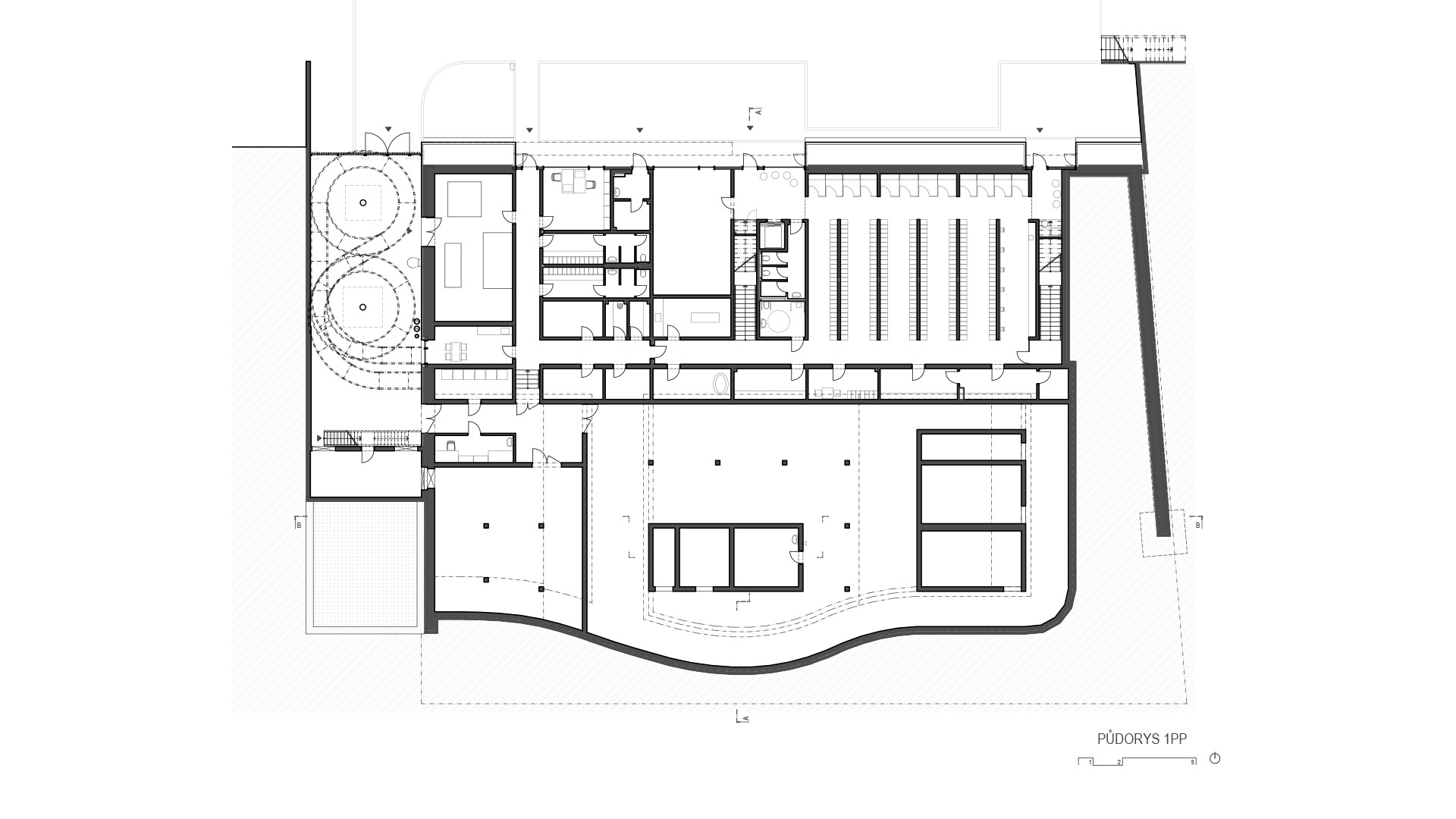
Nová plavecká hala stojí ve svažitém terénu, na situaci reaguje i svým tvarem. „Suterénní část s technologiemi, zázemím a šatnami je přisazena k původnímu terénnímu zlomu. Využitím této místní danosti byla minimalizována potřeba terénních úprav,“ říká architekt. Budova má plochou nakloněnou střechu, kterou jako by vše vyrovnávala. Bazénová hala, která vyplňuje většinu objektu, je díky ní dostatečně vysoká.
David Kudla novou stavbu popisuje jako „černý krystal“, který reaguje na své okolí. Ze tří stran se uzavírá do sebe, z jedné – té největší – se zase kompletně otevírá. Kontrastem k ostrému tvaru, který dohromady skládají obvodové stěny, je zvlněné skleněné průčelí působící jako tenká membrána. Bazénová hala se tudy otevírá do malého parčíku, je do ní kompletně vidět.

Zvenčí je stavba obložená černými hliníkovými deskami. Uvnitř naopak převládla světlá dlažba a modřínová prkna, která nad bazénem tvarují dynamický podhled. Dřevo dále prostupuje i dalšími částmi plavecké haly – je v prostoru pro občerstvení i v saunovém světě. Ten je oproti bazénové hale úplně skrytý, nachází se na opačné straně budovy a ven se propisuje pouze terasami, na které zavítáte, když se chcete ochladit.

Je to právě funkční uspořádání, materiálové provedení a kvalitní zpracování, které ocenili i porotci soutěže Stavba roku 2021. Studio dkarchitekti si za plaveckou halu v Lounech odneslo jeden z udělených titulů.
- Autoři: David Kudla, Filip Malý, Monika Fojtíková
- Ateliér: BoysPlayNice, dkarchitekti
- Země: Česká republika
- Adresa:: Rakovnická 2505, 440 01 Louny
- Projekt: 2017-18
- Realizace: 2020
- Zastavěná plocha: 1612 m²
- Užitná plocha: 2675 m²