
Zahradnictví jako dřevostavba? Proč ne
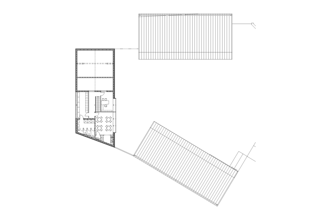
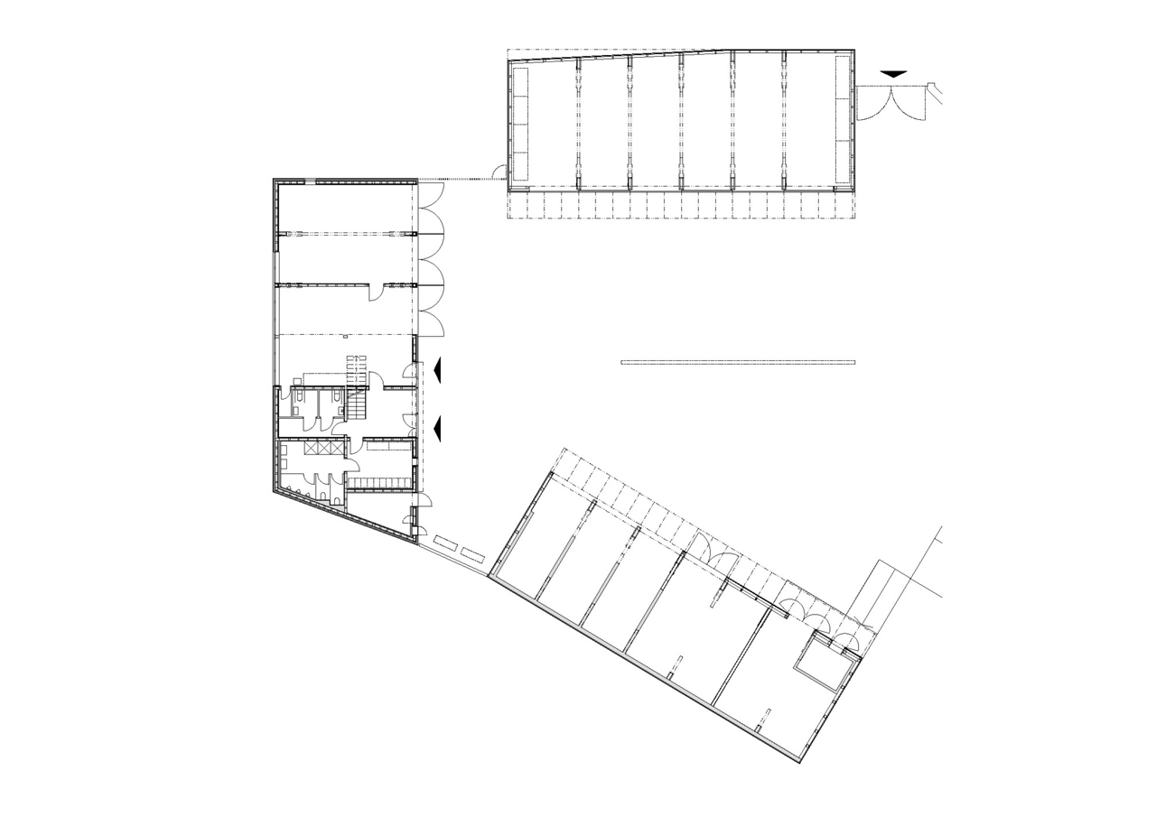
Zahradnictví se nachází v jihozápadní části Podzámecké zahrady kroměřížského zámku na místě původních objektů ze 70.let minulého století. Výstavba nového provozního a skladovacího zázemí zahrady nahrazuje původní staticky narušené objekty, plocha vzniklá prostorovou redukcí zahradnického provozu je přičleněna k návštěvnické části zahrady.
Antonín Novák , 9. 4. 2013
Jedná se o současnou interpretaci tématu hospodářského dvora. V souladu s daným půdorysným konceptem zadání byla zvolena kompozice tří jednoduchých staveb obklopujících centrální dvůr a umístěných ve směrech odpovídajících postupně rostlému „měkkému“ charakteru místa. Jednotlivé stavby svým provedením detailů přiznávají dobu vzniku, současně ale jejich archaický tvar a lapidární konstrukce vytváří atmosféru hospodářských staveb dob minulých.
Při volbě modřínového dřeva jako hlavního materiálu fasád bylo zohledněno přirozené stárnutí materiálu, objekty se tak postupně stanou součástí zámecké zahrady. Objekty jsou navrženy jako lehké zateplené a nezateplené dřevostavby, konstrukční systém vychází ze základního modulu plných vazeb 3,3 metru. Přiznané nosné části jsou navrženy a provedeny jako klasická tesařská krovová konstrukce krovu s čepovanými a šroubovanými spoji, v zateplené dvoupodlažní části je použita rámová konstrukce zavětrovaná plošnými obklady. Založení objektů je navrženo na betonových pasech; část objektů je založena na pilotách, poněvadž po nimi procházejí kanalizační sběrače.
Publikovaný projekt je součástí Salonu dřevostaveb 2013 a je zařazen Ročenky Salonu dřevostaveb. Tu lze zakoupit na www.domesistore.com.
Více k tématu
- Autoři: Antonín Novák, Petr Valenta, Eduard Štěrbák
- Ateliér: Architekti DRNH
- Spolupráce: Radek Štefka, Marie Veselá, Martin Daněk, Radomír Veselý, Zdeněk Sendler, Radka Táborová
- Země: Česká republika
- Stavebník: Národní památkový ústav
- Město: Kroměříž
- Ulice, číslo: Sněmovní nám. 1/2
- PSČ: 737 01
- Suma: 20 000 000.00
- Měna: CZK
- Datum projektu: 2010
- Realizace: 2012
- Zastavěná plocha: 803.00m2
- Foto ©: //www.earch.cz/cs/tomas-maly-0">Tomáš Malý