
Nedaleko centra Brna vznikly bytové domy s výhledem do krajiny jižní Moravy
Rezidence Horní nabízí dostupnou občanskou vybavenost, blízkost města i výhled do zeleně. Její stavbou začala revitalizace největšího brněnského brownfieldu na místě bývalé cihelny. Architekti ji připomněli lícovým cihelným zdivem na fasádě.
EARCH.CZ , 16. 5. 2024 / Advertorial
Bytové domy Horní se nachází v brněnské městská části Štýřice, která díky své poloze a přírodním podmínkám představuje místo pro klidný rodinný život. V blízkosti rezidence je pěšky dostupná veškerá občanská vybavenost, ale také přírodní rezervace Červený kopec.
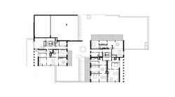
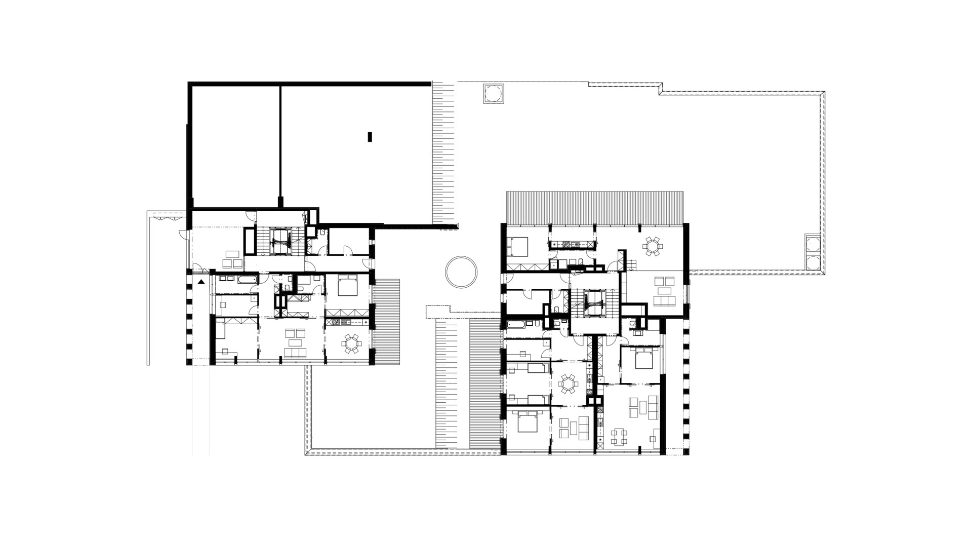
Dva čtyřpodlažní domy vyrůstají ze společného soklu podzemních garáží, na nichž se nachází společná obytná zahrada. Západní objekt má navíc komfortní vstupní předprostor, který připomíná dvůr. Vstup z chodníku vede skrze kolonádu otevřenou do zahrady.
Fasádu tvoří kromě velkých prosklených ploch s textilními stínícími roletami i lícové cihelné pásky, jež odkazují na bývalou největší brněnskou cihelnu Paula Kohna. Ta dlouhé roky formovala charakter Červeného kopce. A právě stavbou těchto bytových domů začíná revitalizace jejího brownfieldu, největšího v Brně.

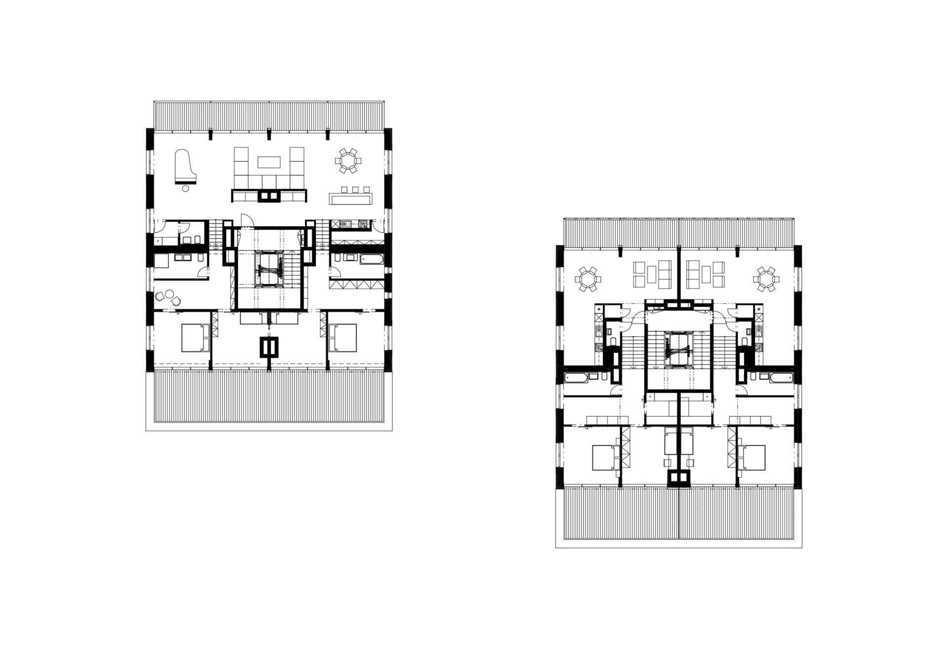
„Dispozice bytů jsou osobité, složené ze čtvercových, dvoukřídlými otvory na celou jejich výšku propojených místností, kterým mohou obyvatelé dle vlastního gusta dávat různé náplně a funkce. Byty tedy téměř bez chodeb nabízí neobvyklou volnost způsobu bydlení,“ říkají o poměrně netradiční dispozici architekti ze studia Pelčák a partner architekti.
Důmyslně orientované obytné pokoje hledí skrze velkoformátová okna a obytné balkony do krajiny Jižní Moravy na východě a vegetace svahů Červeného kopce na západě. Intimní místnosti jako ložnice a koupelny jsou naopak obráceny do stran a poskytují tak dostatek soukromí.
Vše se povedlo dobře sladit také s okolím. Autoři se přitom museli vypořádat s poměrně urbanisticky a morfologicky nejednoduchou situací.

„Domy byly navrženy tři v řadě ve svažitém úseku ulice Horní, v dlouhé proluce mezi řadovými bytovkami ze 60. let na severu a přibližně o dekádu mladším areálem policejní školy na jihu. Ulice k policejnímu areálu stoupá a svažitý terén je rovněž západně od hrany vozovky k vrcholu Červeného kopce,“ popisují lokalitu architekti ze studia Pelčák a partner architekti.
Otevřenou uliční frontu měla původně tvořit trojice vzájemně výškově a půdorysně posunutých solitérních bytových domů. K realizaci třetího objektu ale nedošlo z důvodu nevypořádaného vlastnictví nefunkční redukční stanice plynu.
Více k tématu
Projekt s přesahem
Dvojice bytových domů v Brně od tamního zavedeného ateliéru Pelčák a partner architekti vytváří příjemné prostředí pro rodinný život. Kromě toho započala rozsáhlou revitalizaci brownfieldu cihelny Paula Kohna a vytvořila budoucí uliční frontu ve specifickém prostoru svažité ulice.
- Autoři: Petr Pelčák, Jan Foltýnek, Světlana Kubánková, Miroslava Zadražilová
- Ateliér: Pelčák a partner architekti
- Země: Česká republika
- Město: Brno
- Investor: LERAM estate s.r.o.
- Projekt: 2018
- Realizace: 2023
- Vizualizace: KLOSBRUNECKÝ s.r.o.
- Fotograf: Bořivoj Čapák