
V samém srdci Krkonoš vyrostl hotel navržený v souladu s přírodou
V chráněném území Krkonošského národního parku navrhli architekti ze studia Gebas hotel zahalený do světlého dřeva. Stojí na místě původního penzionu a hostům nabízí odpočinek na čerstvém vzduchu, pobyt v harmonickém prostředí či vodu z nedaleké louky.
EARCH.CZ , 27. 2. 2024 / Advertorial
Objekt se nachází na okraji města Pec pod Sněžkou, lyžařské středisko Černá Hora – Pec je odtud vzdálené jen pár kroků a od nedalekého rozcestníku se dá vyrazit na atraktivní pěší výlety do přírody.
Na návrhu Hotelu Zelený potok v Peci pod Sněžkou začal Gebas Atelier pracovat v roce 2018. Stavbu se podařilo dokončit již v roce 2020, kvůli epidemiologické situaci však uvítal své první návštěvníky až v další sezóně.
Více k tématu
„Úzce jsme spolupracovali s úřady ochrany životního prostředí, vzhledem k tomu, že se pozemek nachází na chráněném území Krkonošského národního parku. Zaměřili jsme se na to, abychom zajistili, že projekt bude v souladu s přírodou a nenaruší nijak toto chráněné území,“ upřesňují filozofii stavby na území KRNAPu architekti.

Dle zadání investora architekti pracovali nejen na rozsáhlém projektu rekonstrukce a proměny původního penzionu „Classic Green Creek“ na hotel vysokého standardu, ale i na novostavbě domu pro zaměstnance. Personál horských chat zde totiž tráví zpravidla celou zimu, a proto pro ně chtěl investor vytvořit místo, kde se budou cítit dobře a budou zde mít vyhovující zázemí. Kolem pozemku byl také vybudován systém opěrných zdí pro vyrovnání terénu.

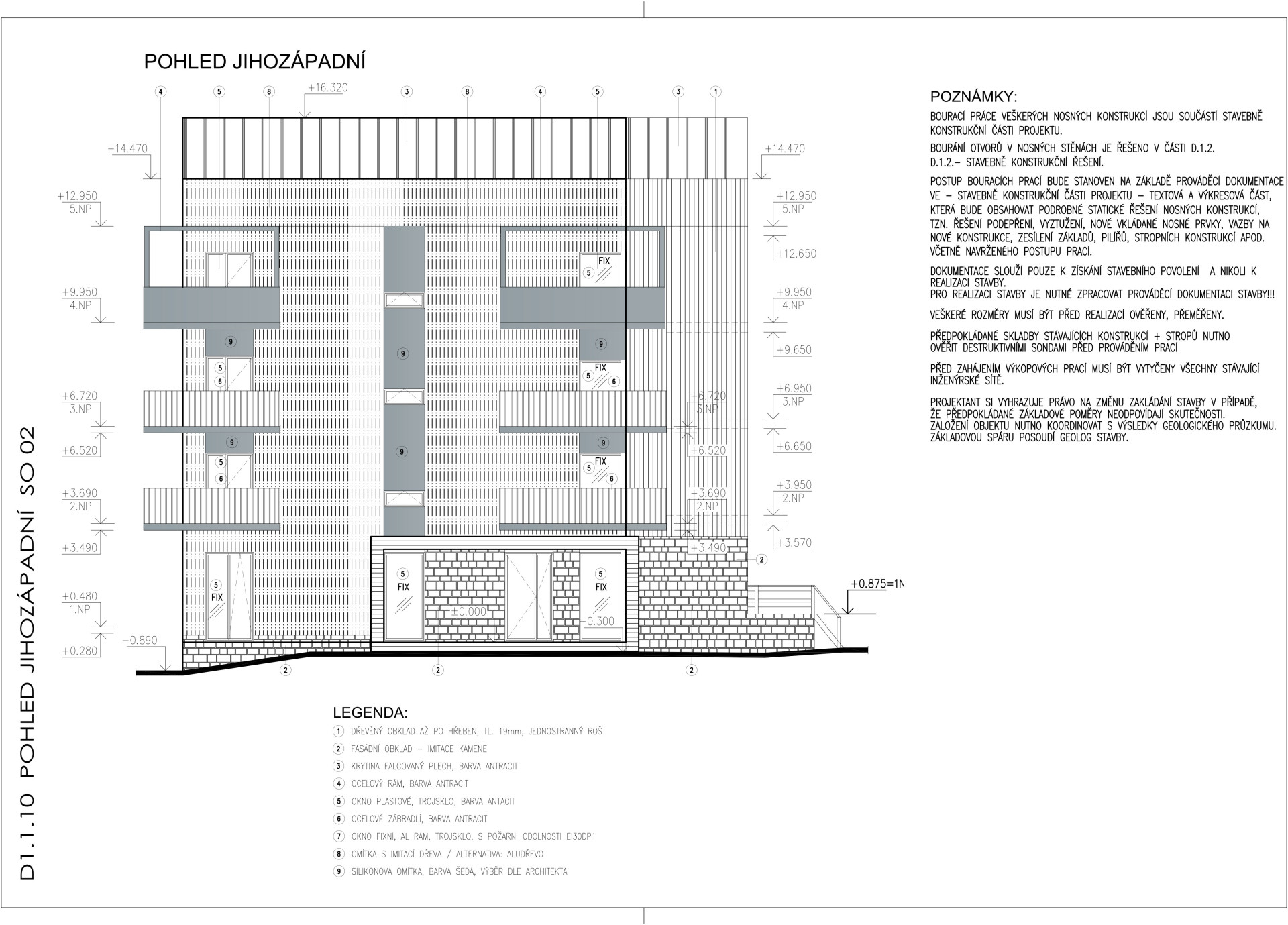
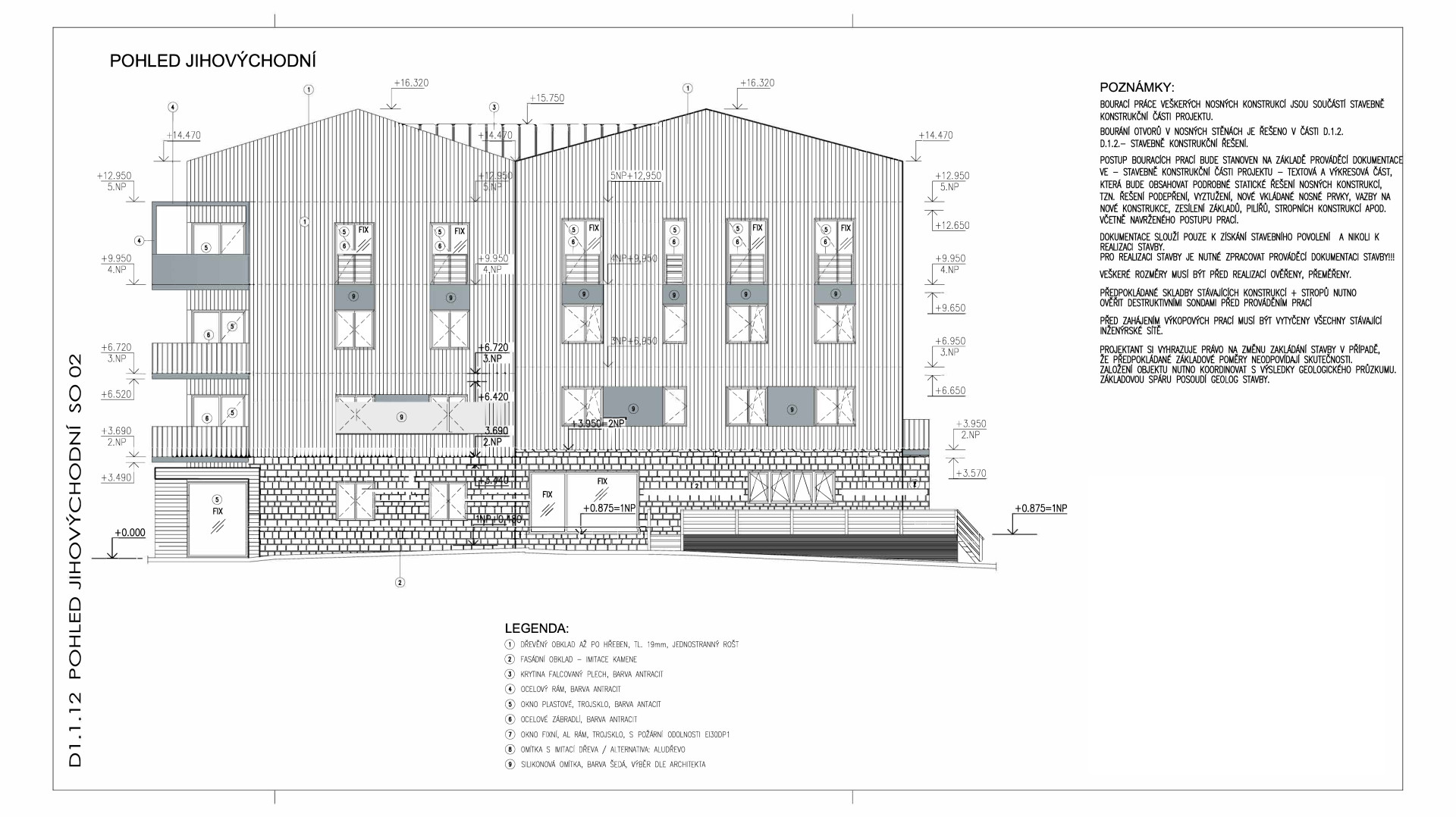
Architektura domu je poměrně jednoduchá. Půdorys tvoří dva přilehlé čtverce o čtyřech nadzemních podlaží a podstřešním prostorem. Pevný základ domu zajišťuje kamenný sokl, na který navazuje dřevěné opláštění s pravidelným rastrem oken. Moderně vyřešené dvě pultové střechy z dáli působí jako archetypální sedlové a díky tomu korespondují s okolní horskou zástavbou.

Hosté mohou kromě dvaceti devíti hotelových či apartmánových pokojů s kuchyní využívat i stylovou restauraci či vybavený club a lounge. Tyto soukromé prostory jsou připravené k pracovním schůzkám i setkávání přátel nad sklenkou vína. Čtyřhvězdičkový hotel neláká jen na klidnou horskou atmosféru, ohromující východy slunce a špičkový personál, ale netradičně i na horskou vodu z nedaleké louky, která se používá v celém objektu.
Na návrhu interiérů se studio Gebas nepodílelo. Navrhla je firma dle volby investora. I přesto se však k exteriérovému charakteru stavby hodí, působí útulně a komfortně. Svým dřevěným dekorem korespondují s venkovní fasádou hotelu.
- Ateliér: GEBAS atelier architects
- Země: Česká republika
- Město: Pec pod Sněžkou
- Projekt: 2018
- Realizace: 2020