Zakusit prostor
První interaktivní výstava o architektuře v Domě umění byla určena jak pro děti, tak pro hravé dospělé. Záživnou formou mohli zažít a vnímat proměny vnitřního prostoru. V Pokojích bylo dovoleno dotýkat se, tvořit, měnit a prožívat prostor po svém.
SKUPINA , 17. 11. 2016
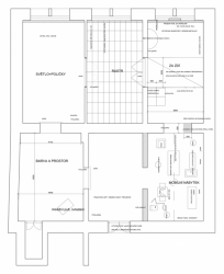
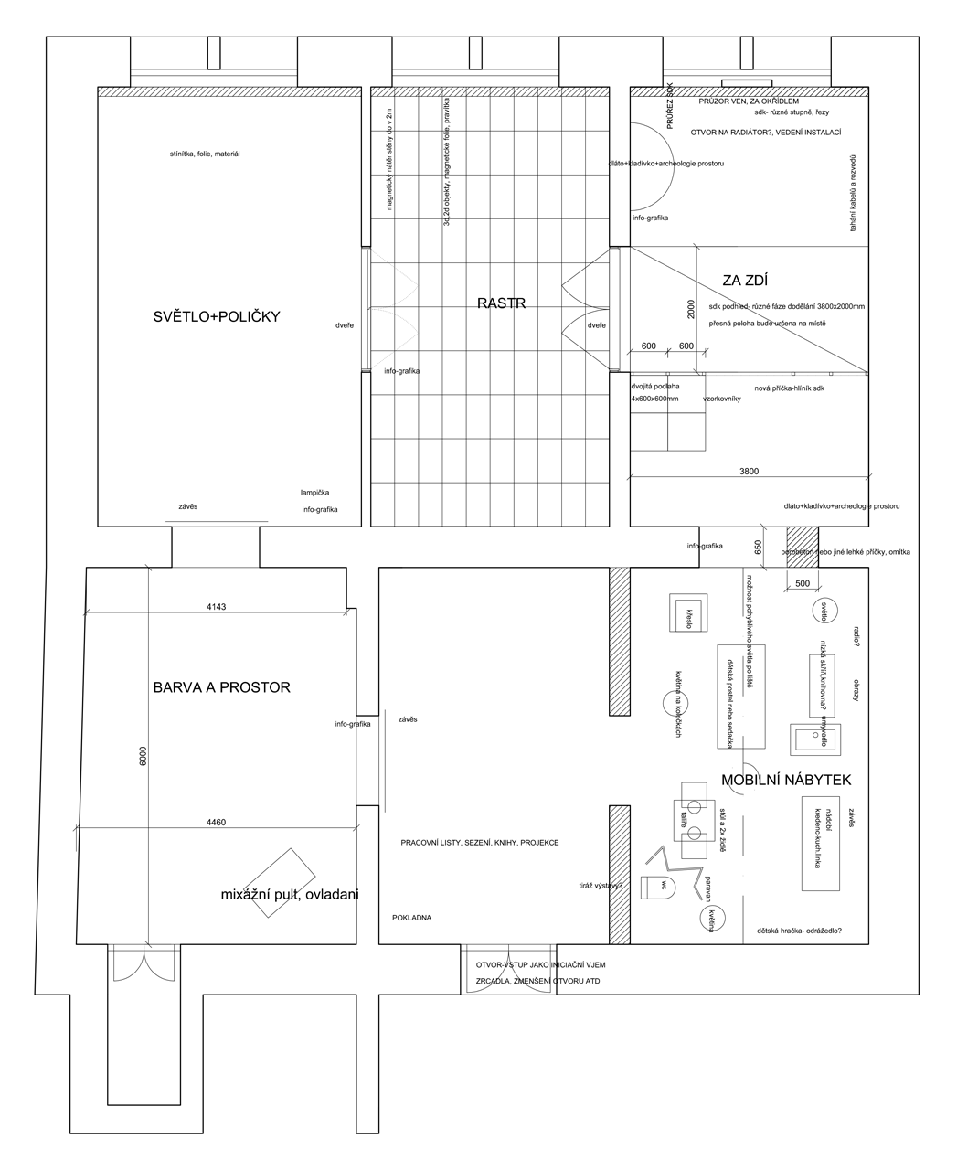
POKOJE / MOŽNOSTI PROSTORU
Prostor galerie se nachází v bývalém obytném domě s výhledem na náměstí. Koncept výstavy se soustředil na prostory, interiéry a mapoval tato témata: barva, světlo, geometrie, konstrukce a vybavení, a to v zásadě v identických místnostech.
Pro tento účel byl upraven prostor galerie podle instalace Tomáše Džadoně k výstavě V. Stratila z roku 2012, kdy zde vytvořil šestou místnost a zakryl okna sádrokartonovou předstěnou. Bylo tak dosaženo téměř identických prostorů, bez vjemu oken.
Samotné místnosti jsou téměř identické svým půdorysem, ale v každé se otevíralo jiné elementární téma. Pokoje byly pojaty co nejvíce minimalisticky, tak, aby každé téma působilo co nejintenzivněji a svébytně.
Skrze úvodní vstupní a studijní jednoduše pojatou místnost se návštěvník ponořil do témat dalších 5 pokojů. První pokoj byl BARVA. Pomocí barevných světel mohl návštěvník proměňovat barevné působení prostoru a zkoumat působení barev na tělo či duši. Ovládat je šlo jednoduchým ovladačem.
Navazoval pokoj SVĚTLO. Návštěvník se jemně dotýkal mobilních svítidel nainstalovaných v prostoru volně, na poličkách či na pohyblivých stojáncích v bílé barvě. Vše bylo pohyblivé a proměnlivé. Mohl zkoumat jak působení umělého světla a porovnat ho se světlem denním, či si mohl zkusit vytvořit intimní atmosféru a zkoumat působení světla odrazem. Mohl též využít připravená stínítka k tvorbě různých atmosfér.
Skrze nové dveře se návštěvník dostal do jiného prostoru, zaměřeného na GEOMETRII a měřítko. Po celé bílé místnosti, včetně stropu i podlahy, byla aplikována černá síť/rastr, která prostor značně proměňovala a na návštěvníka silně působila. Stěny byly natřeny magnetickou barvou, a tak zde bylo možné pomocí černých a bílých fólii přidávat či naopak zakrývat jednotlivé linie, a tak měnit prostorovou iluzi místnosti.
Skrze zavřené dveře se návštěvník dostal do pokoje ZA ZDÍ a zde zkoumal, co je za konstrukcemi a jaké jsou tu povrchy. To, co je běžně součástí interiéru, zde bylo odkryto. Původní historické konstrukce se zde potkávaly s novodobě používanými konstrukcemi i doplňky. Návštěvník zde odkrýval různé vrstvy předchozích výstav a stával se tak archeologem Domu umění. Díky magnetickým vzorkům si bylo možné namíchat smysluplné i nelogické vzorky na podlaze i stěně kovových konstrukcí. Za průsvitným závěsem se pak objevil poslední pokoj NÁBYTEK, vybavení malého bytu či garsoniéry dětského měřítka v bílé barvě a na kolečkách. Tvořily se zde různé dispozice, plány. Vybavení pokoje bylo určeno pro nejmenší.
V prostoru nebyla nastavena přesná pravidla či odkazováno k jednomu správnému řešení. Otevíral se tu především prostor k vlastnímu prožívání a ověřování si vlivu různých elementů, které na nás v prostoru působí.
- Ateliér: SKUPINA
- Autoři: Marcela Steinbachová, Barbora Škaloudová
- Spolupráce: Rastislav Juhás
- Země: Česká republika
- Město: České Budějovice
- Ulice, číslo: náměstí Přemysla Otakara II. 38
- PSČ: 370 01
- Realizace: 2015
- Užitná plocha: 157.00m2
- Foto ©: Jan Mahr
