Architektura
/
interiér
Žižkovský byt s ovály
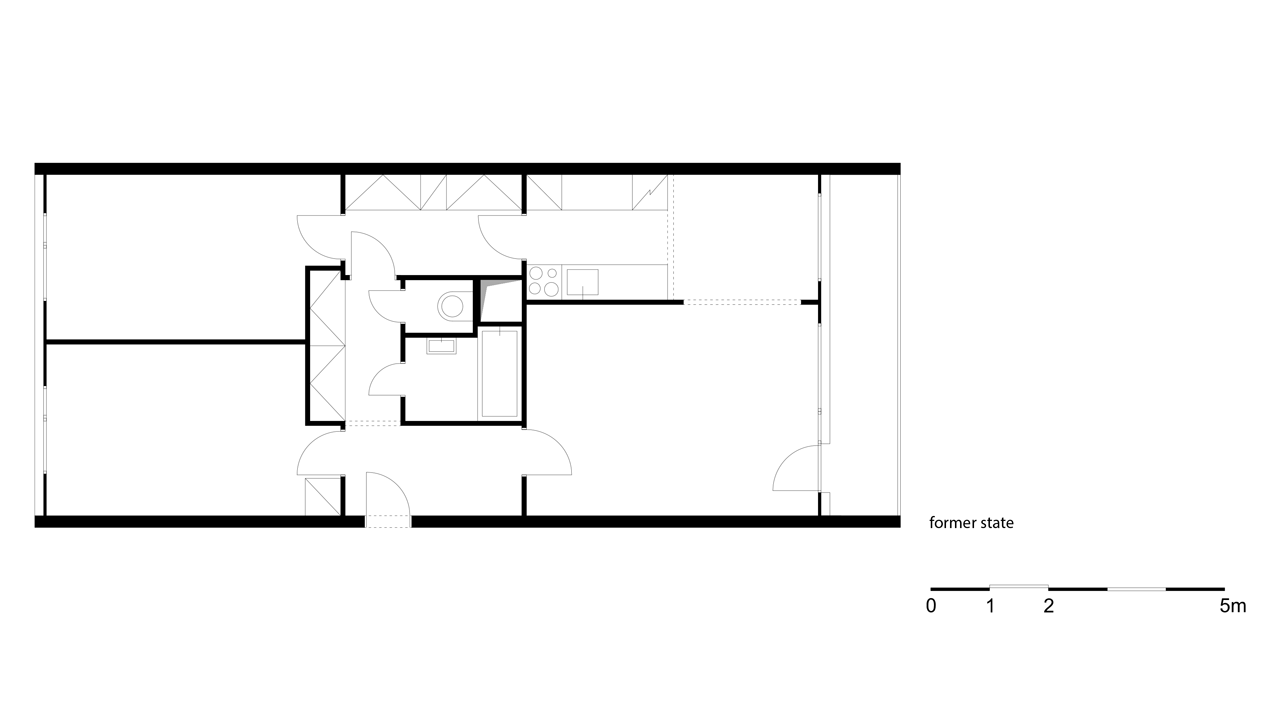
Spolupracovat s pražským ateliérem pod vedením Markéty Zdebské je radost. Jako klientovi vám stačí málo – párkrát se s architekty setkat osobně a několikrát si zavolat či napsat. A výsledek? Neotřelý půdorys panelákového bytu, ve kterém nechybí ani vnitřní okno. Musí se zde bydlet dobře.
BY architects , 12. 7. 2016
Více k tématu
- Autoři: Markéta Zdebská
- Ateliér: BY architects
- Spolupráce: Pavla Hradilová, Jana Horecká, Marek Žáček
- Země: Česká republika
- Realizace: 2016
- Město: Praha 3 - Žižkov
- Datum projektu: 2015
- Realizace: 2016
- Užitná plocha: 73.00m2
- Poznámka: Foto © Aleksandra Vajd