Tyrkysová pro matku, šedivá pro syna. Z panelákového bytu je po rekonstrukci dvougenerační bydlení
Může být z bytu v panelovém domě prostor klientům na míru? Architektka Markéta Janderová ukázala, že ano. Pomocí změny dispozic a využitím netradičních funkčních prvků i výrazné barevnosti se jí podařilo vytvořit prostor, který plně odpovídá potřebám jeho obyvatel – matky s dospívajícím synem.
Markéta Růžičková , 6. 1. 2026
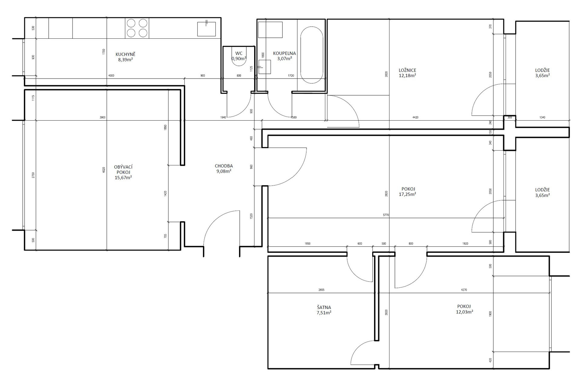
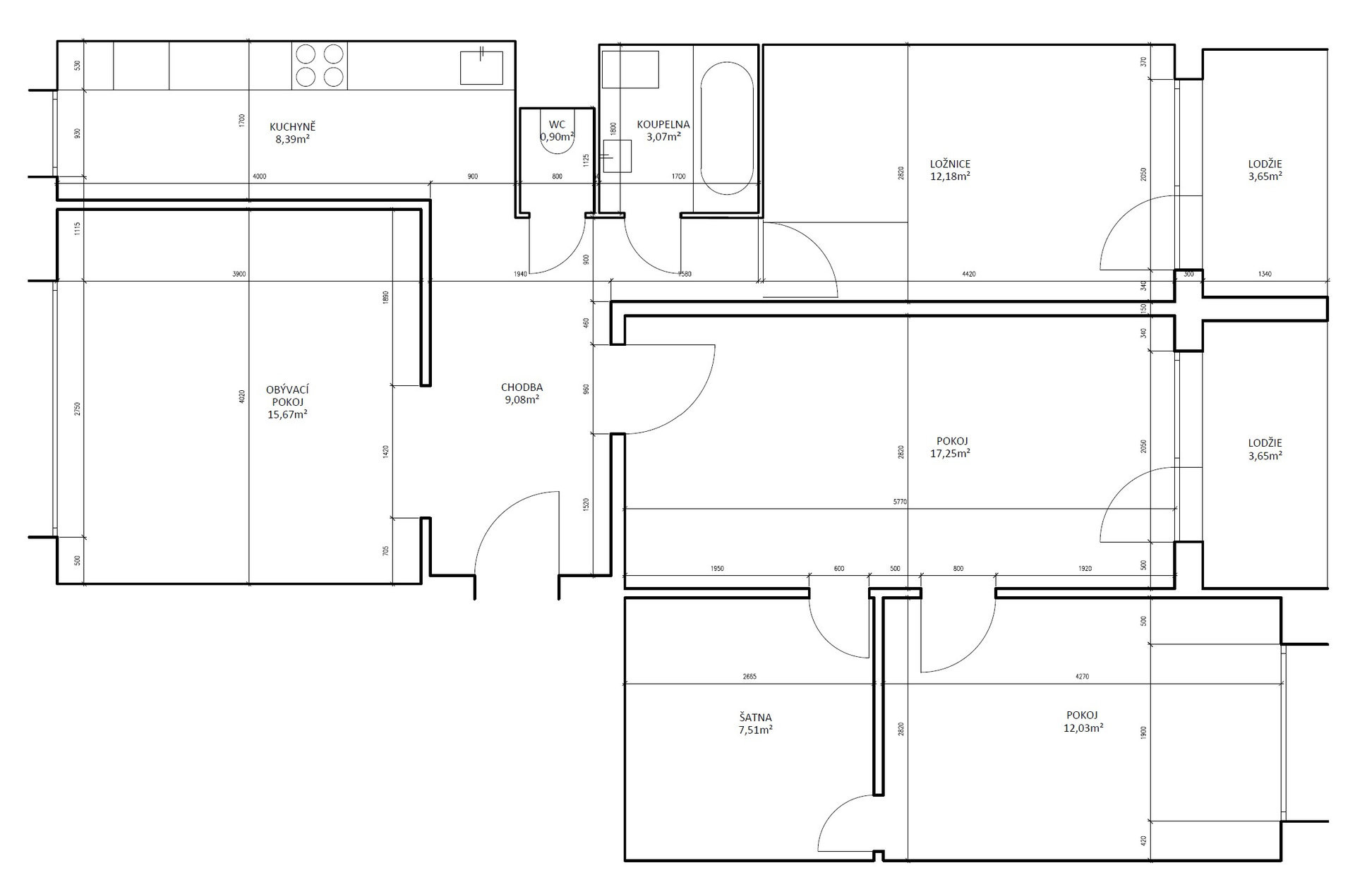
Po patnácti letech od posledních úprav působil byt v panelovém domě zastarale a nevyhovoval představám klientů. Proto se rozhodli oslovit architektku Markétu Janderovou s přáním na kompletní rekonstrukci tak, aby měli oba dostatek soukromí a zároveň pohodlný společný prostor.

„Při návrhu jsme řešili i změnu dispozic. V bývalé komoře jsme vytvořili druhou koupelnu. Nyní je byt přizpůsoben současným potřebám klientů, zároveň ale počítá s budoucí variabilitou odpovídající dvougeneračnímu bydlení,“ vysvětluje architektka. Velkou změnou však není pouze nové, praktičtější uspořádání. Jednotlivé části bytu se odlišují i barevně. Pro hlavní obytný prostor a ložnici majitelky je ústředním motivem tyrkysová, kterou doplnila růžová. „Když jsme se s paní klientkou bavily o její představě barevnosti, ukazovala mi barvy, které má ráda ve svém šatníku, na módních doplňcích, špercích... Velmi často se tam objevovala tyrkysová v kombinaci s růžovými odstíny, což se přirozeně promítlo do návrhu interiéru,“ vzpomíná Markéta Janderová.
Kuchyňská linka podle šály
Hlavním setkávacím místem bytu se stal prostorný obývací pokoj s kuchyňským koutem, který vznikl odstraněním příčky. „Kuchyň je přesně v barvě oblíbené šály klientky.

Jezdili jsme s ní vzorkovat odstíny obkladů, výmaleb i nábytku,“ usmívá se architektka a dodává: „Syn paní klientky si naopak ve svém prostoru barvy nepřál a upřednostňoval spíš tmavší ladění. Proto má každý svoji soukromou část uzpůsobenou svým představám. S ohledem na případné změny jsme ale nechali jednotné všechny stavebně spjaté materiály - v celém bytě je stejná dubová podlaha, dlažba, zařizovací předměty koupelen, luxfery i kompletace elektro, což umožňuje variabilitu do budoucna.“

Skleněná příčka jako praktický i estetický prvek
Byt je celkově světlý, pokoje jsou orientovány na východ a západ. Architektka navíc do středu dispozice přivedla denní světlo pomocí luxfer a prosklené příčky mezi obývacím pokojem a vstupní chodbou. Příčka se stala jednou z dominant nového prostoru. Také její konstrukce je řešena v tyrkysové barvě a vyplněna je tabulkami tlačeného skla. Mimo to, že do interiéru přináší více světla, funguje díky šatní tyči a polici i jako odkládací prostor.

Spojovacím článkem obou částí bytu je chodba, která skrývá společné zázemí - další úložné prostory, úklidovou skříň a pračku se sušičkou. Nábytek na míru se tu z ekonomických důvodů řešil úpravami typových prvků. Zakoupené korpusy a regály byly doplněny truhlářsky vyrobenými komponenty, aby odpovídaly konkrétním rozměrům a požadavkům.
Více k tématu
Konečně mají klienti v bytě každý své vysněné soukromí. A jak se jim bydlí „v novém“? „Asi po roce od dokončení stavebních prací jsem se s investory setkala na focení a říkali, že se jim bydlí příjemně. Bylo hezké vidět, jak se byt postupně zabydluje,“ uzavírá architektka.
- Autoři: Markéta Janderová
- Země: Česká republika
- Adresa: Praha 4
- Realizace: 2024
- Užitná plocha: 95 m2
- Fotograf: Natálie Baumanová, Markéta Janderová