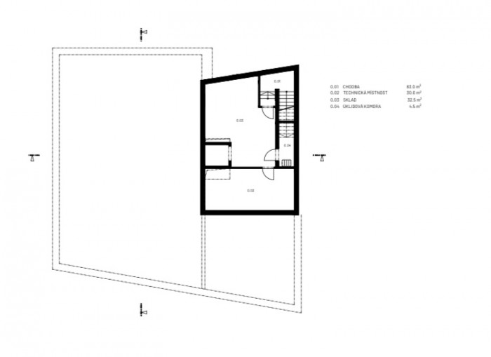
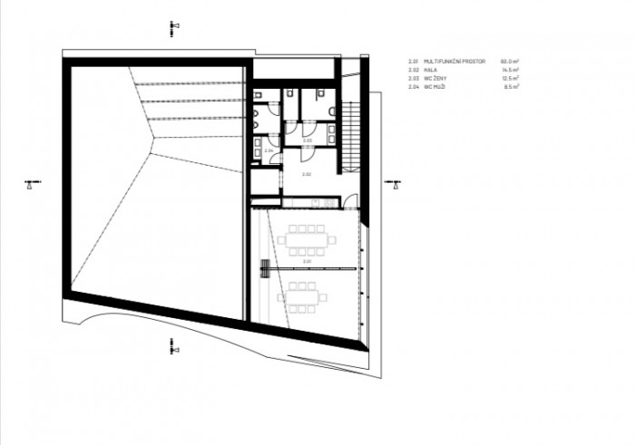
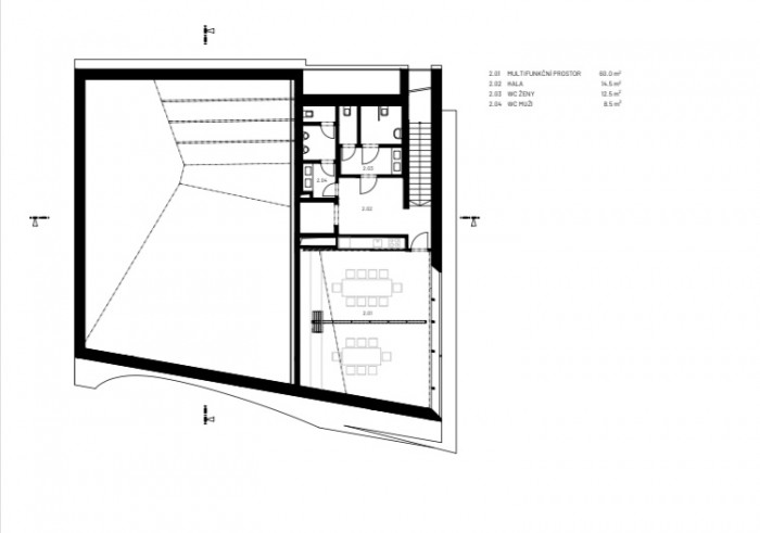
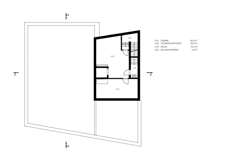
A8000 - Společenské centrum Sedlčany

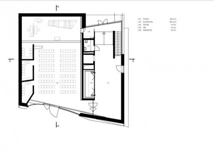
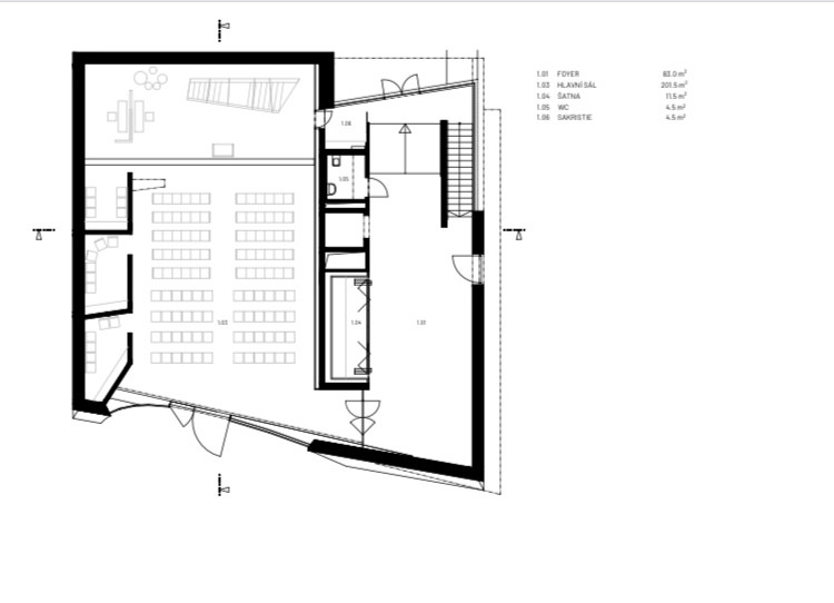
Společenské centrum je zasazeno do těsné blízkosti historického centra středočeských Sedlčan, jižně od Prahy. Tvoří jej soubor dvou staveb vytvářejících přirozený přechodník mezi historickou blokovou strukturou města a rozvolněnou zástavbou. Bytový dům zakončuje linii uliční čáry a vytváří nárožní objekt. Mírně ustoupená solitérní budova modlitebny je pootočena svým těžištěm směrem k centru města a zároveň uzavírá a orientuje nový městský park. Pro bytový dům a modlitebnu jsou použity dva rozdílné přístupy, kde tradičněji pojatý bytový dům je svým výrazem a kompozicí podřízen objektu modlitebny a vytváří pro ni kvalitní prostor. Pojednán je jako jednoduchá až strohá forma, která se k výraznému tvaru modlitebny odkazuje sešikmenou rovinou v zadním partu. 

Foto: Společenské centrum Sedlčany, A8000/ Martin Krupauer, Pavel Kvintus, Daniel Jeništa, Stanislava Blažková

Tvar modlitebny vychází z průniku krystalické formy s organickým tvarem křivky. Pevná hmota, složená z jednotlivých ploch a linií pevně spojená se zemí symbolizuje vymezený prostor života. Křivka jako měkký organický prvek, představuje spontánnost a dynamiku života – křivka, jež nás vyvádí z rovnováhy pevné formy. Duchovní rozměr charakteru objektu je vyjádřen vertikální kompozicí světla, velkorysé prosklené plochy nad kazatelnou. Konstrukčně je modlitebna tvořena trojicí vzájemně do sebe zapřených betonových desek. Fasáda modlitebny je provedena z tahokovu. Pod něj je umístěna červená folie a spolu utváří výsledný barevný efekt. V průběhu dne modlitebna mění svou barevnost v závislosti na intenzitě a směru slunečního světla. Barevnost rovněž ovlivňuje vzdálenost modlitebny. V její blízkosti vnímáme více červenou barvu, naopak když se vzdalujeme, převládá stříbrná barva.

Foto: Společenské centrum Sedlčany, A8000/ Martin Krupauer, Pavel Kvintus, Daniel Jeništa, Stanislava Blažková

Vnitřní prostor je v podélném směru rozdělen svislými stěnami, v příčném směru jsou stěny naopak šikmé. Kompozičně hlavní sál graduje nad nejdůležitějším liturgickým prvkem – křtitelnicí, srdcem celé modlitebny. Sochařka Jaroslava Kadlecová pojala samotný tvar křtitelnice jako přepis liturgického úkonu křtu. Boční kaple v levé části sálu vytvářejí převýšené prostory pro intimnější liturgii. Naopak velkoryse pojednaný ceremoniální vstup, v zadní části hlavního sálu, vyjadřuje otevřenost prostoru a stírá hranu mezi exteriérem a interiérem. Atmosféra modlitebny je umocněna zvolenými materiály. Kombinace bílých ploch podlahy, stěn a stropu se světlým dřevem interiéru je dána do kontrastu s vnějším vzhledem. Dobrou akustiku hlavního sálu zajištuje zvolený materiál dřevěného obkladu. Ukrývá v sobě jednotlivé vrstvy pohlcující zvukové vlny. Pod samotným akustickým obkladem jsou rovněž umístěny technologie vzduchotechniky a chlazení. 

  • Autoři: Martin Krupauer, Pavel Kvintus, Daniel Jeništa, Stanislava Blažková
  • Země: Česká republika
  • Realizace: 2019
  • Generální dodavatel: HSF systém a.s.
  • Město: Sedlčany
  • Ulice, číslo: Tyršova
  • PSČ: 264 01
  • Datum projektu: 2017
  • Realizace: 2019
  • Sochařka: Jaroslava Kadlecová
  • Krajinář: F.L.E.R.A
  • Investor: Maranatha, z. s.
  • Dodavatel interiéru: Tecnoline s.r.o.
Generální partner
Hlavní partneři