A8000 - Pavilon Z
 
                                
                                Hmotová kompozice architektury, založena na třech zvětšujících se kvádrech je základním principem, který byl ale postupem času potlačen a znepřehledněn. Návrh obnovy pavilonu jej znovu navrací, jasně definuje a dále rozvíjí. Část pavilonu je odstrojena, odhalena je jeho konstrukční podstata. Zvolenou kompozicí pevné a průhledné formy vyjadřujeme nové uspořádání objektu, kde pravou část uzavíráme, naopak levá je pojata maximálně volně, vzdušně. Přeměna v sofistikovaně řízený objekt není skryta je přiznána venkovním technologickým objektem.
- Autoři: Martin Krupauer, Pavel Kvintus, Daniel Jeništa, Petr Hornát
- Ateliér: A8000
- Spolupráce: Anežka Vonášková, Jaroslav Kedaj
- Země: Česká republika
- Město: České Budějovice
- Projekt: 11/2019–04/2021
- Realizace: 12/2020–09/2021
- Zastavěná plocha: 2 400 m²
- Užitná plocha: 3 200 m²
- Obestavěný prostor: 28 500 m³
- Celkově náklady: 141 milionů Kč
- Architektonicko-stavební řešení: Zdeněk Fux, Milan Oktabec, Ladislav Krlín
- Dodavatel stavby: OHLA ŽS, a.s
- Technický dodavatel: ŠTROB & SPOL., s.r.o.
- Statika: STATIKON Solutions s.r.o.
Související projekty
Související architekti
Související ateliéry a firmy
Mohlo by vás zajímat
 
				
					Přestavba pavilonu Z v Českých Budějovicích od studia A8000
                                            Foto: Ondřej Bouška
                    					1/51
				
			 
				
					Přestavba pavilonu Z v Českých Budějovicích od studia A8000
                                            Foto: Ondřej Bouška
                    					2/51
				
			 
				
					Přestavba pavilonu Z v Českých Budějovicích od studia A8000
                                            Foto: Ondřej Bouška
                    					3/51
				
			 
				
					Přestavba pavilonu Z v Českých Budějovicích od studia A8000
                                            Foto: Ondřej Bouška
                    					4/51
				
			 
				
					Přestavba pavilonu Z v Českých Budějovicích od studia A8000
                                            Foto: Ondřej Bouška
                    					5/51
				
			 
				
					Přestavba pavilonu Z v Českých Budějovicích od studia A8000
                                            Foto: Ondřej Bouška
                    					6/51
				
			 
				
					Přestavba pavilonu Z v Českých Budějovicích od studia A8000
                                            Foto: Ondřej Bouška
                    					7/51
				
			 
				
					Přestavba pavilonu Z v Českých Budějovicích od studia A8000
                                            Foto: Ondřej Bouška
                    					8/51
				
			 
				
					Přestavba pavilonu Z v Českých Budějovicích od studia A8000
                                            Foto: Ondřej Bouška
                    					9/51
				
			 
				
					Přestavba pavilonu Z v Českých Budějovicích od studia A8000
                                            Foto: Ondřej Bouška
                    					10/51
				
			 
				
					Přestavba pavilonu Z v Českých Budějovicích od studia A8000
                                            Foto: Ondřej Bouška
                    					11/51
				
			 
				
					Přestavba pavilonu Z v Českých Budějovicích od studia A8000
                                            Foto: Ondřej Bouška
                    					12/51
				
			 
				
					Přestavba pavilonu Z v Českých Budějovicích od studia A8000
                                            Foto: Ondřej Bouška
                    					13/51
				
			 
				
					Přestavba pavilonu Z v Českých Budějovicích od studia A8000
                                            Foto: Ondřej Bouška
                    					14/51
				
			 
				
					Přestavba pavilonu Z v Českých Budějovicích od studia A8000
                                            Foto: Ondřej Bouška
                    					15/51
				
			 
				
					Přestavba pavilonu Z v Českých Budějovicích od studia A8000
                                            Foto: Ondřej Bouška
                    					16/51
				
			 
				
					Přestavba pavilonu Z v Českých Budějovicích od studia A8000
                                            Foto: Ondřej Bouška
                    					17/51
				
			 
				
					Přestavba pavilonu Z v Českých Budějovicích od studia A8000
                                            Foto: Ondřej Bouška
                    					18/51
				
			 
				
					Přestavba pavilonu Z v Českých Budějovicích od studia A8000
                                            Foto: Ondřej Bouška
                    					19/51
				
			 
				
					Přestavba pavilonu Z v Českých Budějovicích od studia A8000
                                            Foto: Ondřej Bouška
                    					20/51
				
			 
				
					Přestavba pavilonu Z v Českých Budějovicích od studia A8000
                                            Foto: Ondřej Bouška
                    					21/51
				
			 
				
					Přestavba pavilonu Z v Českých Budějovicích od studia A8000
                                            Foto: Ondřej Bouška
                    					22/51
				
			 
				
					Přestavba pavilonu Z v Českých Budějovicích od studia A8000
                                            Foto: Ondřej Bouška
                    					23/51
				
			 
				
					Přestavba pavilonu Z v Českých Budějovicích od studia A8000
                                            Foto: Ondřej Bouška
                    					24/51
				
			 
				
					Přestavba pavilonu Z v Českých Budějovicích od studia A8000
                                            Foto: Ondřej Bouška
                    					25/51
				
			 
				
					Přestavba pavilonu Z v Českých Budějovicích od studia A8000
                                            Foto: Ondřej Bouška
                    					26/51
				
			 
				
					Přestavba pavilonu Z v Českých Budějovicích od studia A8000
                                            Foto: Ondřej Bouška
                    					27/51
				
			 
				
					Původní stav. Zdroj: STATIKON
                                            Foto: Ondřej Bouška
                    					28/51
				
			 
				
					Původní stav. Zdroj: STATIKON
                                            Foto: Ondřej Bouška
                    					29/51
				
			 
				
					Axonometrie konstrukčního modelu
                                            Foto: A8000
                    					30/51
				
			 
				
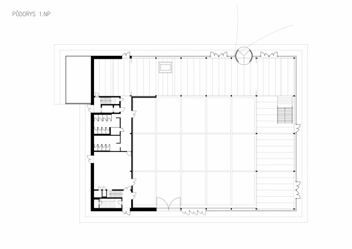
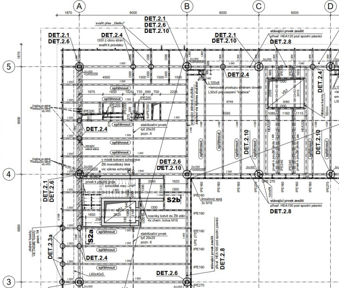
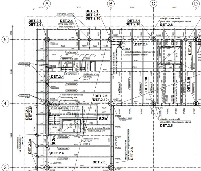
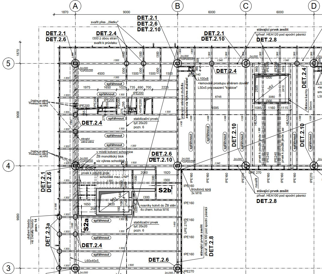
					Půdorys 1NP
                                            Foto: A8000
                    					31/51
				
			 
				
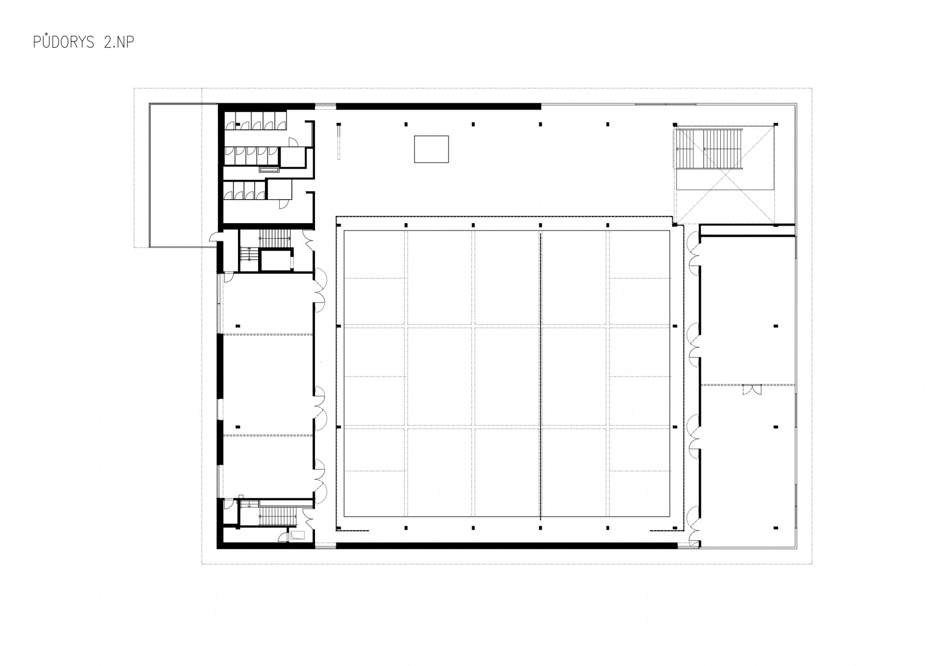
					Půdorys 2NP
                                            Foto: A8000
                    					32/51
				
			 
				
					Řez - podélný
                                            Foto: A8000
                    					33/51
				
			 
				
					Řez - příčný
                                            Foto: A8000
                    					34/51
				
			 
				
					Pohled - východ
                                            Foto: A8000
                    					35/51
				
			 
				
					Pohled - jih
                                            Foto: A8000
                    					36/51
				
			 
				
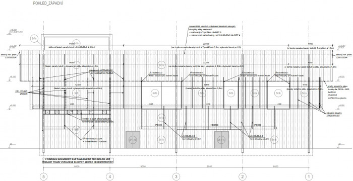
					Pohled - západ
                                            Foto: A8000
                    					37/51
				
			 
				
					Pohled - sever
                                            Foto: A8000
                    					38/51
				
			 
				
					Situace
                                            Foto: A8000
                    					39/51
				
			 
				
					Konstrukce střechy - severovýchodní roh
                                            Foto: A8000
                    					40/51
				
			 
				
					Konstrukce střechy - řez světlíku
                                            Foto: A8000
                    					41/51
				
			 
				
					Napjatost kombinovaného rámovo-příhradového příčného ztužidla při zatížení větrem (deformovaný tvar)
                                            Foto: A8000
                    					42/51
				
			 
				
					Napjatost střešních vazníků v programu Scia Engineer
                                            Foto: A8000
                    					43/51
				
			 
				
					Ocelové schodiště - řez, 1NP
                                            Foto: A8000
                    					44/51
				
			 
				
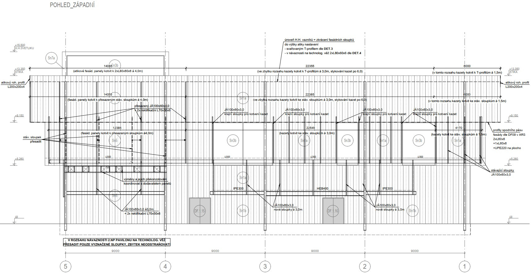
					Pohled západní - detail
                                            Foto: A8000
                    					45/51
				
			 
				
					Pohled západní
                                            Foto: A8000
                    					46/51
				
			 
				
					Stěnová ztužidla
                                            Foto: A8000
                    					47/51
				
			 
				
					Stěnová ztužidla
                                            Foto: A8000
                    					48/51
				
			 
				
					Stěnová ztužidla
                                            Foto: A8000
                    					49/51
				
			 
				
					Skladba stropu 1NP
                                            Foto: A8000
                    					50/51
				
			 
				
					Skladba stropu 1NP
                                            Foto: A8000
                    					51/51
				
			 
                             
                             
                             
                             
                             
                                 
                             
                             
                             
                             
                             
                             
                             
                             
                             
                             
                             
                             
                             
                             
                             
                             
                             
                             
                             
                             
                             
                             
                             
                             
                             
                             
                             
                             
                             
                             
                             
                             
                             
                             
                             
                             
                             
                             
                             
                             
                             
                             
                             
                             
                     
                     
             
             
             
             
            		 
            		 
            		 
            		 
            		 
                                                                                                             
                                                         
                                                         
                                                                                                             
                                                         
                                                         
                    