ADHJ - Rekonstrukce měšťanského domu v Příboře

Bohatá historie a architektonický vývoj domu sahá dle písemných záznamů až do r. 1570, do místa zvaného Grebabark, části středověkého městiště, dnes ulice Místecká. Dům je součástí řadové obytné zástavby jakožto pokračováním východní fronty domů na příborském náměstí. Parcela domu se nachází na terénu svažitém jednak ve směru ulice, tak i ve směru hloubky domu od hlavního průčelí do dvorní části k zadnímu domu, který je nedílnou součástí. Tato svažitost a výškové rozdíly terénu dělají dům ještě více zajímavým. Samotný řešený dům s dvorním křídlem, nádvoří a zadní dům tvoří jeden komplex působící jako jakýsi „rostlý hrad“.
Původně byl dům s dochovaným renesančním jádrem jednopatrový orientovaný štítem do ulice. Novodobá historizující přestavba spojena s nástavbou druhého patra a tudíž i nasazením nové sedlové střechy o nízkém sklonu a hřebenem otočeným o 90°, se datuje rokem 1863. Tato přestavba společně s přefasádováním objektu byla provedena dle projektu stavitele Kašpara Karlsedera. V roce 1898 přišla řada na druhou velkou přestavbu domu tentokrát dle projektu stavitele Bedřicha Karlsedera, syna Kašpara Karlsedera, kdy byla zbourána dělící zeď a valená klenba nad pravou místností a tím zanikla ulička mezi tímto a sousedním domem, která umožňovala zkrácení cesty z náměstí do ulice V Kopci. Touto změnou byla naplněna potřeba nového užívání v přízemí domu. Vznikly dva prodejní prostory-krámky s dřevěnými historizujícími výkladci.
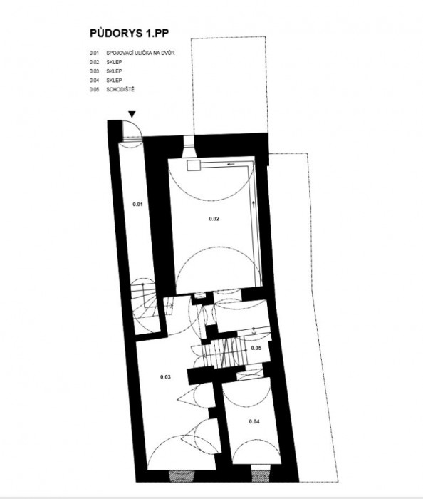
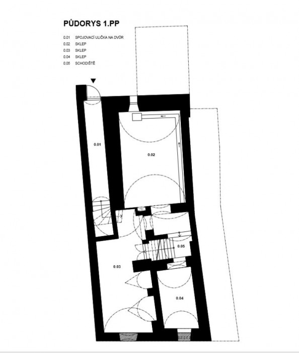
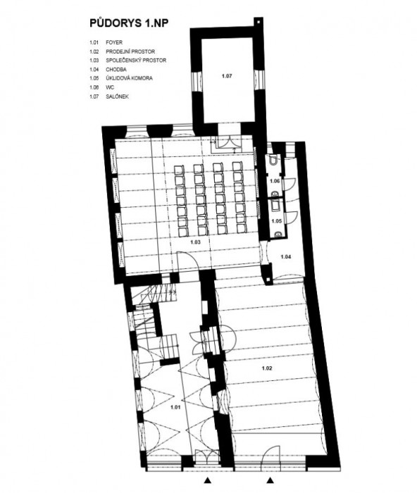
Řešený měšťanský dům je chráněnou kulturní památkou. Navrhli jsme celkovou rekonstrukci, díky které byl dům očištěn od nežádoucích destruktivních zásahů z 80. let 20. století, a byly v maximální míře obnoveny mnohé původní prvky v souladu s památkovou péčí. Garáž a dílny pro elektrikáře a natěrače v rámci tehdejších komunálních služeb, se proměnily ve společenské prostory s využitím pro konání komorních koncertů, přednášek, výstav, apod. Zrušením temné komory na levé straně u hlavního průčelí získal dům důstojný vstupní foyer a zároveň uvolněný komunikační uzel – nejstarší dochovaný prostor zaklenut valenou klenbou s lunetami a vydlážděn oblázkovou mozaikou. Obytná patra získala vylepšená dispoziční řešení.
V průběhu provádění stavebně historického průzkumu a vlastních stavebních prací byly odhaleny autentické významné prvky jako například valounková dlažba, kamenná ostění, portály, zděné klenuté niky s kamennými hlavicemi, dřevěné stropní trámy, nástěnné malby z období pozdního baroka, které byly následně zrestaurovány. V uličním průčelí domu byly namísto stávajících garážových vrat a zazděných otvorů realizovány dle dobových fotografií dřevěné výkladce, které způsobily výraznou proměnu objektu. Stávající obnovené konstrukce jsou z hlediska funkčního a estetického doplněné novými, kdy bylo použito jak tradičních materiálů - dřevo, kámen, omítky, tak materiálů moderních - sklo, kov. Při návrhu byl použit princip kontrastu starých přirozeně křivých, vyboulených povrchů k novým přesným liniím, například staré kamenné ostění versus nová skleněná protipožární deska, stropní ručně omítané klenby a prosklenné bezrámové stropní podhledy, původní zděný světlík a nové zastřešení pomocí skla a hliníkové konstrukce.
Celkové architektonické pojetí interiéru domu dotváří originální osvětlení, zábradlí a schodišťová madla za použití kovu se speciální povrchovou úpravou, LED technologie.
V souvislosti s pádem státního totalitního režimu zároveň padl v domě provoz komunálních služeb. Na téměř 25 let umrtvený dům byl díky rozsáhlé rekonstrukci znovu přiveden k životu.
Národní památkový ústav v Ostravě zrekonstruovaný dům nominoval za Moravskoslezský kraj na cenu Patrimonium pro futuro objekt, a to do kategorie "Památky děkují".
- Autoři: Martin Jeřábek, Jiří Horský
- Ateliér: Architektonická dílna Horský Jeřábek
- Spolupráce: Christine habermann von Hoch
- Země: Česká republika
- Město: Příbor
- Datum projektu: 2016
- Realizace: 2017
Související architekti
Související ateliéry a firmy
Mohlo by vás zajímat

















