A.LT Architekti - Rezidence Prachnerova
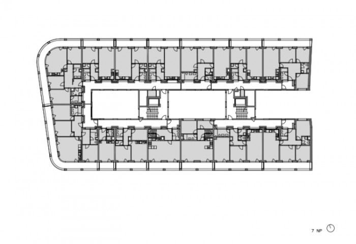
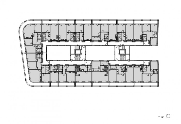
Dům stojí na koncové, rohové parcele v poměrně úzkém městském bloku domů mezi ulicemi Vrchlického, Prachnerova a Hlaváčkova. Charakter domu i jeho tvar vychází z daných parametrů této parcely. Vznikl pavlačový obytný dům s vnitřními atrii. Po obvodu rozmístěné byty jsou orientované do okolních ulic.
Dominantním vizuálním prvkem fasády je masivní železobetonový rastr s lodžiemi. Těžký, robustní, hrubý rastr dodává fasádě monumentalitu. Je vytvořen z betonové monolitické konstrukce a je po celém obvodu stavby předsazen před vnitřní „teplou fasádu“. Vytváří se tak efekt hluboké fasády – jakéhosi „lešení“. Motiv fasády je stejný ve všech uličních frontách. Zaoblení rohové pozice proluky bloku vytváří v daném kontextu poměrně výrazný vizuální motiv. Rigidnost rastru narušují posuvné stínící panely ve stejném odstínu jako betonová konstrukce a spolu s ní posilují plasticitu fasády.
Tvarové řešení objektu je jednoduché. Kopíruje hranice parcely. Rastr opticky definuje základní hmotu objektu včetně výšky říms. Horní ustupující patra jsou vložená dovnitř předsazeného rastru, čímž opticky zmenšují pocit výšky nad hranicí říms. Fasáda objektu se snaží i přes formální jednoduchost zajistit nadstandardní kvalitu pro bytovou funkci. Hluboké lodžie po celém obvodu domu nabízí poměrně vysokou intimitu.
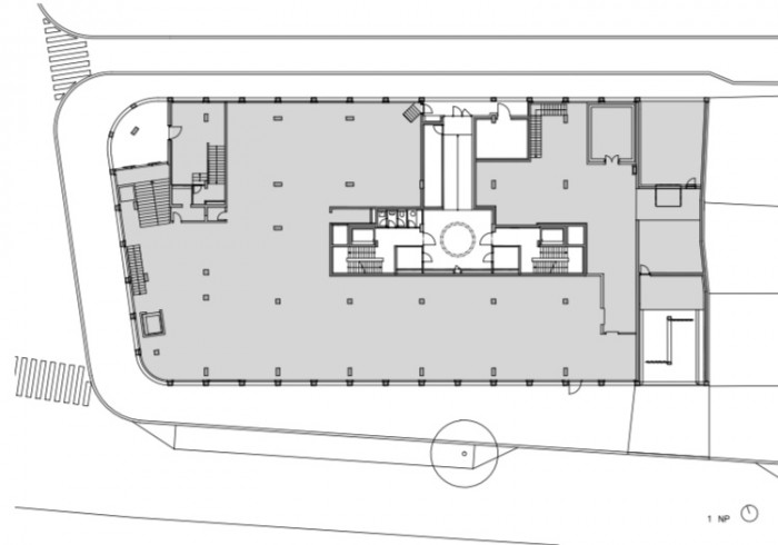
Fasáda je navržena v monochromatických odstínech přírodního betonu v kombinaci s šedým perforovaným plechem. Vnitřky lodžie – s ohledem na značně omezenou prosvětlenost bytů – jsou bílé. Okna jsou v šedých hliníkových rámech. Zábradlí je skleněné s dekorativním potiskem. V parteru se uplatňují reklamní plochy supermarketu v kombinaci s jednotným domovním dekorativním potiskem.
U fasády vnitřního dvora se využívá stejného efektu dvou vrstev. Vnější fasáda je rovněž řešena z pohledového betonu. Otvory do pavlačí jsou různých rozměrů, aby záměrně opticky rozházely měřítko vnitrobloku. Pavlače jsou otevřené. Jsou doplněné o ocelové zábradlí se svislými profily. Vizuálně výrazná dlažba pavlačí z “pražské mozaiky” vychází ze stejného grafického motivu, který je použitý pro celý dům.
Vnitřní atria slouží k prosvětlení společných prostor bytů. Jsou doplněna o zelené plochy. Ústředním motivem hlavního vstupu do bytů a středem celého domu je světlík ze skleněných čoček.
- Autoři: Peter Lacko, Filip Tittelbach
- Ateliér: A.LT Architekti
- Spolupráce: Tomáš Balej, Lenka Dvořáková, Martina Svobodová, Magdalena Hlaváčková
- Země: Česká republika
- Město: Praha
- Datum projektu: 2015
- Realizace: 2017
Související architekti
Související ateliéry a firmy
Mohlo by vás zajímat