OK PLAN ARCHITECTS - Rodinný dům Lipnice nad Sázavou

Přístavba rodinného domu na půdoryse původní stavby z 80. let slouží k rozšíření funkce rodinné rekreace. Je sourozencem a částečně i protipólem již dříve realizovaného domu (rok 2013), který je celý jakoby obalen kůží z plechových šindelů.
Stavba má viditelné rysy tradiční venkovské zástavby, které jsou reakcí na silného genia loci i na původní dům, který stavba nahradila.
Na fasádě je hrubá bílá omítka citlivě kombinována s dřevěnými laťovými stínícími panely a antracitovými plechovými detaily.
Uvnitř domu se výrazně uplatňuje dubové dřevo, které interiéru dává přívětivý nádech. Díky jedinečné poloze stavby ve svahu pod hradem Lipnice se z obytných místností otevírají neopakovatelné pohledy do malebného údolí.
- Autoři: Luděk Rýzner
- Ateliér: OK PLAN ARCHITECTS
- Spolupráce: František Čekal
- Země: Česká republika
- Město: Lipnice nad Sázavou
- Projekt: 2019
- Realizace: 2021
Související projekty
Související architekti
Související ateliéry a firmy
Mohlo by vás zajímat

Rodinný dům v Lipnici nad Sázavou od OK PLAN ARCHITECTS
Foto: Jaroslav Hejzlar
1/39

Rodinný dům v Lipnici nad Sázavou od OK PLAN ARCHITECTS
Foto: Jaroslav Hejzlar
2/39

Rodinný dům v Lipnici nad Sázavou od OK PLAN ARCHITECTS
Foto: Jaroslav Hejzlar
3/39

Rodinný dům v Lipnici nad Sázavou od OK PLAN ARCHITECTS
Foto: Jaroslav Hejzlar
4/39

Rodinný dům v Lipnici nad Sázavou od OK PLAN ARCHITECTS
Foto: Jaroslav Hejzlar
5/39

Rodinný dům v Lipnici nad Sázavou od OK PLAN ARCHITECTS
Foto: Jaroslav Hejzlar
6/39

Rodinný dům v Lipnici nad Sázavou od OK PLAN ARCHITECTS
Foto: Jaroslav Hejzlar
7/39

Rodinný dům v Lipnici nad Sázavou od OK PLAN ARCHITECTS
Foto: Jaroslav Hejzlar
8/39

Rodinný dům v Lipnici nad Sázavou od OK PLAN ARCHITECTS
Foto: Jaroslav Hejzlar
9/39

Rodinný dům v Lipnici nad Sázavou od OK PLAN ARCHITECTS
Foto: Jaroslav Hejzlar
10/39

Rodinný dům v Lipnici nad Sázavou od OK PLAN ARCHITECTS
Foto: Jaroslav Hejzlar
11/39

Rodinný dům v Lipnici nad Sázavou od OK PLAN ARCHITECTS
Foto: Jaroslav Hejzlar
12/39

Rodinný dům v Lipnici nad Sázavou od OK PLAN ARCHITECTS
Foto: Jaroslav Hejzlar
13/39

Rodinný dům v Lipnici nad Sázavou od OK PLAN ARCHITECTS
Foto: Jaroslav Hejzlar
14/39

Rodinný dům v Lipnici nad Sázavou od OK PLAN ARCHITECTS
Foto: Jaroslav Hejzlar
15/39

Rodinný dům v Lipnici nad Sázavou od OK PLAN ARCHITECTS
Foto: Jaroslav Hejzlar
16/39

Rodinný dům v Lipnici nad Sázavou od OK PLAN ARCHITECTS
Foto: Jaroslav Hejzlar
17/39

Rodinný dům v Lipnici nad Sázavou od OK PLAN ARCHITECTS
Foto: Jaroslav Hejzlar
18/39

Rodinný dům v Lipnici nad Sázavou od OK PLAN ARCHITECTS
Foto: Jaroslav Hejzlar
19/39

Rodinný dům v Lipnici nad Sázavou od OK PLAN ARCHITECTS
Foto: Jaroslav Hejzlar
20/39

Rodinný dům v Lipnici nad Sázavou od OK PLAN ARCHITECTS
Foto: Jaroslav Hejzlar
21/39

Rodinný dům v Lipnici nad Sázavou od OK PLAN ARCHITECTS
Foto: Jaroslav Hejzlar
22/39

Rodinný dům v Lipnici nad Sázavou od OK PLAN ARCHITECTS
Foto: Jaroslav Hejzlar
23/39

Rodinný dům v Lipnici nad Sázavou od OK PLAN ARCHITECTS
Foto: Jaroslav Hejzlar
24/39

Rodinný dům v Lipnici nad Sázavou od OK PLAN ARCHITECTS
Foto: Jaroslav Hejzlar
25/39

Rodinný dům v Lipnici nad Sázavou od OK PLAN ARCHITECTS
Foto: Jaroslav Hejzlar
26/39

Rodinný dům v Lipnici nad Sázavou od OK PLAN ARCHITECTS
Foto: Jaroslav Hejzlar
27/39

Rodinný dům v Lipnici nad Sázavou od OK PLAN ARCHITECTS
Foto: Jaroslav Hejzlar
28/39

Rodinný dům v Lipnici nad Sázavou od OK PLAN ARCHITECTS
Foto: Jaroslav Hejzlar
29/39

Rodinný dům v Lipnici nad Sázavou od OK PLAN ARCHITECTS
Foto: Jaroslav Hejzlar
30/39

Rodinný dům v Lipnici nad Sázavou od OK PLAN ARCHITECTS
Foto: Jaroslav Hejzlar
31/39

Rodinný dům v Lipnici nad Sázavou od OK PLAN ARCHITECTS
Foto: Jaroslav Hejzlar
32/39

Rodinný dům v Lipnici nad Sázavou od OK PLAN ARCHITECTS
Foto: Jaroslav Hejzlar
33/39

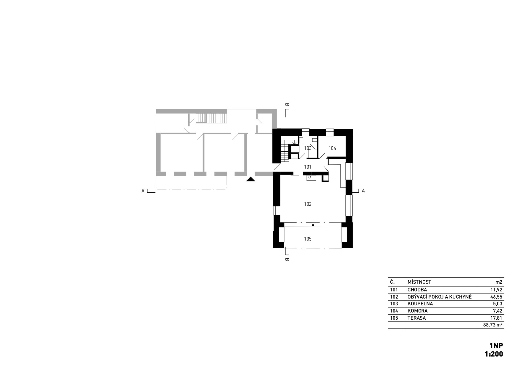
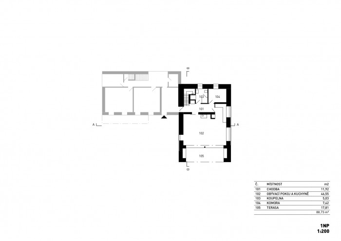
Půdorys - 1NP
Foto: OK PLAN ARCHITECTS
34/39

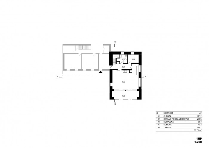
Půdorys - 2NP
Foto: OK PLAN ARCHITECTS
35/39

Půdorys - podkroví
Foto: OK PLAN ARCHITECTS
36/39

Řez
Foto: OK PLAN ARCHITECTS
37/39

Řez
Foto: OK PLAN ARCHITECTS
38/39

Situace
Foto: OK PLAN ARCHITECTS
39/39