+arch - architekti s.r.o., Akademie Madeta

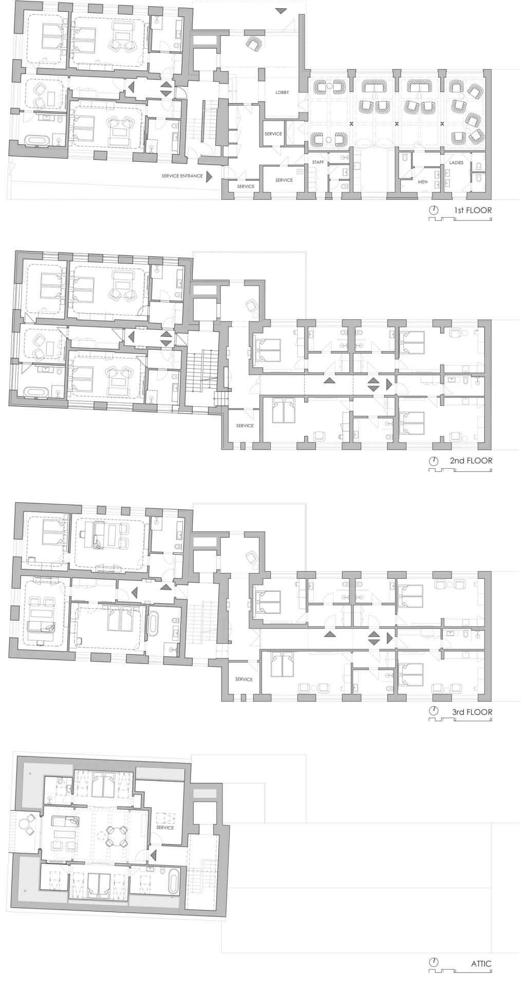
Soubor tří staveb sestává z hlavního objektu Akademie a dvou scelených staveb pro ubytování. Kromě přestavby navrhli autoři také úpravy okolí, čímž vznikl veřejný prostor s parkovou úpravou a dostatečným množstvím parkovacích stání. Dispoziční návrh vycházel z požadavků investora. Soubor budov měl zahrnovat devět učeben různých velikostí, prezentační sál pro padesát osob, soukromou restauraci s možností prezentací a adekvátní ubytovací prostory pro krátkodobé i dlouhodobější ubytování o celkovém počtu třiceti šesti lůžek.
Budova A – Akademie
Již při počátečních úvahách o nové podobě objektu bylo jasné, že se autoři přestavby budou muset vypořádat s nešetrnými úpravami a nekoncepční přestavbami z minulosti. Stejně tak stav některých konstrukcí volal po zásadním zásahu. Exteriér doznal značných změn v obnově a dotvoření kompozice historických fasád i celkové hmoty domu. Do takto scelené a očištěné stavby vložili architekti jasně identifikovatelné novodobé zásahy.
Nosným architektonickým prvkem je především vertikála věže, jež ukrývá nový výtah, schodiště a hygienické zázemí. Do věže současně vstupuje horizontálně komponované zastřešení u vstupu. Specifický výraz dodává této dominantní hmotě tradiční cihlové zdivo provedené z lícových cihel a obkladových pásků TERCA Klinker. Zajímavý vizuální efekt zajišťuje kombinace děrovaných cihel s vystupujícím zdivem, což vytváří hru světla a stínu ať už ve dne nebo při nočním osvětlení.
Perforovaná cihelná fasáda se pak díky velkoformátovým proskleným stěnám propisuje také do vnitřní části budovy a tento moderní prvek lze vnímat jak v ploše fasády při pohledu z exteriéru, tak v dílčím detailu v interiéru. Strohá cihelná hmota se díky textuře fasády zjemnila a při bližším pozorování nabízí drobný detail, který lze opakovaně objevovat v proměnách času a pozice. Nová okna, podkrovní terasu a vstupní část budovy lemuje oplechování v grafitové barvě, čímž se jasně odlišuje od původních historických prvků.
Budova B a C - Ubytování
Jedním z hlavních úkolů pro architekty bylo v konstrukčně komplikovaných starších budovách vyřešit provozní sjednocení. Každá z budov má navíc jinou podlažnost i výškové uspořádání. Autoři se rovněž museli vypořádat s původním nosným systémem, který vycházel z dřívějšího využití objektů. Současně však všechny dispoziční zásahy musely respektovat požadavek zachování fasády a stávajících oken.
Vizuální řešení přirozeně navazuje na hlavní budovu Akademie, nicméně ji nezastiňuje. Výtahová věž materiálově reaguje na cihelný obklad věže budovy Akademie, architekti ji však navrhli ve světlejším tónu, čímž ubrali na dominantnosti tohoto prvku. Bíle omítanou část fasády doplňují jemné reliéfní linie.
Dispoziční řešení odpovídá rozvržení hotelu a sestává z lobby, pěti apartmánů pro dlouhodobější ubytování a jedenácti standardních hotelových pokojů. Navržené řešení respektuje již existující konstrukce. Namísto demolice nebo rozsáhlé přestavby přináší v podstatě jemné zásahy, které však umožňují vyžilým stavbám nový život.
Tento článek vznikl za podpory společnosti WIENERBERGER s.r.o.
Společnost Wienerberger s.r.o. má sídlo v Českých Budějovicích, odkud řídí služby, výrobu a prodej systému stavebních materiálů pro výstavbu zejména rodinných a bytových domů. V jedenácti závodech v České republice vyrábí cihelné bloky pro vnější a vnitřní zdivo, keramobetonové překlady a keramické polomontované stropy značky Porotherm a střešní krytinu značky Tondach. Náročnějším zákazníkům nabízí také lícové cihly (klinkery) a obkladové pásky Terca či cihlovou dlažbu Penter.
- Autoři: Jan Pala, Adéla Palová, Marek Raab
- Ateliér: +arch – architekti s.r.o.
- Země: Česká republika
- Město: České Budějovice
- Ulice, číslo: Tovární 236/14
- PSČ: 37001
- Datum projektu: 2018
- Zastavěná plocha: 450.00m2
Související architekti
Související ateliéry a firmy
Mohlo by vás zajímat





















