Studio COSMO - Kanceláře Madeo

Kanceláře digitální agentury Madeo se nachází v centru Baťova Zlína. Industriální prostředí Zlína ve spojení se skandinávskými vazbami firmy nám byly inspirací při tvorbě kanceláří, které podporují spolupráci zaměstnanců a zároveň poskytují dostatek relaxačních prostor. Barevnost a nálada interiéru navazují na temnou vizuální identitu klienta. Materialita je inspirovaná kovovou fasádou domu, ve kterém sídlí.

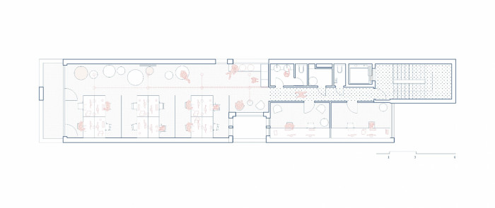
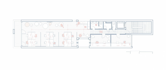
V úzkém půdorysu domu jsme pracovali s open-office kancelářemi stejně jako soukromými odhlučněnými místnostmi. Srdce kanceláře tvoří ocelový bar se společenským prostorem a vstupem na velkou střešní terasu s výhledy na Zlín. V obou patrech pracujeme s kovovými příčkami a na míru navrženými detaily.

Madeo obývá dvě patra dlouhého a úzkého půdorysu. Z nevýhody dlouhého průchodu do hlavní části kanceláře jsme společně se schodištěm udělali výrazný propojující prvek obou pater.

  • Země: Česká republika
  • Realizace: 2018
  • Město: Zlín
  • Realizace: 2018
Generální partner
Hlavní partneři