Archoo - Dům nad vodopádem
Skromně minimalistické řešení rodinného domu v pasivním standardu (reduce), postaveném na stísněné, léta opuštěné a nevyužívané parcele na hranici historického jádra města (reuse), se snahou o nalezení koncepce domu, který je možné postavit na malém pozemku tak, že zastavěná plocha bude pro bydlení využívána hned třikrát (recycle) - pod domem, v domě a na střeše.
Vše navrhováno a stavěno s pokorou a hledáním souznění mezi historií místa, krajinou vodopádu a současné architektury. Postaveno svépomocí za velké pomoci rodiny a kamarádů, za použití přírodních a tradičních materiálů.
Architektonické řešení
Pro volbu dřevostavby mluvilo několik důvodů. Za prvé se předpokládaly složitější základové podmínky (část parcely je na skalním podloží a část na navážkách a neúnosných jílech koryta potoka), za druhé pak zkušenost se zakládáním a stavěním domů v Austrálii a proto se jevil jako nejvhodnější lehký systém dřevostavby založený na sloupech s mikropilotami. Dále se využilo tenčích obvodových stěn na bázi dřeva s dobrými tepelně technickými parametry k dosažení pasivního standardu. Kladem byla i jednoduchá doprava a montáž stavebních prvků.
Aby dům splynul s geniem loci pod hrazeným přepadem horního Ulického rybníka, byla navržena dřevěná fasáda ze sibiřského modřínu bez povrchových úprav jako vzpomínka na původní dřevěné mlýnské domky.
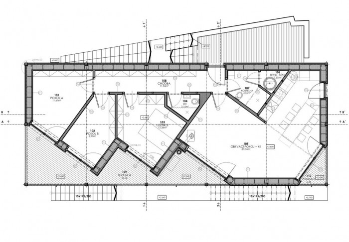
Dispoziční řešení
Jednopodlažní rodinný dům má vstup po obnovených historických schodech shora z ulice, schody vedou dolů na úroveň vstupních dveří. Za zádveřím prochází domem chodba se vstupy do obytného prostoru s kuchyní a jídelnou, do ložnice a dvou dětských pokojů v západní části objektu. Z chodby se rovněž vchází do koupelny, WC a technické místnosti.
V domě bylo navrženo centrální větrání s rekuperací. V obytném prostoru stojí krbová kamínka s výměníkem. Mají malý tepelný výkon, slouží k pokrytí tepelných ztrát objektu a ohřevu vody v době největších mrazů.

Ze všech obytných místností je možné vstoupit francouzskými okny na společnou krytou venkovníterasu. Ta v zimě dovoluje proslunění a prohřátí interieru nízkým sluncem, v létě naopak brání přehřátí.
Konstrukční a materiálové řešení
Konstrukce domu je difuzně otevřená, ze dřeva, je použito systémového konstrukčního řešení I-nosníků steico a prvků lepeného dřeva ultralam. Nosné vizuálně se uplatňující sloupy jsou z dubového řeziva. Pod stavbou je provětrávaná dutina zespodu opláštěná cementotřískovými deskami. Okna jsou dřevěná s rámem zapuštěným do obkladu fasády.
Konstrukce střechy je dvouplášťová s provětrávanou mezerou, nad hlavní hydroizolací se nachází skladba extenzivní zeleně (hydroakumulační a drenážní vrstva, vrstva humusu a mulče), dnes již plně pokryta netřesky, rozchodníky, kostřavou a voňavou levandulí, slouží i pro zlepšení mikroklimatu, k retenci dešťové vody a k využití jako pobytové terasy. Zároveň vrací místu plochu zeleně, kterou dům odebral.

- Ateliér: ARCHOO s.r.o.
- Autoři: Jiří Ondráček, Lukáš Komín, Jaroslav Svoboda
- Spolupráce: Libor Kavalec, Miroslav Hack
- Země: Česká republika
- Město: Telč
- Datum projektu: 2011
- Realizace: 2015
Mohlo by vás zajímat