Hrádek nad Nisou

Město Hrádek nad Nisou leží asi dvacet minut cestou vlakem od Liberce. Zhruba stejně tak dlouho trvá i cesta z Hrádku do německé Žitavy nebo polské Bogatynie. Tato výhodná poloha vede k tomu, že město může spolupracovat na různých mezinárodních projektech a teoreticky má i lepší nabídku pracovních příležitostí, a to nejen na české straně. Do Hrádku přicházejí lidé bydlet. Nicméně město se potýká s několika problémy.
Poptávka po bydlení je vyšší než nabídka, chybí dostatek bydlení pro důchodce, zároveň ve městě chybí i nižší věková kategorie, která odjíždí ve středoškolském věku za studiem mimo Hrádek a pak se už často nevrací. Problémem jsou i služby, které město nabízí. Některé buď zcela chybí nebo jsou v současnosti umístěny v nevyhovujících prostorách. Jedním z dalších problémů je i areál bývalé továrny, který město odkoupilo a v současné době pro něj hledá nové využití.
Již při prvním setkání s městem nás zaujala jeho zvláštní povaha. Na některých místech se snaží chovat jako město, zachovávat uliční čáru a vytvářet ulice, jinde se zase rozpadá a trousí na menší celky. Náměstí, které bylo dříve lemováno řadou domů by si dnes mohl člověk jen lehko splést s rozšířením ulice a několika domky. Cesty, které byly dříve těmi hlavními a zakončovaly je městské domy se zdobenými štíty v současnosti slepě končí a štuky se schovaly pod vrstvy polystyrenu. Tento pocit zvláštní rozpolcenosti ještě více podporuje obrovská tovární budova uprostřed města, jen pár kroků od hlavního náměstí a vlakového nádraží.
Na místě, kde by mohly stát obytné domy se rozprostírá areál bývalé cívkárny, jejíž dominantu tvoří komín spolu s honosnou hlavní výrobní halou. Při uvažování o areálu továrny se snažíme obracet se hlavně k městu a náměstí a reflektovat ony dvě polohy, které město nabízí – zpevněnost a rozvolněnost. Zároveň cítíme jistý respekt a úctu k bývalé tovární hale, která spolu s komínem tvoří jednu z dominant Hrádku nad Nisou a kterou zachováváme. Po obou stranách továrny navrhujeme nové hmoty a plníme je i novými funkcemi. Směrem blíž k centru města chceme orientovat funkce veřejné a společenské a v opačném směru nabízíme více soukromí a pocit větší intimity. Součástí areálu je i poměrně velká plocha, dnes neudržované zeleně, která je jednou z dalších bariér v bezprostředním centru města a brání přirozenému pohybu mezi jižní a severní částí.
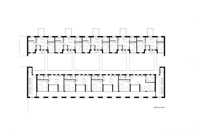
Zachováváme tři linie hmot a využíváme i prostor mezi nimi. Do nejsevernější linie navrhujeme kliniku, která by měla poskytnou dostatek zázemí a komfortu pro lékaře, kteří dnes pracují v ordinacích roztroušených po celém městě. Hmota kliniky se zasouvá do terénního zlomu, který se svažuje směrem od náměstí a je tedy tak velmi dobře přístupná. Bývalá tovární hala slouží hned několika funkcím. Nabízí bydlení pro seniory, komunitní centrum, archiv a knihovnu s kavárnou. Zvenčí si zachovává původní tvář s veškerými vrstvami a nánosy historie, ale uvnitř se chová jako zcela nová struktura. Třetí linie je tvořena novým bytovým domem. Ten se už pomalu začíná rozpadat do roztroušenější části hrádecké zástavby a současně se snaží nabídnout ty kvality bydlení, které hrádečtí vyhledávají. Tyto tři rovnoběžné linie částečně uzavíráme k nim kolmou hmotou, do které jsme umístili kavárnu, která navazuje na knihovnu v hale továrny, atelier a dvě menší učebny.
Mezi těmito třemi hmotami vznikají dvě poměrně velká prostranství, ke kterým jsme se měli také potřebu vyjádřit. Prostor mezi klinikou a továrnou chápeme jako náměstí – místo, kde se budou mísit různé věkové skupiny, lidé s různými zájmy a budou sem mít potřebu přijít i ti, kteří zrovna nutně nemusí k lékaři nebo do knihovny. Z počátku pravidelný rastr dlažby postupně rozvolňujeme směrem do zeleného svahu a nabízíme místa k posezení a příjemnou cestu směrem do centra Hrádku. Prostranství mezi továrnou a bytovým domem říkáme dvůr. Svým charakterem by mělo odpovídat vnitrobloku – místu, kam člověk může vstoupit, ale jen místní se zde nebude cítit jako cizí. Byty určené pro důchodce si část dvora zabírají pro své předzahrádky, zbytek je zcela k dispozici obyvatelům bytového domu. Myslíme si, že by se toto místo mohlo stát prostorem pro společná setkání sousedů z okolních domů, pro pořádání narozeninových oslav nebo letního grilování. Zelený pás mezi areálem a městem měníme v park.
Anna Cisariková / TOVÁRNÍ BYTOVÝ DŮM
Pravidelnost skeletu továrny, stejně umístěné sloupy, rytmus vysokých oken. Pravidelné směny, vstávání před svítáním, stejná cesta do fabriky, stále ten stejný pohyb rukou – natáhnout vlákno, nasadit cívku a poslat dál. K obědu zase chléb s máslem připravený ještě z domova. Brzy odpoledne se dostaví ten dobře známý pocit únavy. Cesta zpět domů, pivo v hospodě chutná stále stejně.
Bývalá továrna cívkárny v Hrádku nad Nisou na svou hlavní budovu let nabalila mnoho různých staveb a přístavků. Jedním z nich je i budova na jižní straně, která je dnes téměř prázdná a z části funguje jako autoopravna. Na jejím místě navrhuji bytový dům. Svou čelní – severní fasádou se pokorně obrací čelem k továrně, respektuje její vertikalitu a zároveň se pevně drží římsy. Před sebou si vytváří předprostor, který charakterem odpovídá vnitrobloku, může sem vstoupit kdokoliv, ale jen místní se zde budou cítit opravdu jako doma. Naopak jižní fasáda se rozbíjí směrem do soukromých zahrad na drobnější hmoty a vytváří tak zákoutí k posezení.
Pět vstupů do domu a pravidelný rastr oken a sloupů by mohl napovídat i o rigidním uspořádání uvnitř. Ve skutečnosti se jedná o dva typy mezonetových bytových jednotek, které se do sebe vzájemně ve druhém podlaží proplétají. Bydlení v takových bytech je určeno především pro rodiny s dětmi, které vyhledávají pocit soukromí ale zároveň nechtějí být odříznuti od veškerého okolního dění. Mohou vysedávat společně se sousedy na dvoře, popíjet kávu na zápraží, či grilovat na vlastní zahradě nebo terase.
Sveta Devyatkina / KLINIKA
V součané době jsou ordinace lékařů v Hrádku nad Nisou umístěny v různých částech města. Mým konceptem bylo je sjednotit do jednoho areálu, ale tak aby mohly i dál fungovat nezávisle.
Prostor kliniky je tvořen betonovými buňkami umístěnými na zelené desce. Každá z nich má svoji čekárnu a ordinaci pro jednoho až dva lékaře. Klinika je rozdělená na dvě části:
Ordinace (chirurg, zubař, praktičtí lékaři) Rehabilitace a fyzioterapie
Na pomezí obou částí se nachází lékárna.
Tím, že zvedám kliniku o jedno patro, ziskávám přímou návaznost na pěší cestu do centra a taky možnost umístění parkovacích ploch a prostorů pro služby v přízemí. Principem mého projektu bylo vytvořit přijemné zelené prostředí pro pracovníky a navštěvníky kliniky. Oproti dlouhým stísněným chodbám navrhuji otevřené zelené prostory.
Jiří Valenta / BYTOVÝ DŮM
Návrh bytového domu s knihovnou, archivem, kavárnou a komunitními prostory je v poslední pozůstalé stavbě bývalé nítárny.
Je zanechána obvodová zeď, charakteristická pro továrnu a samotný Hrádek. Jsou zde pouze protáhnuty okna k podlaze z důvodu podtrhnutí vertikálního charakteru, oslunění a návaznosti na jednotlivé podlaží.Uvnitř se nachází novostavba s převážně bytovými jednotkami od 30 m2 do 80 m2. Jsou zde jak klasické byty, tak se zvýšeným stropem a mezonety. Celková stavba je vertikálně rozdělena na dva trakty z důvodů oslunění a využitelnosti parteru.
V jižním traktu navazující na soukromý prostor je dvojitá fasáda – původní nosná stěna tvoří přirozenou bariéru proti přehřívání. Za ní se nachází meziprostor pro terasu a balkóny z nichž se vstupuje do bytových jednotek. V objektu jsou komunikace v prostoru mezi trakty. V přízemí jsou byty se vstupy orientovány přímo do soukromé části s vlastní předzahrádkou.
V severním traktu je v přízemí umístěna kavárna, archiv s knihovnou a komunitními prostory se zvýšeným podlaží. Jednotlivé objekty jsou propojeny lávkou v 1. patře. Přízemí propojuje náměstí s polosoukromou ulicí mezi trakty. Bytové jednotky ve vyšších patrech jsou odstupňovány a propojeny s jižní části lávkami. Na druhé straně jsou vykonzolovány balkóny nad náměstí.
autoři: Anna Cisariková, Sveta Devyatkina, Jiří Valenta / 2. ročníkateliér: Suchánek / Janoš
- Autoři: Anna Cisariková, Sveta Devyatkina, Jiří Valenta
- Země: Česká republika
- Škola: FUA TUL – Ateliér Suchánek & Janoš
- Město: Hrádek nad Nisou
- Datum projektu: 2016
Mohlo by vás zajímat


























