Interiér dentální kliniky v Opavě definují syté barvy a neony

V opavské myTREEDK se rozhodli splnit si své sny o moderní stomatologii. Přáli si kliniku, kde se člověk cítí příjemně. O tom svědčí i jejich motto: “Nálada nám dělá den, vítáme se s úsměvem, ten přenášíme na pacienty, kteří ve vteřině mění strach za radost”. Přístup majitele a celkově personálu je příslibem do budoucna, že v menších městech lze pěstovat špičkovou stomatologii.Architekt David Wittassek navázal na přání klienta a koncipoval kliniku odlišným způsobem než běžná zařízení tohoto typu u nás. Hlavním záměrem bylo navrhnout osobitou, zajímavou, nikoli sterilní ordinaci.

Dentální klinika myTREEDK v Opavě, QARTA Architektura / David Wittassek © BoysPlayNice
Dentální klinika myTREEDK v Opavě, QARTA Architektura / David Wittassek © BoysPlayNice

Zubař pečuje, prostředí formuje.

Celý směr se začal formovat během realizace řešení pro původní kliniku TREEDK v objektu ze 30. let, kterou měl na starost David Wittassek. Nevšední ordinace myTREEDK na její koncept svým volným neotřelým pojetím navazuje. V novém pronajatém místě se však nabízelo být odvážnější, více avantgardní.„Když jsem přišel do vybouraného prostoru, líbilo se mi to. Byl to klíčový moment. Říkal jsem si, nechme to tak. Udělejme z toho přednost. Hlavní bylo zachovat atmosféru. Aby to fungovalo akusticky, připevnili jsme na strop dřevěný rošt s akusticky pohltivým materiálem – on se i pacient na zubařském křesle cítí daleko lépe, když kouká na přírodní materiál a ne do bílého stropu,“ říká autor návrhu.

Dentální klinika myTREEDK v Opavě, QARTA Architektura / David Wittassek © BoysPlayNice
Dentální klinika myTREEDK v Opavě, QARTA Architektura / David Wittassek © BoysPlayNice
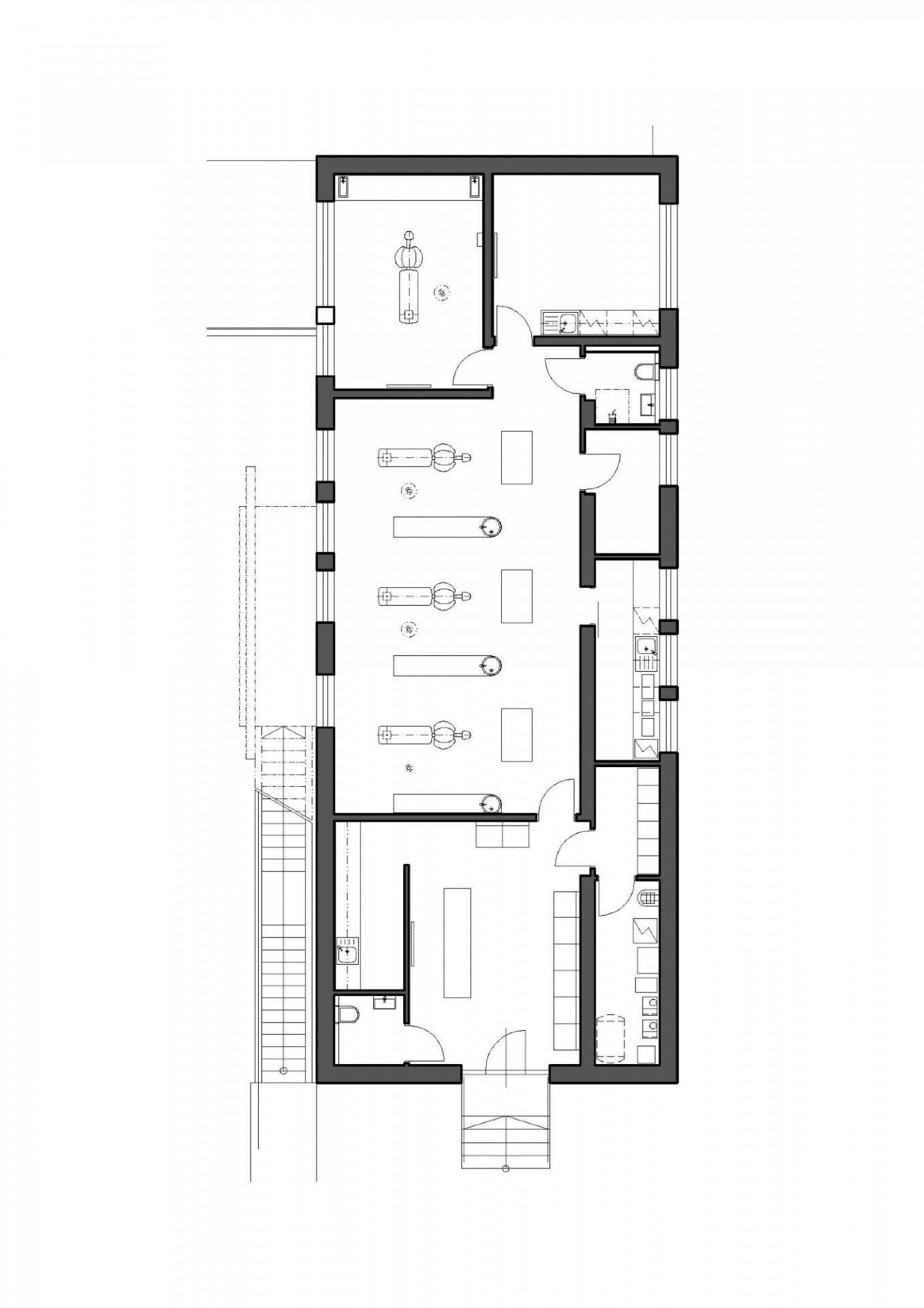
Dispoziční řešení vyplynulo z potřeb klienta. Jinakost tkví v tom, že je vše uspořádáno dohromady. Recepce, čekárna, kuchyň a toalety navazují na větší halový prostor, kde jsou umístěny čtyři stomatologické soupravy a další zázemí ordinace. Primárně je návrh vypracován tak, aby se klient cítil příjemně a uvolněně.„Celý život jsem se obával jít na kontrolu k zubaři… přestože jsem měl zdravý chrup, strach z ošetření mě stále pronásledoval. Když mě před lety poprosili Petr a Pavlína, abych se věnoval „jejich“ konceptu dentální kliniky, úplně jsem neměl důvěru. Nakonec mě velmi oslovil. Zbavil mě obav z návštěvy zubaře a dle zpětné vazby klientů se tak děje i jiným.” (David Wittassek)

Dentální klinika myTREEDK v Opavě, QARTA Architektura / David Wittassek © BoysPlayNice
Dentální klinika myTREEDK v Opavě, QARTA Architektura / David Wittassek © BoysPlayNice
K tomu přispělo nejen netradiční uspořádání, ale také použití materiálů jako je otlučená cihla, dřevo a plech. K přívětivé atmosféře dopomohla i hra se světlem, neony, bílá barva či dekorativní malba válečkem. A také vystavené jízdní kolo, prvek pro uvolnění napětí a lepší náladu, tzv. light motiv.Ordinace tak zosobňuje filozofii a hodnoty této nevšední kliniky v Opavě. A stává se prostředím, které pozitivně formuje zážitek z návštěv myTREEDK kliniky.

Dentální klinika myTREEDK v Opavě, QARTA Architektura / David Wittassek © BoysPlayNice
Dentální klinika myTREEDK v Opavě, QARTA Architektura / David Wittassek © BoysPlayNice

Dentální klinika myTREEDK v Opavě, QARTA Architektura / David Wittassek
Dentální klinika myTREEDK v Opavě, QARTA Architektura / David WittassekFoto: BoysPlayNice

Dentální klinika myTREEDK v Opavě, QARTA Architektura / David Wittassek
Dentální klinika myTREEDK v Opavě, QARTA Architektura / David WittassekFoto: BoysPlayNice

Dentální klinika myTREEDK v Opavě, QARTA Architektura / David Wittassek
Dentální klinika myTREEDK v Opavě, QARTA Architektura / David WittassekFoto: BoysPlayNice

Generální partner
Hlavní partneři