Jednopodlažní dům od Caraa
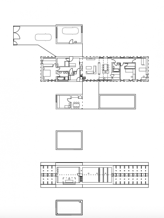
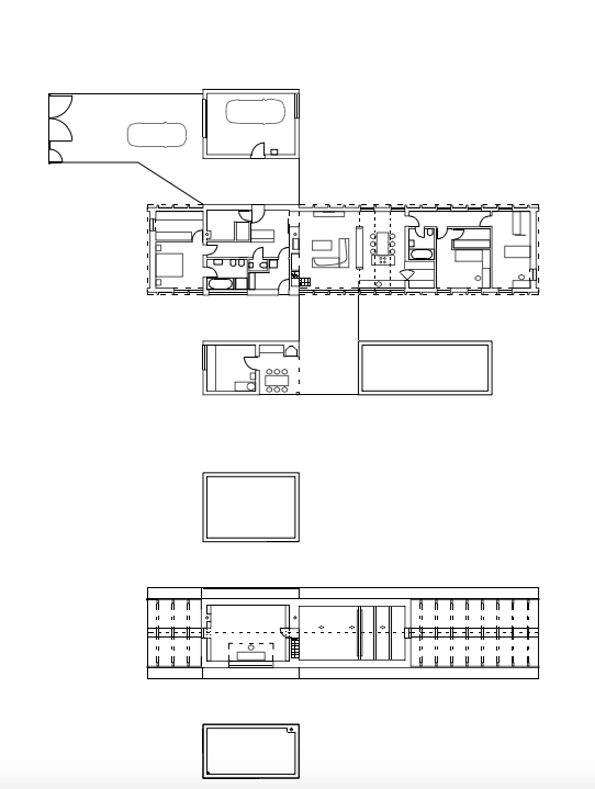
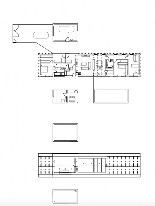
Středovou hlavní obytnou část tvoří lineární těleso s profilem typickým pro historickou venkovskou zástavbu. Kompozice jednoduchých hmot ve tvaru T. K domu jsou kompozičně navázány dvě boční kubické hmoty garáže a dílny s terasou a bazénem. Objekt, jehož projekt vznikl v roce 2009, je konstrukčně řešen jako jednopodlažní nepodsklepená dřevostavba kombinovaná se zděnou vstupní centrální částí, materiálové řešení je založeno na kontrastním působení jednotlivých částí domu a jejich vzájemném kompozičním vyvážení.
Přízemní hranol klidových obytných částí je vložen do pravidelného rastru dřevěných vazníků navazujících na zděnou část. Celá tato hmota je pak nasazena na betonovém soklu základových konstrukcí. Celková plocha parcely, na které dům stojí, je 2 586 m2. Z toho dřevostavba zabírá 313 m2, zbytek je tedy dům obklopující zahrada.
Návrh z pera Martiny Buřičové a Štěpána Kubíčka sází na jednoduchost, spojujícím prvkem pro celou budovu dokončenou v roce 2013 je dřevo v jemných odstínech. Cílem bylo vytvořit architekturu, která se kompozicí a výrazem pozitivně začlení v dané lokalitě při respektování znalostí tradičních principů venkovské zástavby.
- Ateliér: caraa.cz
- Autoři: Martina Buřičová, Štěpán Kubíček
- Země: Česká republika
- Město: Prague
- Zastavěná plocha: 313.00m<sup>2</sup>
- Plocha pozemku: 2 586.00m<sup>2</sup>
Mohlo by vás zajímat