JURA ET CONSORTES - Komunitní centrum Židlochovice

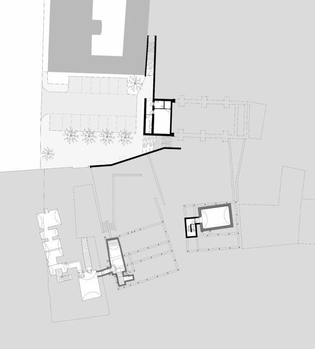
Okolí staré radnice je historicky administrativní centrum Židlochovic. Tato charakteristika vyplývá i z urbanistických souvislostí původní struktury - z umístění výrazné budovy v nároží náměstí, ve vyvýšené poloze městského prostoru, který mírně klesá k nábřeží řeky Svratky.
Urbanistickým vývojem byla v řešeném území založena určitá skladba objektů a volných prostor, která měla v původní urbanistické struktuře poněkud jiné významy a funkce. V kontextu města se však jednalo o logickou strukturu prostorů a staveb se zcela zásadním skrytým potenciálem.
Nové urbanistické řešení definuje „rovnovážný stav“ mezi výjimečnou funkcí staveb a konvenční strukturou uliční zástavby. Celková skladba objemů a prostorů zakládá prostupnou – otevřenou – městskou strukturu s flexibilním využitím v čase i prostoru. Jednotlivé elementy celkové struktury je možno provozovat nezávisle i společně.
Provozní řešení vychází z vazby na starou radnici, jenž je propojena spojovacím krčkem s novým objektem. Tento objekt je rozšířením administrativních prostor radnice a jsou zde umístěny klubovny a kanceláře komunitního centra. Spolu s dalším objektem víceúčelového sálu tvoří dvojici staveb definující jeden ze vstupů do areálu. Objekt stodoly je umístěn ve strategické poloze areálu a je koncipován jako sala terrena propojující dvůr s ovocným sadem. Stodola uvozuje další vstupy do areálu a svým štítem se výrazně uplatňuje ve veřejném prostoru bočního náměstí - piazetty.
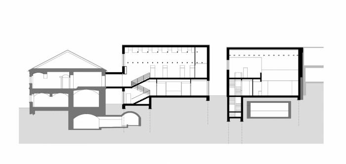
Architektonické řešení je založeno na tradici a kontinuitě. Hmotové a proporční řešení objektů vychází z původní zástavby a okolní městské struktury. Architektonické řešení je definováno tradiční hmotou staveb, vytvářejících veřejný prostor, avšak bez zásadního vlivu módního designu. Východiskem k začlenění novostavby do původní struktury je potlačení hranic mezi původní a nově navrženou zástavbou, stejně jako volba architektonického jazyka bez příslušnosti k době vzniku.
- Autoři: Pavel Jura, Pavel Steuer
- Země: Česká republika
- Město: Židlochovice
- Datum projektu: 2016
- Realizace: 2020
- Zastavěná plocha: 765.00m2
- Plocha pozemku: 4 860.00m2
- Generální projektant: JURA ET CONSORTES/ PROMED Brno spol. s r.o.
- Zahradní úpravy. GRUPETO, Tomáš Babka, Petra Babková, Václav Babka: Zahradní úpravy. GRUPETO, Tomáš Babka, Petra Babková, Václav Babka
- Generální dodavatel: ESOX spol. s r.o.
Související architekti
Mohlo by vás zajímat



























