Knesl + Kynčl architekti - Informační a kulturní centrum Píšť

Píšť je zhruba dvoutisícová obec v severovýchodní příhraniční části opavského okresu (tzv. Prajzská), v mírně zvlněné krajině Hlučínské pahorkatiny, a je jednou z nejstarších obcí na Opavsku. Historickou dominantou sídla jsou lidové poutní místo kostel sv. Vavřince, postavený v roce 1743, a osmiboká kaple sv. Jana Nepomuckého, ležící na křížení ulic Opavské, Hlučínské, Ratibořské a Hůrecké, kde se nachází také obecní úřad. Toto administrativně-správní centrum v loňském roce doplnila novostavba kulturního a informačního centra.
Myšlenka na výstavbu nového obecního centra vznikla již v roce 2005, kdy byly zahájeny projekční práce a stavební řízení. Realizace započala po více než deseti letech v roce 2017 a budova byla slavnostně otevřena v prosinci 2018, kdy zde byla také podepsána deklarace u příležitosti 20. výročí spolupráce příhraničních obcí Píště, Hatě, Šilheřovic a polských Krzyżanowic.
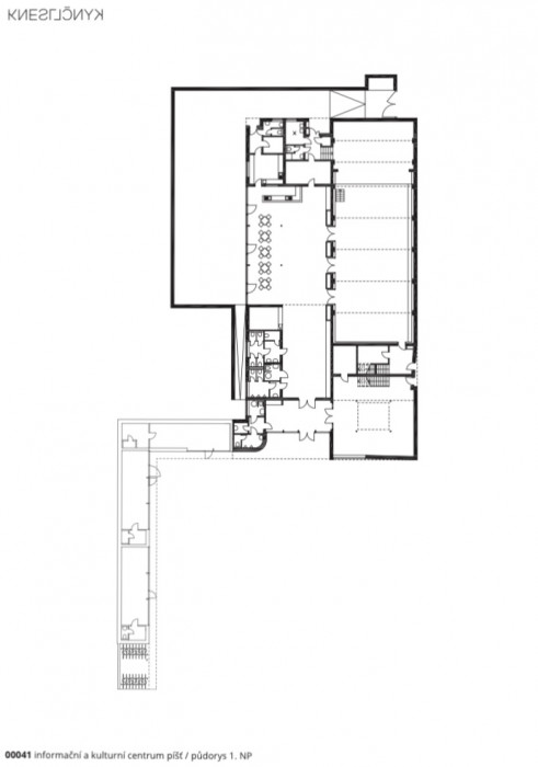
Centrum sestává ze dvou částí, které svým vzájemným uspořádáním formují nový veřejný prostor – „piazzetu“. Hlavní, částečně dvoupodlažní objekt se sedlovou střechou na severní straně piazetty, v místě bývalé stodoly, zahrnuje kulturní sál se zázemím a informační centrum s knihovnou a čítárnou. Převýšený prostor sálu a knihovny je prosvětlen dvěma rozměrnými světlíky, jež se – spolu s běloskvoucí fasádou oživenou geometrickou hrou osvětlených nik – staly charakteristickým a z dálky jasně rozpoznatelným rysem stavby. Přísálí s bufetem je orientováno na odvrácenou stranu od komunikace a je doplněno venkovní nekrytou terasou.
Západní stranu piazzety vymezuje jednopodlažní objekt spojující nové centrum se stávající budovou obecního úřadu, který obsahuje tři samostatné klubovny a přístřešek na kola. Realizace této části je předmětem druhé etapy výstavby a předpokládá se její zahájení ještě v letošním roce. Jižní a východní strana piazzety se otevírají směrem k obci s vazbou na kostel a kapličku.
Konstrukční a materiálové řešení
Informační a kulturní centrum Píšť je provedeno jako zděná stavba s nosnou konstrukcí z keramických tvarovek a s železobetonovými stropy. Hlavní sál je zastřešen sedlovou střechou s pálenou střešní krytinou, kde dřevěná konstrukce krovu je v interiéru viditelně přiznaná, přízemní část je kryta mírnou pultovou střechou s krytinou z titanzinku. Obvodové zdivo je zatepleno vrstvou minerální vlny s tenkovrstvou omítkou. Výplně otvorů jsou dřevěné.
Stavba je členěna na tři samostatné stavební objekty – hlavní objekt, opěrná zeď a navazující objekt (2. etapa) a dále technickou infrastrukturu a úpravy venkovních ploch.
- Autoři: Jiří Knesl, Jakub Kynčl
- Ateliér: knesl kynčl architekti
- Země: Česká republika
- Generální dodavatel: BYSTROŇ Group a.s.
- Město: Píšť
- Ulice, číslo: Hůrecká 600/1
- Suma: 32 800 000.00
- Měna: CZK
- Datum projektu: 2005
- Realizace: 2018
- Plocha pozemku: 6 000.00m2
- Spolupráce: Josef Hajný a Jan Rašík (AD); Pavel Hladík / Hladík a Chalivopulos (statika); Jitka Špondrová (požární ochrana); Dušan Variš (zdravotní technika, vytápění); Pavel Dočekal / KOMP (elektro); Josef Bahr / KLIMAKOM (klimatizace); Milan Zezula (doprava)
Související architekti
Související ateliéry a firmy
Mohlo by vás zajímat





















