Kontinual - Rodinný dům ve Vraném nad Vltavou

Místo

Obec Vrané nad Vltavou, kde se pozemek nachází, leží 8 kilometrů jižně od Prahy. Pozemek je součástí výše položeného okraje obce v kontaktu s přírodně cennou lokalitou lesů v údolí Zvolského potoka a Chalupecké strouhy (přírodní park Střed Čech). V okolí se nachází nová zástavba rodinných domů. 

Urbanismus

Rodinný dům se začlení do lokality rodinných domů. Proporcí ani měřítkem nevybočuje z okolní zástavby. Orientace a tvar domu byl určen na základě analýzy oslunění domu a parcely a analýzy vizuální provázanosti s okolím. Vyhodnocením těchto pohledů bylo vybráno místo pro dům, které umožňuje uchovat intimní prostor v zahradě a zároveň se otevírá krajině. Při vhodné skladbě rostlin budoucí zahrady se vizuálně propojí intimní zahrada s krajinou a podporuje pocit sounáležitosti se svým okolím. Zároveň je pozice domu plně funkční a logická vzhledem k příjezdu na parcelu.

Architektonické řešení

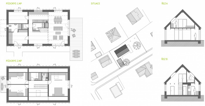
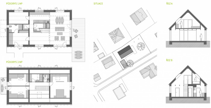
Základní koncept domu zásadně ovlivnil požadavek na propojení současných potřeb bydlení s tradicí stavění lidových staveb na českém území. Pro návrh nového pasivního domu byly převzaty základní principy venkovských staveb. Jedná se především o obdélníkový půdorys, trojdílné členění dispozice, boční vstup do domu, sedlovou střechu se sklonem 40-45°, nasazení trojúhelníkového profilu střechy na hmotu přízemí a výškové usazení hmoty domu na terén tak, aby vznikl plynulý přechod přízemí na terén.  V neposlední řadě je důležitá i konstrukční provázanost s dispozicí stavby. Dodržením těchto principů vznikl archetyp chalupy převládající na většině českého venkova v období do konce 19. století.

Archetypální tvar domu je čitelný nejen zvenčí, ale i zevnitř. Tomuto efektu pomáhá otevření stropu ve střední části půdorysu a “zvednuté okraje” v obytných prostorách vytvořené vynecháním krajových polí stropu na delších stranách domu. Tento efekt čitelnosti domu zvenčí-zevnitř je zdůrazněn vizuální shodností omítek vně i uvnitř objektu, posiluje tak celkový výraz domu. Dalším výrazným prvkem je “pec” uprostřed obytného prostoru. Jedná se o objekt, do kterého je zakomponováno schodiště, knihovna, krb a kuchyňská linka. Uvnitř jsou technologie pro vytápění domu. Obdobně jako se ve starých chalupách chodilo na pec spát, tak i zde se po tomto objektu stoupá k ložnicím. 

Rytmus různě velikých dřevěných oken v přirozeném odstínu v zásadě drží určitou míru symetrie ve fasádě a přidává tak domu na důstojnosti. Analogicky ke starým chalupám je tmavě šedá střecha lehce kontrastní vůči omítkám ve světlé teplé barvě.

Stavba garážového stání se skladem je navržena jako maximálně zjednodušený přístřešek provedený ve stejném povrchu omítky jako rodinný dům.

Zahrada

Zahrada rozvíjí klíčové ideje, které formovaly podobu domu. Pracuje s výhledy z pobytových míst domu a zahrady do okolní krajiny. Motiv tradičního venkovského stavení v soudobé podobě rozehrává do podoby tradiční venkovské zahrady s moderním výrazem. Myšlenku nezávislosti domu na dodatkových energiích z vnější rozvíjí v zahradě maximálně přizpůsobené místním podmínkám, která nevyžaduje výměny půdního substrátu, intenzivní závlahu či hnojení. Uplatňují se zde bylinný trávník, suchomilná květnatá louka, extenzivní trvalkové záhony s vyšší mírou autoregulace, dřeviny nacházející se v okolní krajině a tedy nejlépe prosperující v místních podmínkách.

  • Ateliér: Kontinual
  • Autoři: Jan Medek, Pavel Pácalt
  • Spolupráce: Daniel Appel
  • Země: Česká republika
  • Město: Vrané nad Vltavou
  • Měna: EUR
  • Datum projektu: 2013
  • Realizace: 2015
  • Užitná plocha: 154.00m<sup>2</sup>
  • Zastavěná plocha: 127.00m<sup>2</sup>
  • Zahrada: Lucie Medková
Generální partner
Hlavní partneři